EasyManua.ls Logo

Icom IC-718 - Page 61

Icom IC-718
206 pages
To Next Page IconTo Next Page
To Next Page IconTo Next Page
To Previous Page IconTo Previous Page
To Previous Page IconTo Previous Page
Loading...
5 - 5
Mar. 2010
(Replacement page)
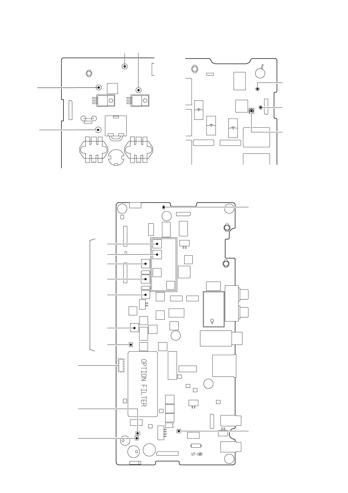
CP4002
Ic APC pre-setting
J3601
Idling current
pre-setting
R1707
Output power
adjustment
L151
Tx total gain
adjustment
L106
R503
L501
L303
L302
L301
R1720
Ic APC
adjustment
R2701
Tx total gain
pre-setting
J5
SWR detector
check point
J4
SWR detector
pre-setting
C17
SWR detector
adjustment
• PA unit
• FILTER unit
• MAIN unit
R58
Idling current
adjustment
(Driver)
R51
Idling current
adjustment
(pre-driver)

Table of Contents

Other manuals for Icom IC-718

Related product manuals