EasyManua.ls Logo

IDEAL TILT-A WAY HYJG 1 - Gate Open Horn and Light Indicator

IDEAL TILT-A WAY HYJG 1
131 pages
Print Icon
To Next Page IconTo Next Page
To Next Page IconTo Next Page
To Previous Page IconTo Previous Page
To Previous Page IconTo Previous Page
Loading...
HYJG-224
32
IDEAL MANUFACTURING INC.
1
REQ NO
Delay Timer
DESCRIPTION
PEO284
2
3
1
REF NO.
PART NO.
PEO605A
PEO679
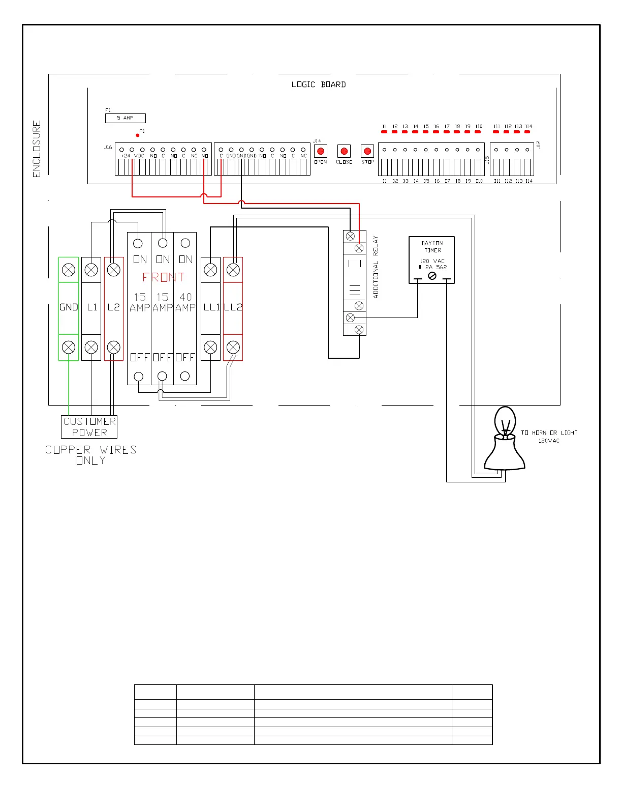
Vehicle Indicator Light ( supplied by customer)
Socket, Relay
Relay
TILT-A-WAY HYJG 24 VDC
GATE OPEN HORN AND LIGHT INDICATOR
1
1
TILT-A-WAY HYJG
THE ADDITIONAL RELAY IS CONNECTED TO THE NORMALLY OPEN CONTACTS OF AUXILIARY OUTPUT # 1
THE OUTPUT FUNCTIONS FOR AUXILIARY OUTPUT # 1 WILL NEED TO BE SET AS FOLLOWED
PRESS AND HOLD BUTTON SW2 ON THE INTERFACE BOARD UNTIL THE DISPLAY CHANGES
RELEASE THE SW2 BUTTON AND THE DISPLAY WILL SHOW
MAIN MENU
UP / DOWN - VIEW MENUS
SELECT - VIEW / EDIT
RESET - EXIT
PRESS AND RELEASE BUTTON SW4 UNTIL THE DISPLAY SHOWS
TIMING AND OPTIONS
PRESS AND RELEASE BUTTON SW1 TO ENTER THE MENU
PRESS AND RELEASE BUTTON SW4 UNTIL THE DISPLAY SHOWS
AUXILIARY I / O
PRESS AND RELEASE BUTTON SW1 TO ENTER THE SUBMENU
PRESS AND RELEASE BUTTON SW4 UNTIL THE DISPLAY SHOWS
AUXILIARY OUTPUT # 1 FUNCTION
PRESS AND RELEASE BUTTON SW1 TO ENTER THE SUBMENU
PRESS AND RELEASE BUTTON SW4 UNTIL THE DISPLAY SHOWS
HOLD AUX RELAY ON CLOSE LIMIT SWITCH
PRESS AND RELEASE BUTTON SW1 TO SAVE SELECTION
PRESS AND RELEASE BUTTON SW2 UNTIL YOU HAVE EXITED ALL MENUS
6-16-2015

Table of Contents