EasyManua.ls Logo

Ier 400B - Page 25

Ier 400B
50 pages
Print Icon
To Next Page IconTo Next Page
To Next Page IconTo Next Page
To Previous Page IconTo Previous Page
To Previous Page IconTo Previous Page
Loading...
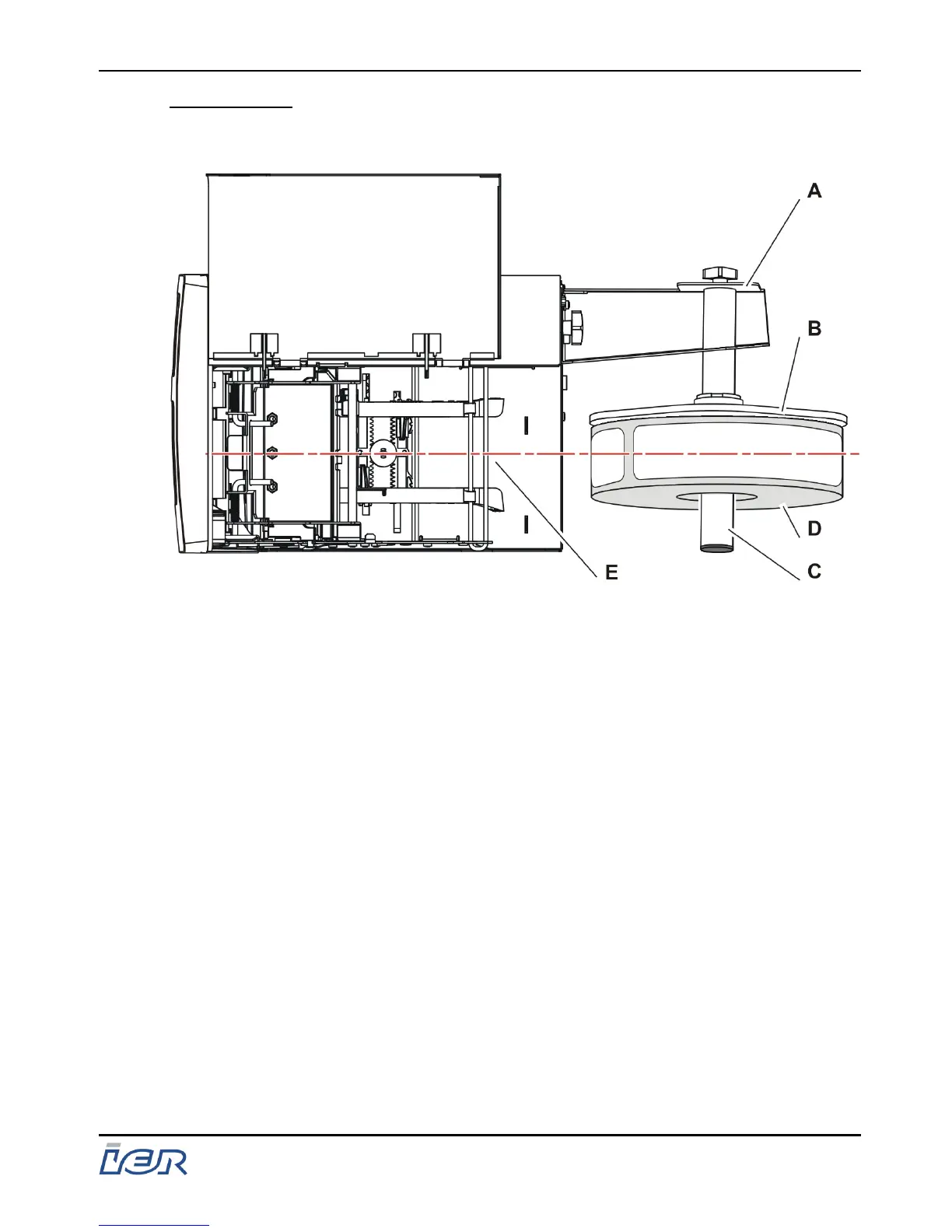
IMPORTANT: The roll of documents (D) must be aligned on the
paper intake axis (E); incorrect alignment may cause
printing problems.
A - Roll Media Dispenser
B - Moveable flange
C - Roll media dispenser shaft
D - Roll of documents
E - Paper intake
Figure 3.4
Roll alignment / Paper insertion
IER 400B
User Guide
Ce document est la propiété d'IER et ne doit pas être reproduit ou communiqué sans autorisation écrite.
This document is the property of IER and may not be reproduced or communicated without prior written authorization
Page 25
N0C402B Rev. 1
July 6, 2009

Table of Contents

Related product manuals