EasyManua.ls Logo

Immergas VICTRIX TERA 24 PLUS - Separator Kit Installation

Immergas VICTRIX TERA 24 PLUS
56 pages
Print Icon
To Next Page IconTo Next Page
To Next Page IconTo Next Page
To Previous Page IconTo Previous Page
To Previous Page IconTo Previous Page
Loading...
17
C
83
C
43
1
4
7
9
5
5
6
7
8
3
2
S
A
C
53
* - C
83
* per completare la congurazione C
53
prevedere anche un terminale di scarico a
tetto. Non è ammessa la congurazione su pareti opposte all'edicio.
27
2625
INSTALLERUSERMAINTENANCE TECHNICIAN
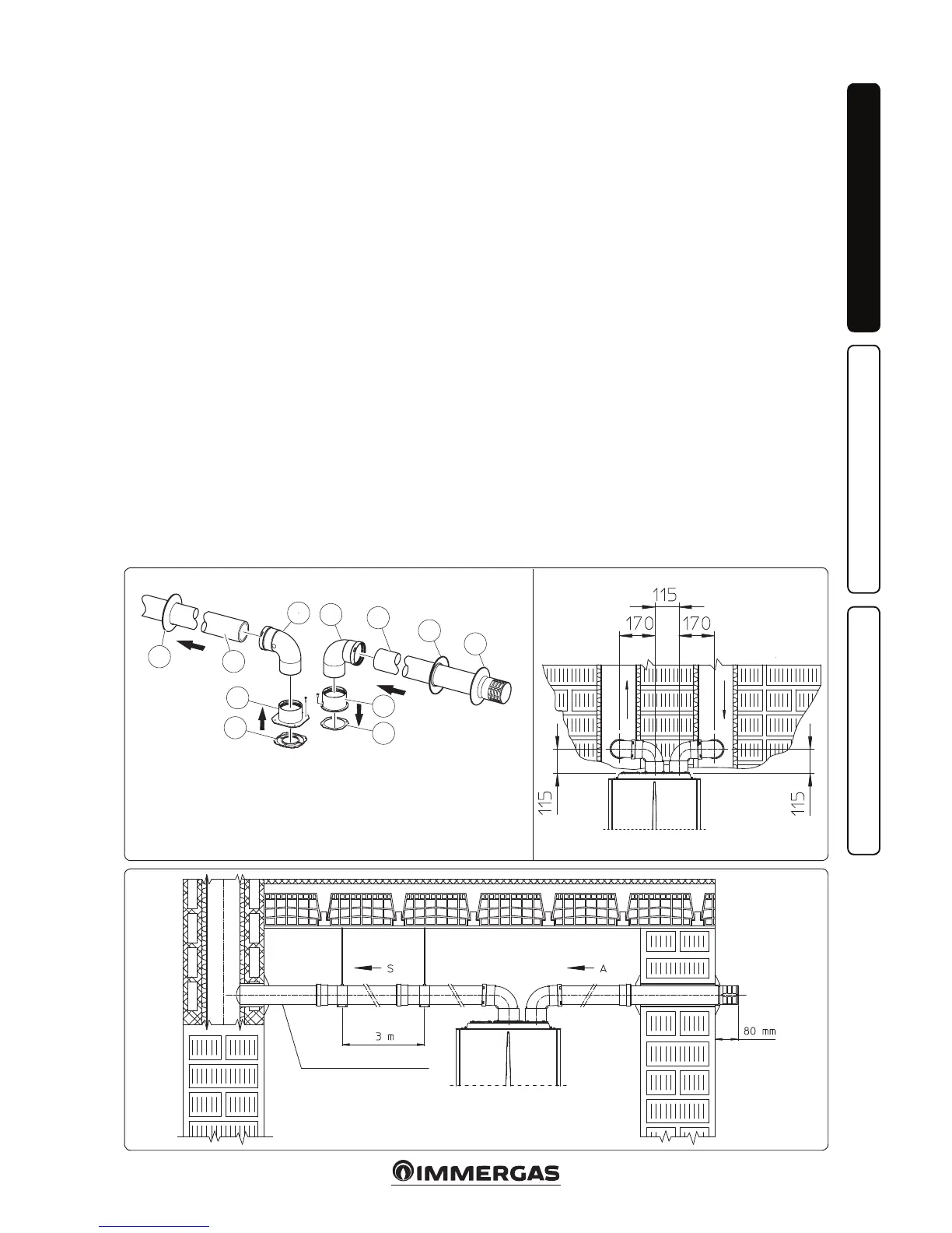
e kit includes:
N° 1 - Exhaust gasket (1)
N° 1 - Flange gasket (2)
N° 1 - Female intake ange (3)
N° 1 - Female exhaust ange (4)
N° 2 - Bend 90° Ø 80 (5)
N° 1 - Intake terminal Ø 80 (6)
N° 2 - Internal wall sealing plates (7)
N° 1 - External wall sealing plate (8)
N° 1 - Exhaust pipe Ø 80 (9)
1.17 SEPARATOR KIT INSTALLATION.
Type C configuration, sealed chamber and
fan assisted.
Separator kit Ø 80/80. is kit allows air to come
in from outside the building and the exhaust to
exit from the chimney, ue or intubated duct
through divided ue exhaust and air intake pipes.
Combustion products are expelled from pipe (S)
(in plastic, so as to resist acid condensate). Air is
taken in through duct (A) for combustion (this
is also in plastic). e intake pipe (A) can be
installed either on the right or le hand side of
the central exhaust pipe (S). Both ducts can be
routed in any direction.
Kit assembly (Fig. 25): install ange (4) on the
central hole of the boiler, positioning gasket
(1) with the circular projections downwards
in contact with the boiler ange, and tighten
using the hex screws with at tip contained
in the kit. Remove the at ange present in
the lateral hole with respect to the central one
(according to needs) and replace it with the
ange (3), positioning the gasket (2) already
present in the boiler and tighten using the
supplied self-threading screws. Fit the male side
(smooth) to the bends (5) in the female side of
the anges (3 and 4). Fit the intake terminal (6)
with the male side (smooth) in the female side
of the bend (5) up to the end stop, ensuring that
the internal and external wall sealing plates are
tted. Fit the exhaust pipe (9) with the male
end (smooth) to the female end of the bend
(5) up to the end stop; making sure that the
internal wall sealing plate has been tted, this
will ensure sealing and joining of the elements
making up the kit.
Installation clearances (Fig. 26). e minimum
installation clearance measurements of the Ø
80/80 separator terminal kit have been stated
in some limit conditions.
Extensions for separator kit Ø 80/80. The
maximum vertical straight length (without
bends) that can be used for Ø 80 intake and
exhaust pipes is 41 metres, regardless from
whether they are used for intake or exhaust.
e maximum horizontal straight length (with
bend in suction and in exhaust) that can be
used for Ø 80 intake and exhaust pipes is 36
metres, regardless from whether they are used
for intake or exhaust. Please note the type of
installation must be done with a natural
draught ue.
N.B.: to favour the removal of possible conden-
sate forming in the exhaust pipe, tilt the pipes
towards the boiler with a minimum slope of
1.5% (Fig. 27).
C
43
Minimum slope 1.5%

Table of Contents

Related product manuals