EasyManua.ls Logo

Immergas Zeus Superior - Main Dimensions and Connections

Immergas Zeus Superior
52 pages
Print Icon
To Next Page IconTo Next Page
To Next Page IconTo Next Page
To Previous Page IconTo Previous Page
To Previous Page IconTo Previous Page
Loading...
2
STZSkW ed 12/07 ZEUS Superior kW
Technical DocumentationTechnical Documentation
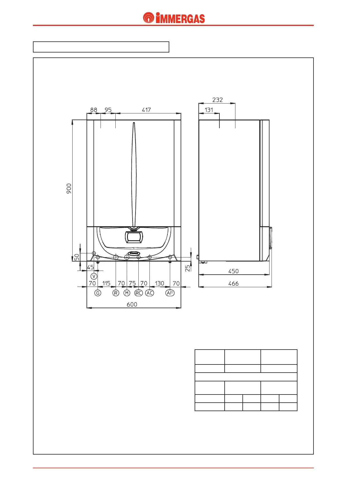
Main dimensions and connections.
Key:
G - Gas supply
R - C.H. return
M - C.H. ow
RC - D.H.W. re-circulation (option)
AC - D.H.W. ow
AF - Domestic cold water inlet
V - Power supply connection
Height
(mm)
Width
(mm)
Depth
(mm)
900 600 466
ATTACHMENTS
GAS SYSTEM
DOMESTIC
WATER
G R M AC AF
1/2” 3/4” 3/4” 1/2” 1/2”

Related product manuals