EasyManua.ls Logo

Impex I-Control - Alarm Relay Connection Diagram

Impex I-Control
36 pages
Print Icon
To Next Page IconTo Next Page
To Next Page IconTo Next Page
To Previous Page IconTo Previous Page
To Previous Page IconTo Previous Page
Loading...
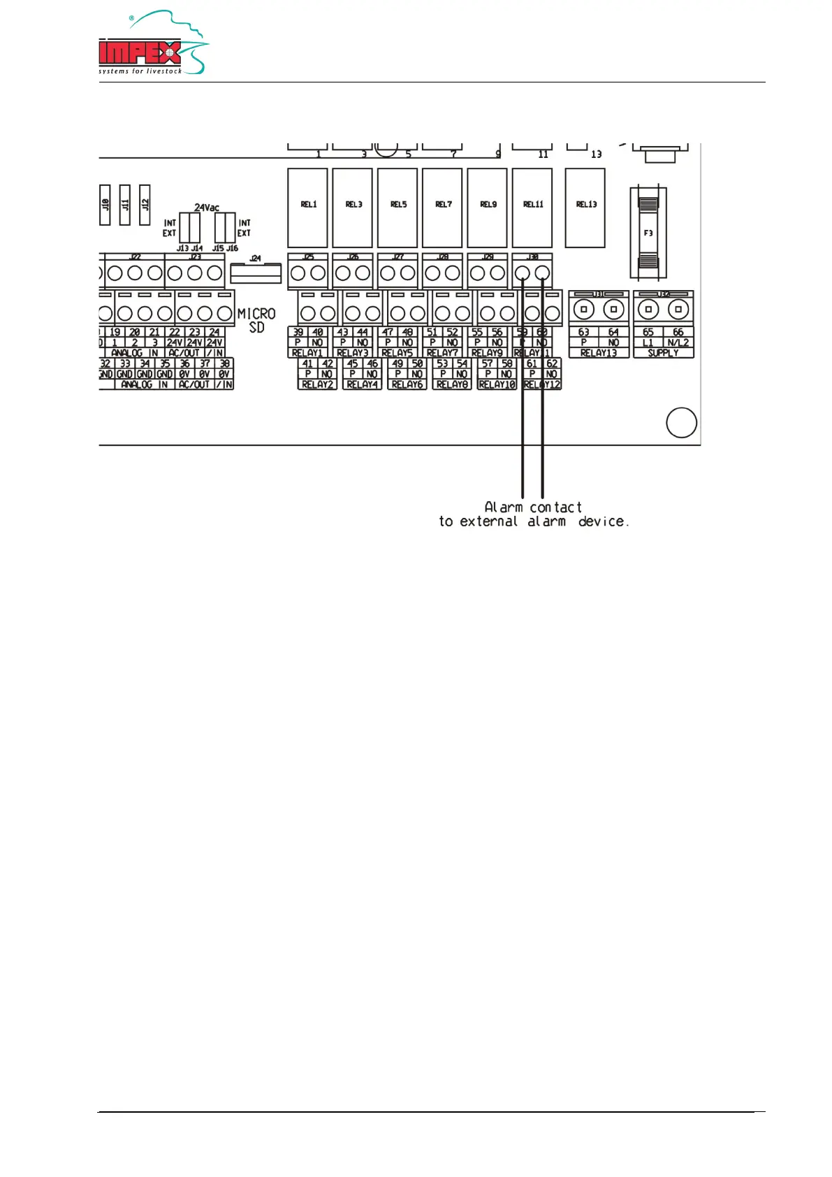
I-Control manual page 32
Alarm relay connection diagram
59 + 60 = Alarm relay
59 = P-contact
60 = NO-contact
Potential free, maximum 24VAC/DC 2 Amp.
Note: Contacts 59 + 60 are closed when there is no alarm (relay is active). When there is an alarm, contacts 59 + 60
will be disconnected (relay is inactive).
Note: The alarm has a watchdog’; the relay will also be shut down when the I-Control functions improperly and in
the case of power failure.