EasyManua.ls Logo

Intel BLKD915GAGL - Mechanical Considerations; D915 GAV Board Form Factor; D915 GAV Board Dimensions

Intel BLKD915GAGL
106 pages
Print Icon
To Next Page IconTo Next Page
To Next Page IconTo Next Page
To Previous Page IconTo Previous Page
To Previous Page IconTo Previous Page
Loading...
Intel Desktop Board D915GAV/D915GAG Technical Product Specification
78
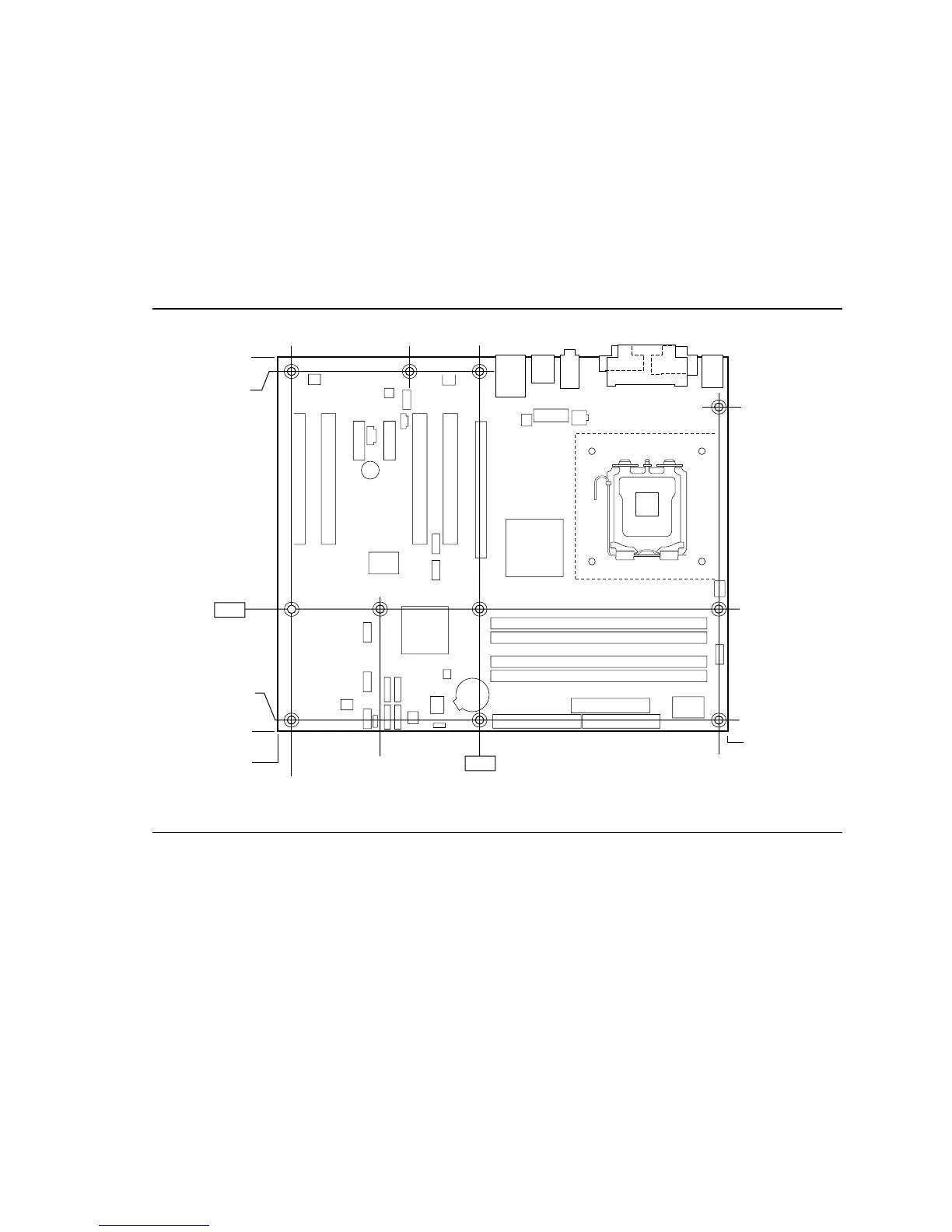
2.10 Mechanical Considerations
2.10.1 D915GAV Board Form Factor
The D915GAV board is designed to fit into an ATX-form-factor chassis. Figure 25 illustrates the
mechanical form factor of the board. Dimensions are given in inches [millimeters]. The outer
dimensions are 12.00 inches by 9.60 inches [304.80 millimeters by 243.84 millimeters]. Location
of the I/O connectors and mounting holes are in compliance with the ATX specification.
OM16674
6.100
[154.94]
3.100
[78.74]
5.550
[140.97]
6.450
[163.83]
6.500
[165.10]
6.200
[157.48]
5.200
[132.08]
2.850
[72.39]
1.800
[45.72]
0.00
2.600
[66.04]
4.900
[124.46]
0.00
Figure 25. D915GAV Board Dimensions

Table of Contents

Related product manuals