EasyManua.ls Logo

Keysight N5227A - Page 148

Keysight N5227A
326 pages
Print Icon
To Next Page IconTo Next Page
To Next Page IconTo Next Page
To Previous Page IconTo Previous Page
To Previous Page IconTo Previous Page
Loading...
5-32 Service Guide N5227-90001
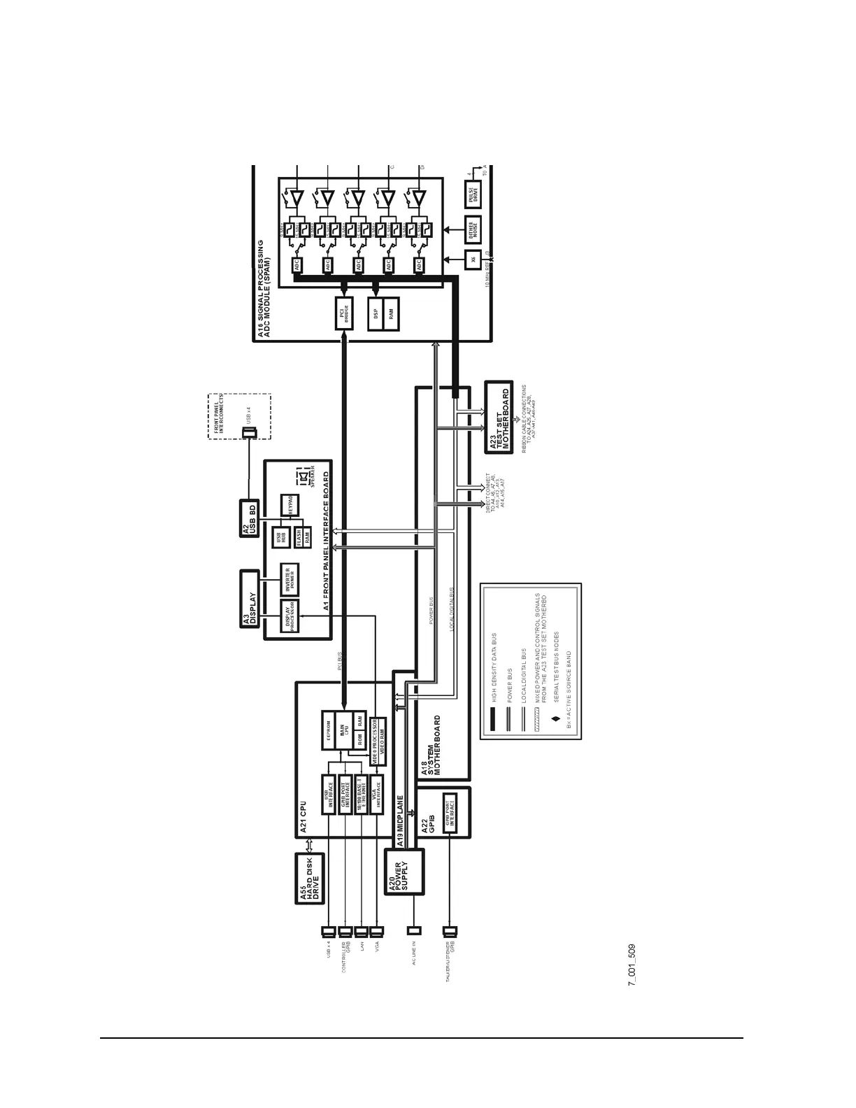
Theory of Operation PNA Series Microwave Network Analyzers
Digital Processing and Digital Control Group Operation N5227A
Figure 5-9 Digital Processing and Digital Control Group

Table of Contents

Other manuals for Keysight N5227A

Related product manuals