EasyManua.ls Logo

King gates Book - 2 - OPERATING LIMITS; 2 A - TYPICAL SYSTEM; 2 B - DIMENSIONS

King gates Book
24 pages
Print Icon
To Next Page IconTo Next Page
To Next Page IconTo Next Page
To Previous Page IconTo Previous Page
To Previous Page IconTo Previous Page
Loading...
"#PPL
#3BJM
$1IPUPDFMMT
%'MBTIJOHMJHI
&4FMFDUPS
C3
C1
C2
C4
E
A
D
B
E
D
B
C3C1
5Y 3Y
C4C2
3Y 5Y
3(EJTUNBYN
NNEJTUNBYN
NNEJTUNBYN
NNEJTUNBYN
NNEJTUNBYN
NNEJTUNBYN
NNEJTUNBYN
NN NYBNUTJE
NN NYBNUTJE
NN NYBNUTJE
"OU
A
-
/
 (SC(SC(MC
 (SC
DN
DPSTBVUJMFDNDN
ND
DN
DN
DN
UPDN
)
ND
DN
DNDN
DNDN
'
'
'
'
'
'
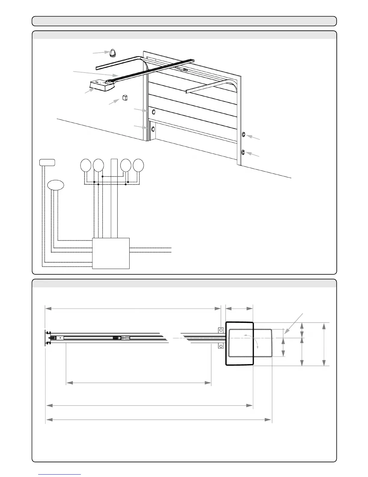
2A - TYPICAL SYSTEM
2C - APPLICATION SET
2B - DIMENSIONS
2 - OPERATING LIMITS
H (cm)
0
2
4
6
8
10
12
14
16
18
20
22
24
26
28
30
32
34
The values on the table refer to the effective run depending both on distance “H” and
the used hole “F”
F1
244
244
244
245
245
F2
240
240
240
241
241
242
243
245
F3
236
236
236
237
237
238
239
240
241
243
245
F4
232
232
232
233
233
234
234
235
237
238
239
241
244
F5
228
228
228
229
229
230
230
231
232
233
235
236
238
240
243
F6
224
224
224
225
225
225
226
227
228
229
230
231
233
234
236
239
241
245

Related product manuals