EasyManua.ls Logo

Kone MX10 - Category 5 Testing of Reduced Stroke Counterweight Oil Buffers

Kone MX10
116 pages
Print Icon
To Next Page IconTo Next Page
To Next Page IconTo Next Page
To Previous Page IconTo Previous Page
To Previous Page IconTo Previous Page
Loading...
KONE Maintenance Method
MX10 / MX20 MCP Procedures - ASME A17.1-2013 / CSA B44-13
© 2014 KONE Corporation PSK8-604-MX10/MX20
All rights reserved.
103 (-) 2014-12-15
Category 5 testing of reduced stroke counterweight oil buffers.
Perform this test only on elevators equipped with ETSL and reduced stroke buffers.
1) Tie down car safety.
2) Capture elevator and ensure no one is on elevator.
3) Ensure elevator cab is empty.
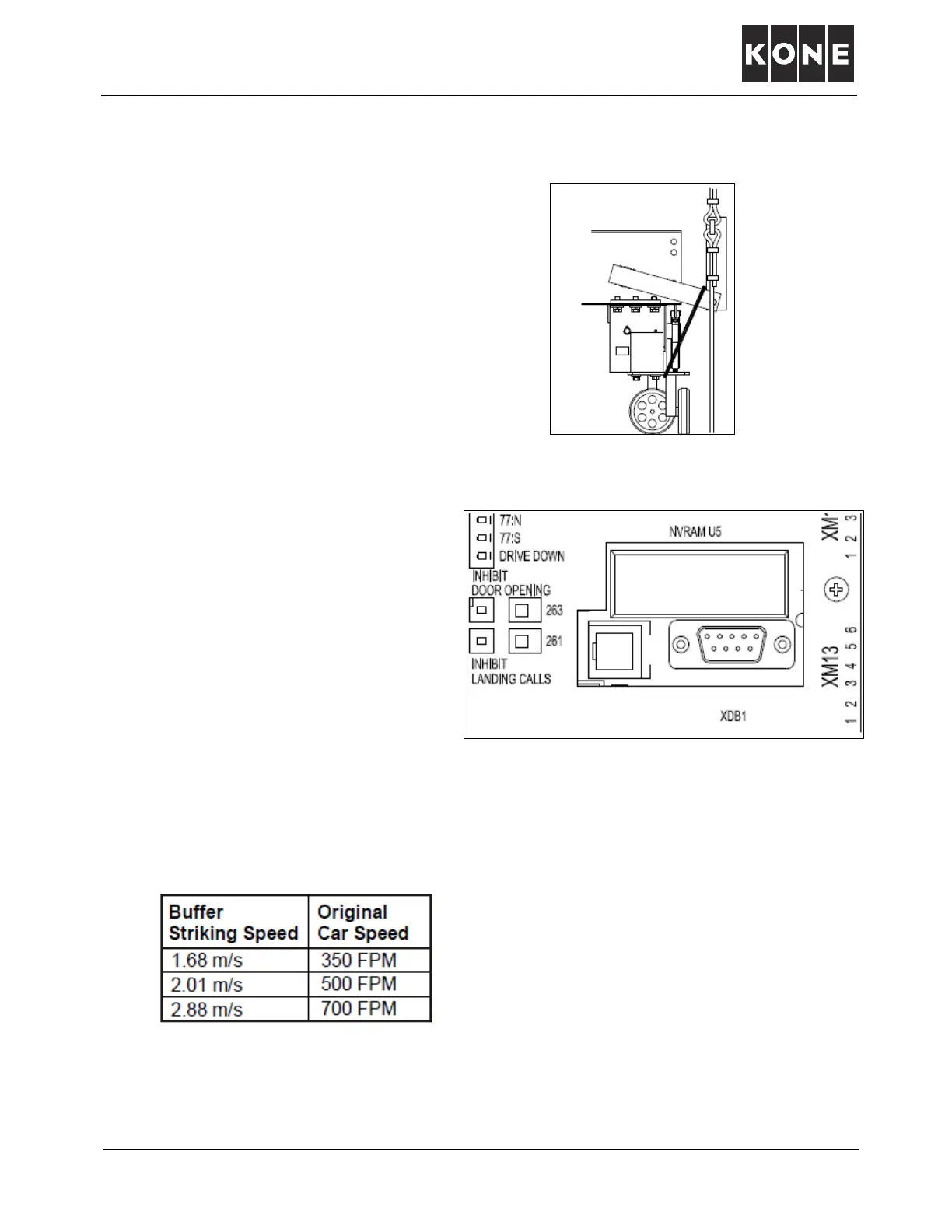
4) Disable hall calls and car calls by
sliding LCECPU switches 263 and 261
to left.
Note: Ensure no passengers are in
car.
5) Drive elevator to bottom terminal
floor.
6) If elevator speed is already reduced, proceed to step below: Return elevator to bottom floor.
If not, reduce elevator speed to buffer striking speed as follows.
Put elevator on machine room inspection by setting switch 270 DOWN.
Access menu 6-3 and set to buffer striking speed:
Access menu 6-99 and select 1 to save.
7) Back out of menu 6 and return car to normal operation.
Sets car speed to buffer striking speed.
Buffer striking speed is listed on buffer
data plate. Verify buffer striking speed.

Table of Contents

Related product manuals