EasyManua.ls Logo

Lennox XC17 Series - Unit Wiring Diagrams

Lennox XC17 Series
59 pages
Print Icon
To Next Page IconTo Next Page
To Next Page IconTo Next Page
To Previous Page IconTo Previous Page
To Previous Page IconTo Previous Page
Loading...
Page 51
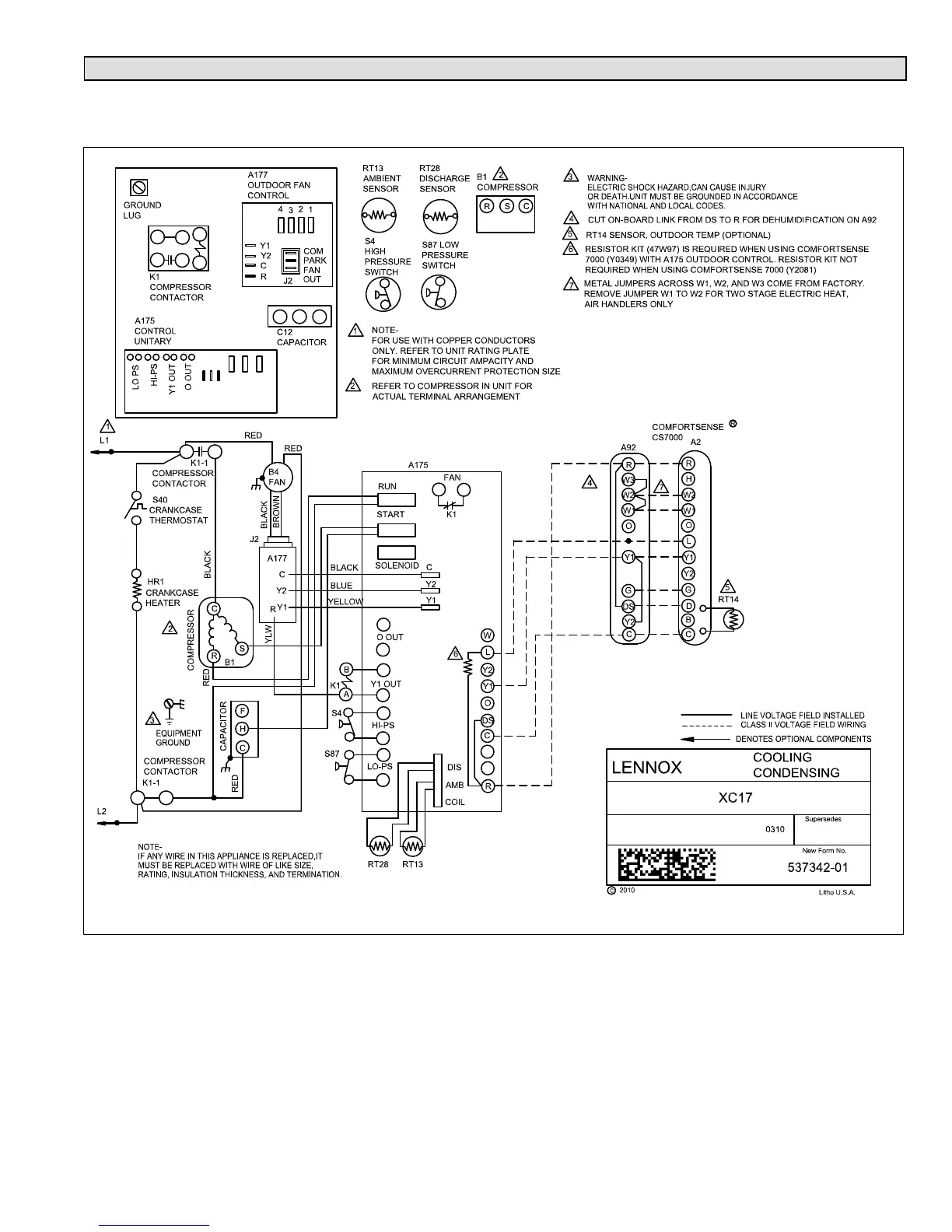
XC17
Unit Wiring Diagrams
Service technician will need to visually inspect the unit being service to determine which wiring diagram is applicable. Quick
verification can usually be made by comparing the wiring diagram located on the unit access panel to the following diagrams.
Figure 27. Typical XC17 Wiring (Non−communicating − Original) (XC17−XXX−230−01)

Related product manuals