EasyManua.ls Logo

Lenze 4800 - Page 296

Lenze 4800
342 pages
Print Icon
To Next Page IconTo Next Page
To Next Page IconTo Next Page
To Previous Page IconTo Previous Page
To Previous Page IconTo Previous Page
Loading...
Selection aid
15-4
48XX/49XXSHB0399
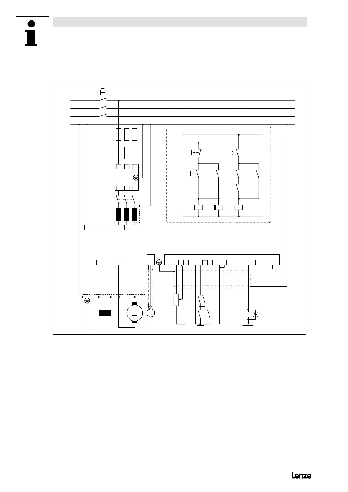
15.2 Speed control with resolver
4900Str100
Z1
K1
F '1 ...F '3
L
K
F ''1 ...F ''3
Q1
L1
L2
L3
PE
L1 L2 L3
L'1 L'2 L'3
L1 L2 L3PE
I K 20B
F'4
M
M1
21 28 39 40 59 90 FE8 97
X1 X2 X3 X4
4900
A
cw
R
22
ccw
K2
A4
K3
S1
S2
K2
K2 K2.1 K1
K2.1
K2K3
K1
td
L11
L10
L20
X7
IK AB
Crtl.
enable
n
set
QSP
n a c t = 0
td > tB r.
D irect connection to control cable "O N "
"E m e rg e n c y o ff" c a b le
FIG 15-2 Connection diagram for speed control with resolver
Show/Hide Bookmarks

Table of Contents

Related product manuals