EasyManua.ls Logo

Lenze 4800 - Page 300

Lenze 4800
342 pages
Print Icon
To Next Page IconTo Next Page
To Next Page IconTo Next Page
To Previous Page IconTo Previous Page
To Previous Page IconTo Previous Page
Loading...
Selection aid
15-8
48XX/49XXSHB0399
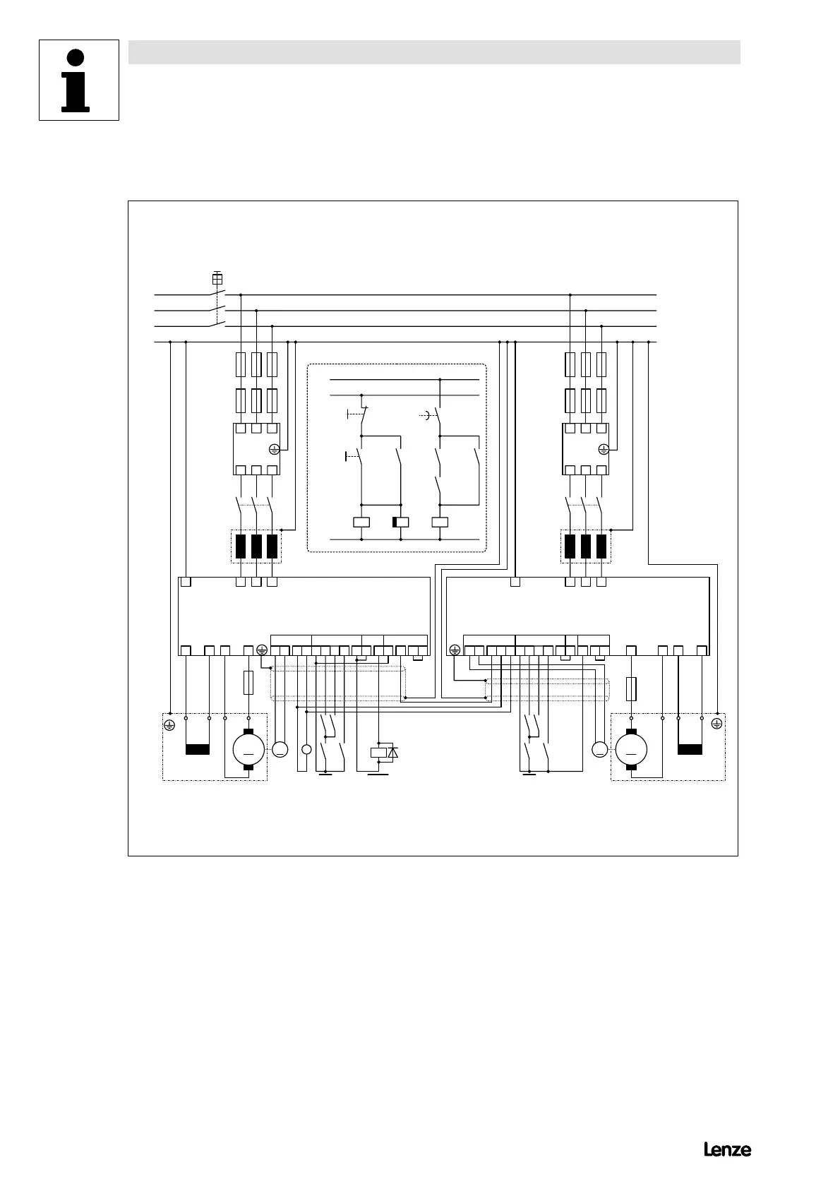
15.4 Current-ratio control
4900Str102
Z1
K1
F'1...F'3
L
K
F ''1 ...F ''3
Q1
L1
L2
L3
PE
L1 L2 L3
L'1 L'2 L'3
L1 L2 L3PE
I K 20B
F'4
M
IK AB
M1
21 28 39 40 5987
X1 X2 X3 X4
4900 (M aster)
A
cw
T
43 22
ccw
K2
A4
K3
62 90
FE
+
-
Z2
K1
F '5 ...F '7
L
K
F ''4 ...F ''6
L1 L2 L3
L'1 L'2 L'3
L1 L2 L3PE
IK20 B
F'8
M
IKAB
M2
21 28 39 40 5987
X1 X2 X3 X4
A
cw
T
43 22
ccw
K2
90
FE
6
4900 (S lave)
S1
S2
K2
K2 K2.1 K1
K2.1
K2K3
K1
td
td > tB r.
L11
L10
L20
Crtl.
enable
nsoll
QSP
nist = 0
Is o ll
Uleit
Crtl.
enable
nsoll
QSP
Is o ll
D irektleitung von der Steuerleitung "Ein"
"N ot-Aus" Leitung
FIG 15-4 Connection diagram for current-ratio control
Show/Hide Bookmarks

Table of Contents

Related product manuals