EasyManua.ls Logo

Lenze 8200 vector - Fig. 5.5-4 Dimensions for Thermally Separated Mounting 15; Thermally Separated Mounting (Push-Through Technique)

Lenze 8200 vector
588 pages
Print Icon
To Next Page IconTo Next Page
To Next Page IconTo Next Page
To Previous Page IconTo Previous Page
To Previous Page IconTo Previous Page
Loading...
Basic units in the power range 15 ... 30 kW
Thermally separated mounting (push-through technique)
5
Basic device installation
5.5
5.5.4
L
5.5-4
EDS82EV903-1.0-11/2002
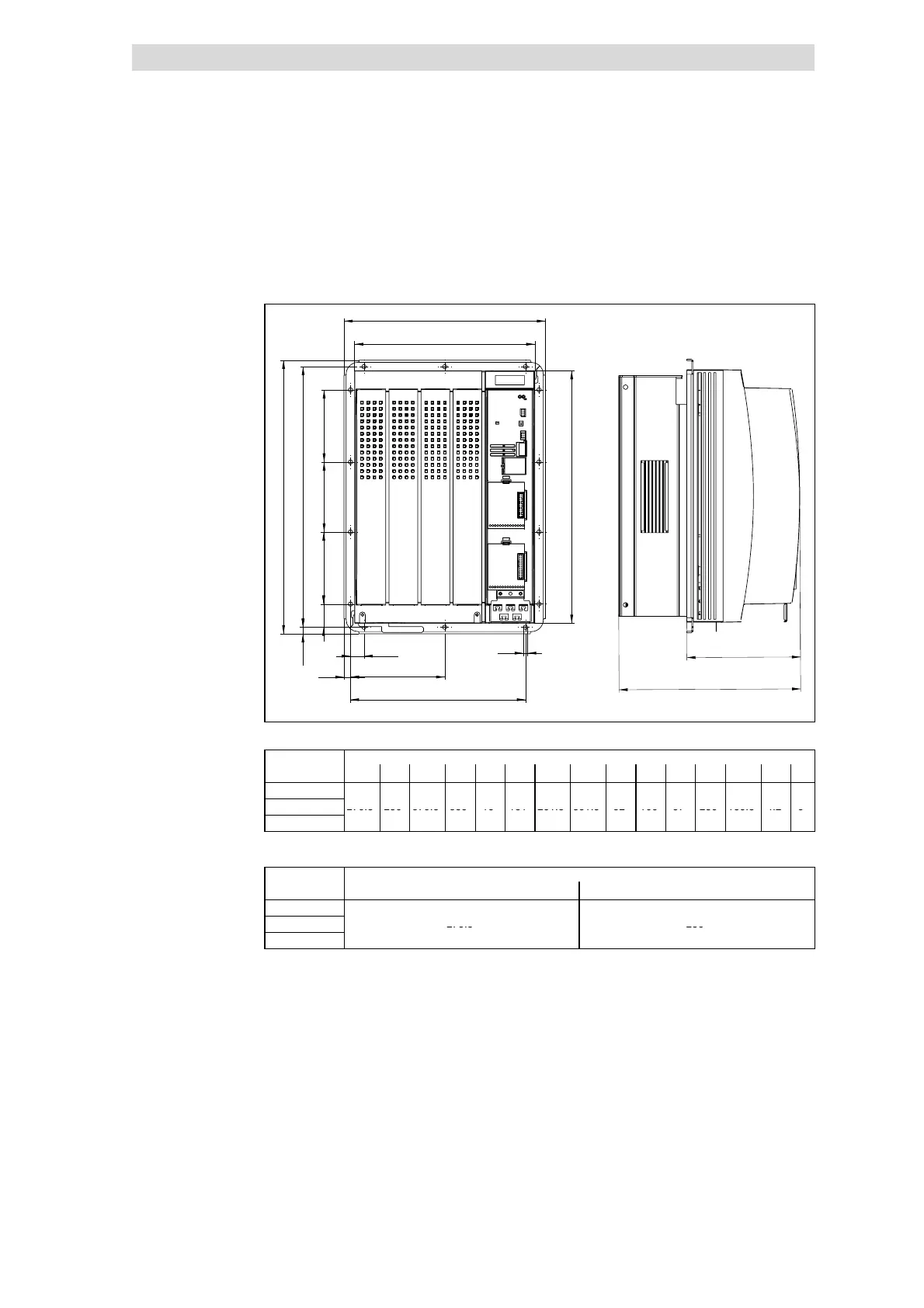
5.5.4 Thermally separated mounting (push-through technique)
For mounting in push-through technique use the controller type E82 D V... . The
delivery package includes all parts and components required for mounting.
h
c1
c2
c3
h
d1
d2
d3
d2
d
b
a1
a
g
b1
e1
e
8200vec304
Fig. 5.5-4 Dimensions for thermally separated mounting 15 ... 30 kW
Dimensions [mm]
8200 vector a a1 b b1 c1 c2 c3 d d1 d2 d3 e e1 g h
E82DV153K4B
E82DV223K4B 279.5 250 379.5 350 19 131 261.5 361.5 32 100 97 250 159.5 4.2 9
E82DV303K4B
2
7
9
5
2
5
0
3
7
9
5
3
5
0
1
9
1
3
1
2
6
1
5
3
6
1
5
3
2
1
0
0
9
7
2
5
0
1
5
9
5
4
2
9
Mounting cutout in the control cabinet
Dimensions [mm]
8200 vector a a1
E82DV153K4B
E82DV223K4B 279.5 250
E82DV303K4B
2
7
9
5
2
5
0
Show/Hide Bookmarks

Table of Contents

Other manuals for Lenze 8200 vector

Related product manuals