EasyManua.ls Logo

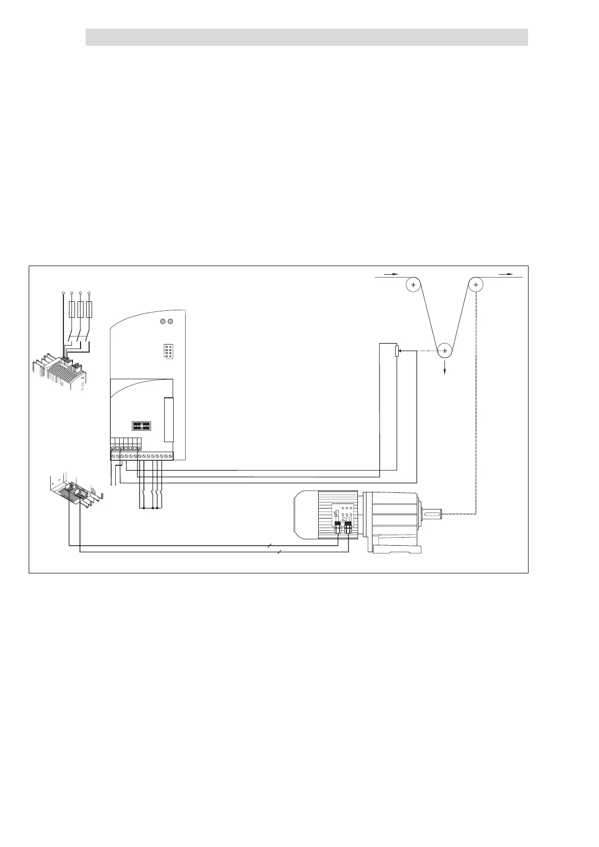
Lenze 8200 vector - Fig. 15.4-1 Principle Wiring of a Dancer Position Control

Lenze 8200 vector
588 pages
Print Icon
To Next Page IconTo Next Page
To Next Page IconTo Next Page
To Previous Page IconTo Previous Page
To Previous Page IconTo Previous Page
Loading...
Dancer position control (linear drive)
15
Application examples
15.4
L
15.4-2
EDS82EV903-1.0-11/2002
Set C0070, C0071, C0072 in a way that if the dancer changes its actual position,
its original position can be reached quickly and without excessive overshooting.
1. X3/E4 = HIGH (process controller stop), C0072 = 0 (no influence).
2. Set C0070.
3. X3/E4 = LOW, C0072 = 0 (no influence).
4. Set C0071.
5. Set C0072.
JOG1/3
QSP
PCTRL1-OFF
CINH
V
1
V
2
F
G
S
E
A
R1
+5 V
0 ...+10 V
W
2
U
2
V
2
U
PE
1
V
1
W
1
2
4
PE
L1
F1
K1
L2
L3
1
2
T
2
T
1
A2A1 7 7
A4
59 20 28 E1
E2
E3 E4
E5 E6
1U 1I
2U
2I
62
63 9
Application-I/O
Fig. 15.4-1 Principle wiring of a dancer position control
Mains contactor
Main setpoint ~V1
Dancer potentiometer
Adjustment

Table of Contents

Other manuals for Lenze 8200 vector

Related product manuals