EasyManua.ls Logo

Lenze 8200 vector - Page 242

Lenze 8200 vector
588 pages
Print Icon
To Next Page IconTo Next Page
To Next Page IconTo Next Page
To Previous Page IconTo Previous Page
To Previous Page IconTo Previous Page
Loading...
Parameter setting with the E82ZBC keypad
Vector control
8
Commissioning
8.4
8.4.2
L
8.4-4
EDS82EV903-1.0-11/2002
Switch-on sequence Comment
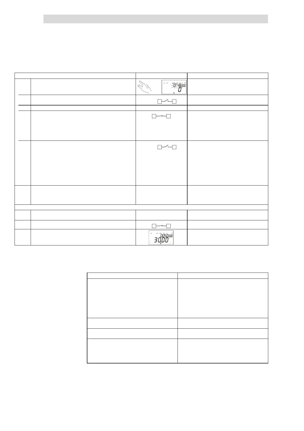
15. Start the motor paramete r identificatio n (C0148)
z
y
w
x
a
b
c
d
e
j
g
f
k
i
h
PS
mno
p
qr
Hi
Hz
Lo
Only when the motor is cold!
A) Ensure that the controller is inhibited
misc001
20 28
X3
}
Terminal X3/28 = LOW
B) Set C0148 = 1 Press v in addition
C) Enable the controller.
misc002
20
28
X3
Terminal X3/28 = HIGH
The identification starts:
The segment
c is off
The motor consumes current and makes a
“high-pitched” tone.
The motor does not rotate!
D) If the segment c becomes active after approx. 30 s, inhibit the
controller once again
misc001
20 28
X3
}
Terminal X3/28 = LOW
Identification is completed.
Calculated and stored:
V/f rated fre quency (C0015)
Slip compensation (C0021)
Motor stator inductance (C0092)
Measured and stored:
Motor stator resistance (C0084) = Total
resistance of motor cable and motor
16. If necessary, adjust more parameters Activate e. g. JOG frequencies
(JOG) (C0037, C0038, C0039 or
motor parameter monitoring
(C0119)
After parameter setting:
17. Setpoint selection E.g. via potentiometer at
terminals7,8,9
18. Enable the controller.
20
28
X3
misc002
Terminal X3/28 = HIGH
19. The drive should now be running at e.g. 30 Hz
a
b
c
d
e
j
g
f
k
i
h
PS
mno
p
qr
Hi
Hz
Lo
If the drive does not start, press u in addition
In general, the vector control is ready for operation after the motor parameters
have been identified. Vectorcontrol must only be optimised forthe following drive
performance: 32
Drive performance Remedy
Rough motor run and motor current (C0054) > 60 %
rated motor current in idle running (stationary operation)
1. Reduction of motor inductance (C0092) by 10 %
2. Check of motor current under C0054
3. If the motor current (C0054) > 50 % of the rated
motor current:
C0092 must be reduced until the mot or current
amounts to 50 % of the rated motor current
Reduce C0092 by max. 20 %!
Note: If you reduce C0092 the t o rque will decrease!
Torque too low for frequencies f < 5 Hz (starting torque) Increase of motor resistance (C0084) or increase of
motor inductance (C0092)
Poor constant speed at high loads (setpoint and motor
speed are not proportional).
Increase o f slip compensa t i on (C0021)
Overcompensation results in drive instability!
Error messages OC1, OC3, OC4 or OC5 during
acceleration times (C0012) < 1 s (drive controller is no
longer able to follow the dynamic processes)
Change readjustment time of the I
max
controller (C0078):
Reduction o f C0078 = I
max
controller becomes quicker
(more dynamic)
Increase of C0078 = I
max
controller becomes slower
(”smoother”)
Optimising the vector control
Show/Hide Bookmarks

Table of Contents

Other manuals for Lenze 8200 vector

Related product manuals