EasyManua.ls Logo

Lenze ECSES Series - Page 140

Lenze ECSES Series
484 pages
To Next Page IconTo Next Page
To Next Page IconTo Next Page
To Previous Page IconTo Previous Page
To Previous Page IconTo Previous Page
Loading...
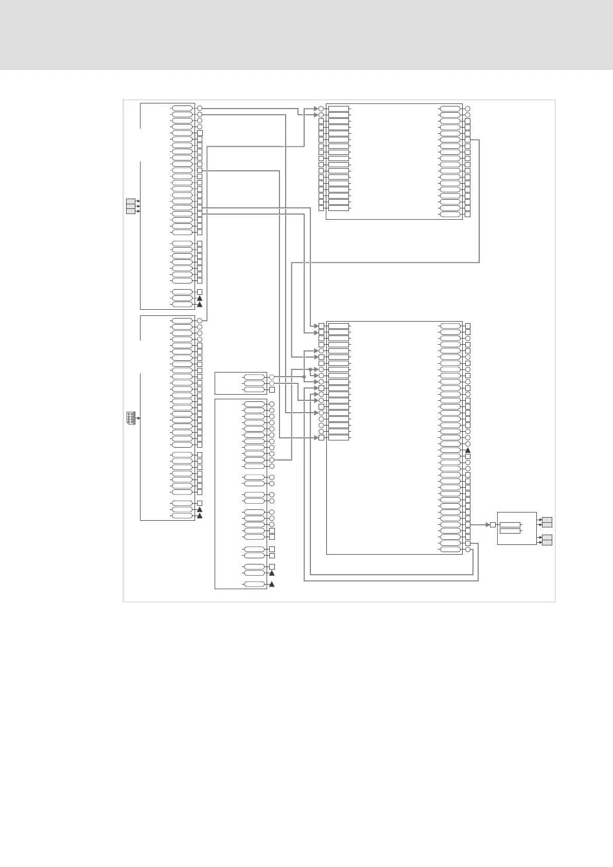
Commissioning
Selecting the operating mode/control structure
Torque control with setpoint via MotionBus (CAN)
6
140
EDBCSXS064 EN 4.0
DigOut
Out1
Relais
C6371/1
C6371/2
X6
DO1
SO
B2
B1
X25
FIXED
100%
-100%
1/TRUE
2
3
2
FCODE
C0037
C0109/2
C0141
C0472/1
C0472/2
C0472/3
C0472/4
C0472/10
C0472/11
C0472/20
C0473/1
C0473/10
C0475/1_v
C0475/2_v
C0250
C0471.Bit0
C0471.Bit31
C0135.Bit0
C0135.Bit15
C0474/1
C0474/5
C0108/1
C0108/2
C0109/1
C0017
43
44
45
46
47
48
49
50
51
52
58
59
68
69
78
79
80
271
272
303
304
319
16
20
38
...
...
...
...
...
...
DCTRL
Stat
wAIF1Ctrl
Trip
TripSet1
Qspin
TripSet2
Rdy
TripSet3
CwCcw
TripSet4
NActEq0TripReset1
Clnh
TripReset2
Stat1StatB0
Stat2StatB2
Stat4StatB3
Stat8StatB4
Warn
StatB5
Mess
StatB14
Init
StatB15
ExternalFault
FaultNumber
CAN1Ctrl
Fail
CInh1
Imp
CInh2
C6331/1
C6331/2
C6311/3
C6311/2
C6311/1
C6311/12
C6311/13
C6311/14
C6311/4
C6311/15
C6311/5
C6311/6
C6311/7
C6311/8
C6311/9
C6311/10
C6311/11
37
36
255
256
270
257
258
259
260
261
262
263
264
265
266
267
268
269
CAN1In
DctrlCtrl
Ctrl.Bit0
Ctrl.Bit1
Ctrl.Bit2
Ctrl.Bit4
Ctrl.Bit5
Ctrl.Bit6
Ctrl.Bit7
Ctrl.Bit12
Ctrl.Bit13
Ctrl.Bit14
Ctrl.Bit15
Bit0
Bit31
W1.Bit0
W1.Bit1
W1.Bit2
W1.Bit3
W1.Bit4
W1.Bit5
W1.Bit15
W0/W1
W2/W3
...
...
146
147
148
149
150
151
152
153
154
155
156
157
188
24
25
26
23
141
142
143
144
145
800
801
802
803
804
805
815
24
13
X4
CG
CH
CL
W1
W2
Ctrl.TripReset_B11
Ctrl.TripSet_B10
Ctrl.Disable_B8
Ctrl.CInhibit_B9
W3
Ctrl.Quickstop_B3
AIF1in
DctrlCtrl
Ctrl.Bit1
Ctrl.Bit2
Ctrl.Bit4
Ctrl.Bit5
Ctrl.Bit6
Ctrl.Bit7
Ctrl.Bit12
Ctrl.Bit13
Ctrl.Bit14
Ctrl.Bit15
Bit0
Bit31
W1.Bit0
W1.Bit1
W1.Bit2
W1.Bit3
W1.Bit4
W1.Bit5
W1.Bit15
W0/W1
W2/W3
W1
...
...
13
19
20
11
12
10
24
25
26
27
28
29
30
31
32
33
34
35
66
21
22
23
10
21
700
701
702
703
704
705
715
X1
Ctrl.Bit0
W2
Ctrl.Quickstop_B3
Ctrl.Disable_B8
Ctrl.CInhibit_B9
Ctrl.TripSet_B10
W3
Ctrl.TripReset_B11
Torque
RLQ.QSPRLQ.Cw
NSET.NSet
MCTRL.QspIn
MCTRL.NSetIn
MCTRL.MMax
MCTRL.MSetIn
MCTRL.IMax
MCTRL.HiMLim
MCTRL.IAct
MCTRL.NegLoMLim
MCTRL.DCVolt
MCTRL.MAct
MCTRL.NAdapt
MCTRL.UnderVoltage
MCTRL.ILoad
MCTRL.MAddInv
MCTRL.OverVoltage
MCTRL.ISet
MCTRL.ShortCircuit
QSPSet1
MCTRL.NStartMLim
MCTRL.MAdd
MCTRL.FldWeak
BRK.SpeedThreshold
BRK.Sign
BRK.SetBrake
MCTRL.EarthFault
QSPSet2
MCTRL.IxtOverload
MCTRL.Pos
MCTRL.NAct_v
MCTRL.NAct
MCTRL.Pos
MCTRL.NmaxFault
MCTRL.NmaxC11
MCTRL.wMaxC57
MCTRL.EncoderFault
MCTRL.ResolverFault
MCTRL.SensorFault
MCTRL.MotorTempGreaterSetValue
MCTRL.MotorTempGreaterCO121
MCTRL.KuehlGreaterSetValue
MCTRL.KuehlGreaterCO122
BRK.SetQSP
BRK.NegOut
BRK.Out
BRK.SetCInh
BRK.MStore
BRK.MSetOut
RLQ.CwCCwRLQ.CCw
NSET.NOut
NSET.RfgStop
NSET.RfglEq0NSET.Rfg0
C7511/2
C7511/8
C7511/3
C7531/2
C7511/5
C7511/6
C7531/4
C7531/3
C7531/7
C7511/7
C7511/9
C7531/8
C7531/5
C7531/1
C7531/6
C7531/9
C7531/10
C7511/4
C7511/1
461
131
401
340
100
341
101
342
102
103
104
344
345
346
347
357
105
106
107
40
348
108
109
349
356
355
350
351
353
354
420
421
422
423
424
141
460
ECSXA275
Fig. 6−16 Signal flow diagram for configuration 4005 (setpoint via MotionBus (CAN))

Table of Contents

Other manuals for Lenze ECSES Series

Related product manuals