EasyManua.ls Logo

LG 84WT70PS - Page 64

LG 84WT70PS
82 pages
Print Icon
To Next Page IconTo Next Page
To Next Page IconTo Next Page
To Previous Page IconTo Previous Page
To Previous Page IconTo Previous Page
Loading...
64
ENG
ENGLISH
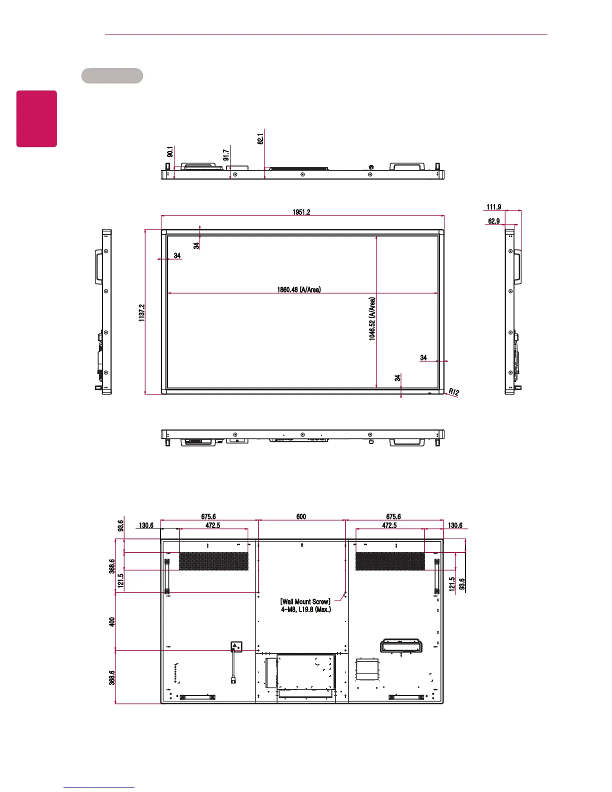
SPECIFICATIONS
Dimensions
The illustrations in this manual may differ from the actual product and accessories.
Please see the Mounting on a wall section for sizes of screws.
Product specifications shown above may be changed without prior notice due to upgrade of product
functions.
]^\U] ]WW ]^\U]
Z]_U][WWZ]_U]
[^YU\
XYXU\ `ZU]
XZWU] XZWU][^YU\
XYXU\
`ZU]
~GtGz
[Tt_SGsX`U_GOtUP
X`\XUY
XXZ^UY
]YU`
XXXU`
`WUX
`XU^
yXY
X_]WU[_GOhVhP
XW[]U\YGOhVhP
Z[
Z[
Z[
Z[
_YUX

Table of Contents

Related product manuals