EasyManua.ls Logo

Linak CO61 - Page 104

Default Icon
295 pages
Print Icon
To Next Page IconTo Next Page
To Next Page IconTo Next Page
To Previous Page IconTo Previous Page
To Previous Page IconTo Previous Page
Loading...
Page 104 of 295
S540
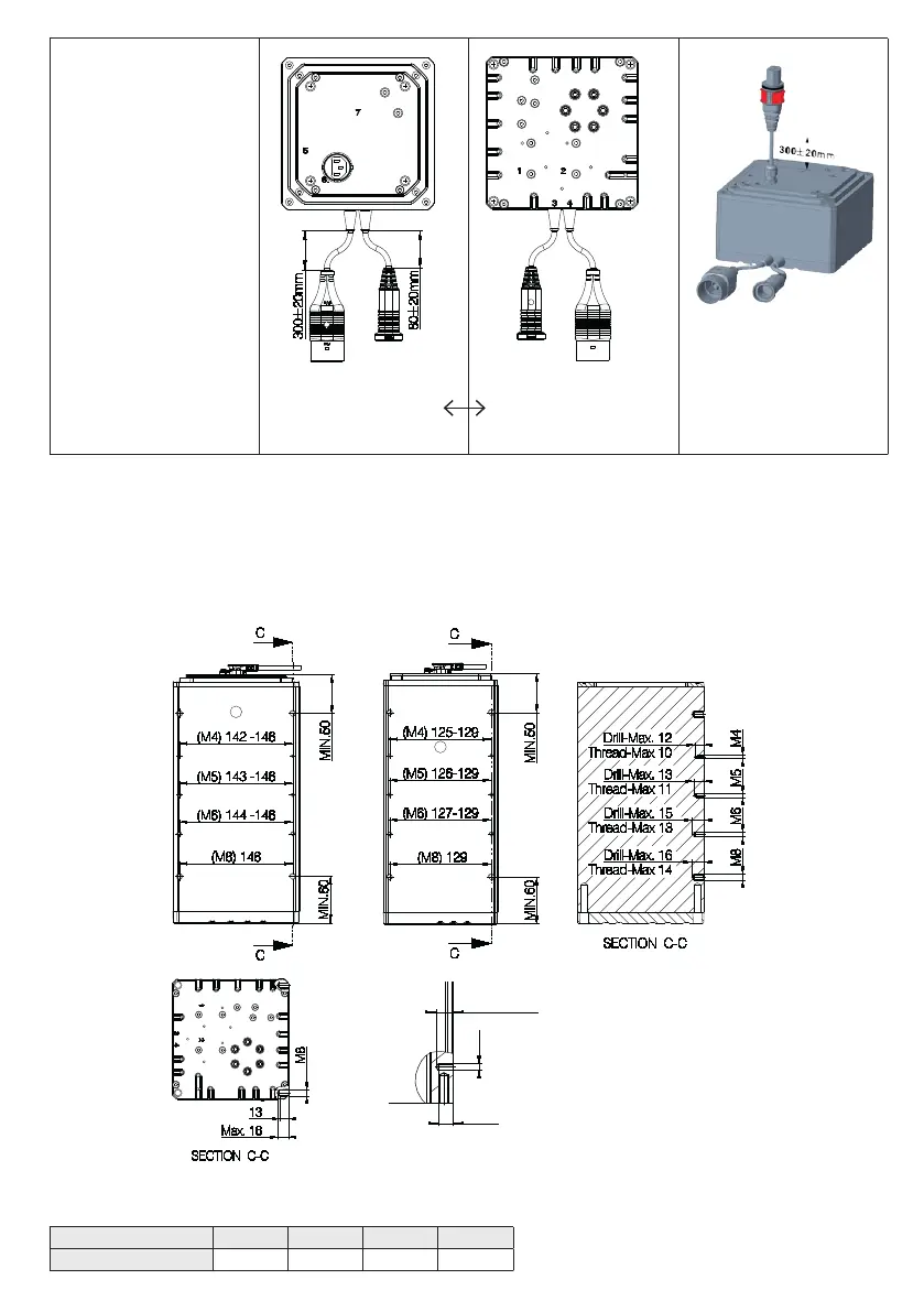
Connections
6: Mains through 2
Male connection top entry,
female connection side entry
3: Motor supply
4: Mains through 2
Male connection top entry,
female connection side entry
Mounting of a product on the side of an LC3
It is possible to mount a product on all 4 sides of the LC3 at the same time. However, it requires that the holes for mounting are placed with different
distances from the top and/or bottom plate. Otherwise the mounting screws will collide.
Minimum distance from the top and bottom plate must be observed.
Drawing no.: 1002w9005
General tolerance +/- 0,5 mm
A
A
Max. 16
Min. 45
Min. 35
13
M8
TOP
SECTION A-A
BOTTOM
3-stage
2-stage
Screw type M8 M6 M5 M4
Screw torque Nm 17 7 4 2
Screws used for mounting of a product on the side of the LC3 must be 8.8.

Table of Contents

Related product manuals