EasyManua.ls Logo

Linear eMerge Essential - Wiring the Inputs

Linear eMerge Essential
20 pages
Print Icon
To Next Page IconTo Next Page
To Next Page IconTo Next Page
To Previous Page IconTo Previous Page
To Previous Page IconTo Previous Page
Loading...
www.linearcorp.com 14 eMerge Essential Installation Manual
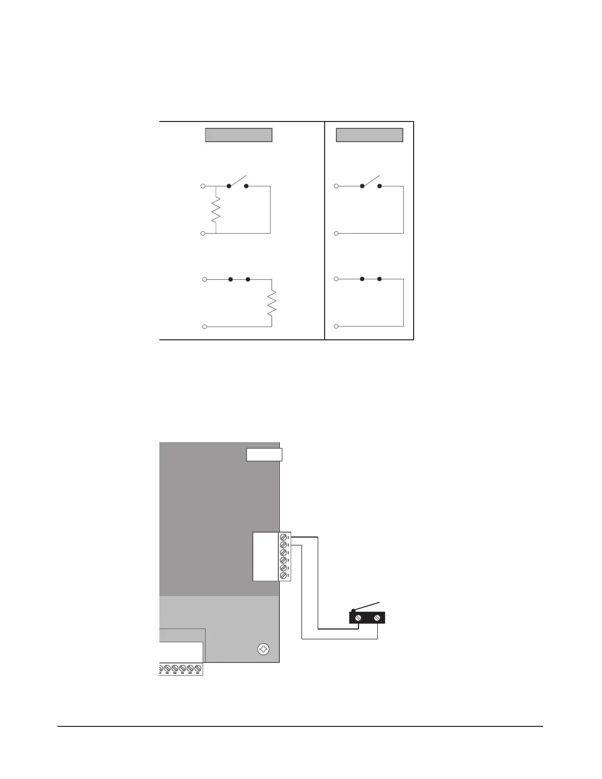
Wiring the Inputs
All inputs may be congured for normally open or normally closed contacts with supervision or
non-supervision. Use standard 1k ohm resistors for supervision. Refer to Figure 5.1 for the ac-
ceptable wiring congurations.
Normally Open
Normally Closed
Normally Open
Normally Closed
SUPERVISED UNSUPERVISED
Resistor Value = 1k Ohm
Figure 5.1. Input Circuit Congurations
Tamper Protection (Emerge Essential)
A tamper switch is mounted inside the enclosure for connection to pin 5 and pin 6 on the terminal strip.
If the eMerge Essential cover is removed for any reason the tamper switch will activate, triggering a con-
dition that can be linked to an event action in programming (e.g., send an e-mail or generate an output).
PIN 6
PIN 5
PIN 4
PIN 3
PIN 2
PIN 1
EMERGE ESSENTIAL CONTROL PANEL
6-pin terminal block
AUX RELAY 4
AUX RELAY 3
AUX RELAY 2
AUX RELAY 1
AUX INPUT 4
AUX INPUT 3
AUX INPUT 2
AUX INPUT 1
INPUT
GND
INPUT
GND
+12V
LED
Buzzer
D0
D1
GND
NC
C
NO
+12V
LED
Buzzer
D0
D1
GND
INPUT
GND
INPUT
GND
+12V
LED
Buzzer
D0
D1
GND
NC
C
NO
AUX IN 2
GND
AUX IN 1
GND
AUX IN 4
GND
AUX IN 3
GND
NC
C
NO
NC
C
NO
AUX
RLY 4
AUX
RLY 3
NC
C
NO
NC
C
NO
+12V
LED
Buzzer
D0
D1
GND
+12V
LED
Buzzer
D0
D1
GND
INPUT
GND
INPUT
GND
NC
C
NO
+12V
LED
Buzzer
D0
D1
GND
+12V
LED
Buzzer
D0
D1
GND
INPUT
GND
INPUT
GND
NC
C
NO
DOOR 1DOOR 2
DOOR 3DOOR 4
AUX
RLY 2
AUX
RLY 1
Enclosure Knockouts
Screw for cover
Enclosure Knockouts
Top Mounting Hole Top Mounting Hole
Factory
Installed
Tamper
TMP -
TMP +
FLT -
FLT +
GND
12VDC
Figure 5.2. eMerge Essential Tamper Input Wiring
Cable Specications:
22 AWG Belden or
equivalent. Maximum
distance: 2000 feet.

Related product manuals