EasyManua.ls Logo

LNS Quick Load Servo 80 - Page 127

LNS Quick Load Servo 80
129 pages
Print Icon
To Next Page IconTo Next Page
To Next Page IconTo Next Page
To Previous Page IconTo Previous Page
To Previous Page IconTo Previous Page
Loading...
CHAPTER 6: SPARE PARTS
6-58
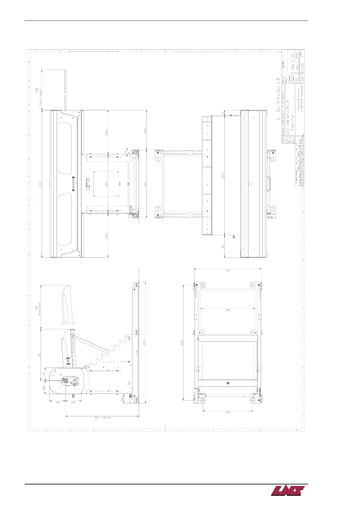
020.015.121 Assembly QLS 80 left/rear – transversal retraction
QUICK LOAD SERVO 65/80

Table of Contents

Related product manuals