EasyManua.ls Logo

LSIS XEC-DN60SU - Page 195

LSIS XEC-DN60SU
315 pages
Print Icon
To Next Page IconTo Next Page
To Next Page IconTo Next Page
To Previous Page IconTo Previous Page
To Previous Page IconTo Previous Page
Loading...
Chapter 5 Positioning Instructions
5 - 96
(b) Used Device
Device
MX0
PWM output reference signal
%KX6721
X-axis error state
(c) Operation of the Program
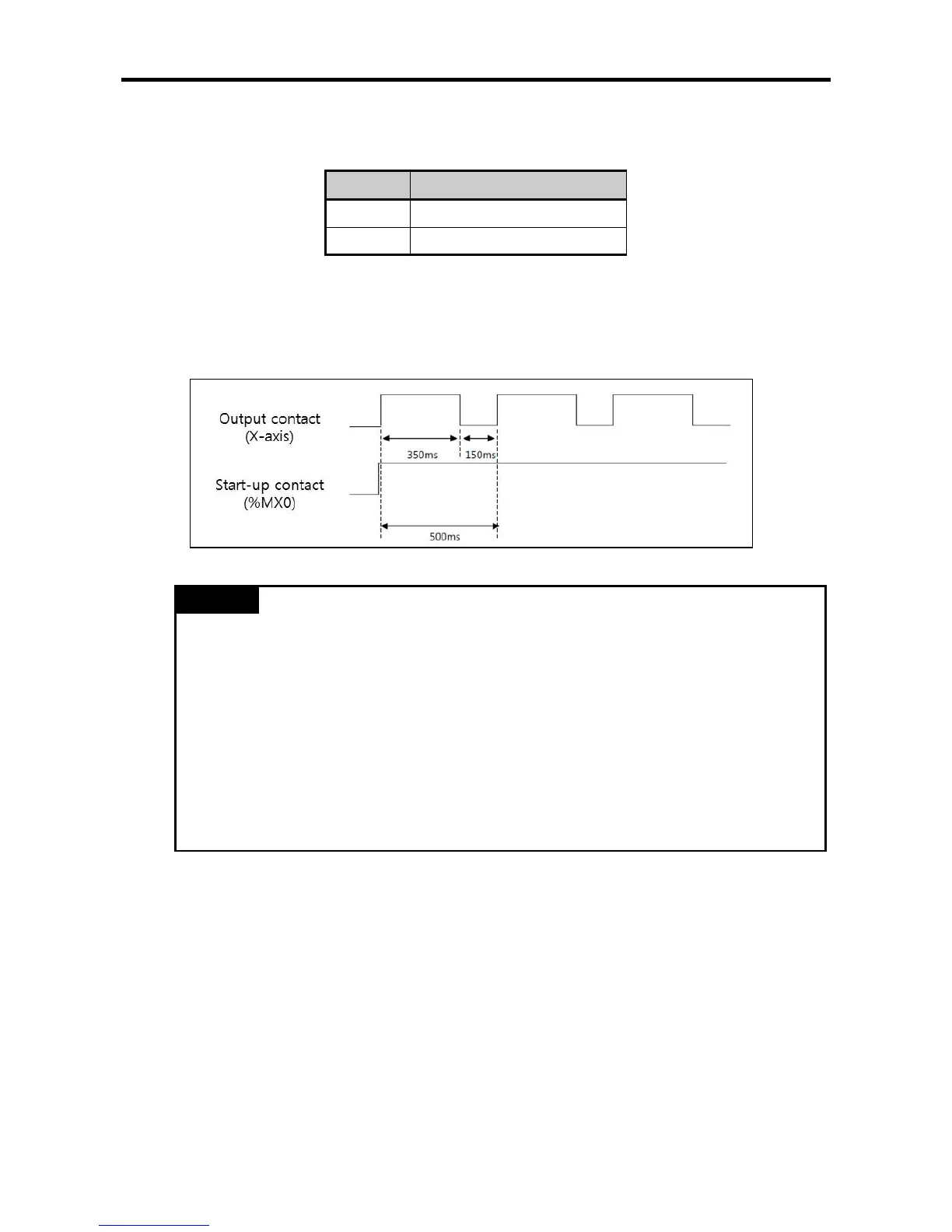
While MX0 is On which is used as output reference signal, PWM is operated.
(At this time, the X-axis is in operation or errorstatus, the instruction will not be executed.)
• If PWM executed, designated output cycle(500ms for this picture) and designated Off duty
rate(30% for this picture)
Remark
• If APM_PWM instruction is executed, other instruction do not operate. And upper/lower limit
does not work
If APM_PWM instruction is executed, STP, EMG instruction doesnt operate. To stop output, Off
the Start-up contact
• If output cycle is changed, when operating APM_PWM, it cannot be applied.
PWM applicable version
-XBM-DNxxS: H/W from V2.0, O/S V3.10
-XBC-DN/DPxxH: O/S from V2.03
-XEC-DN/DPxxH: O/S from V1.50
-XBC-DN/DPxxSU: O/S from V1.10

Table of Contents

Related product manuals