EasyManua.ls Logo

LSIS XEC-DN60SU - Parameter;Operation Data Write Function Block

LSIS XEC-DN60SU
315 pages
Print Icon
To Next Page IconTo Next Page
To Next Page IconTo Next Page
To Previous Page IconTo Previous Page
To Previous Page IconTo Previous Page
Loading...
Chapter 5 Positioning Instructions
5 - 93
5.3.22 Parameter/Operation Data Write Function Block
•Parameter Write instruction (APM_WRT) writes the operation data, which is changed during operation,
of the positioning exclusive K area permanently in the built-in flash memory of the XGB. For the
relation between the positioning exclusive K area and the positioning parameter, see 3.2.2.
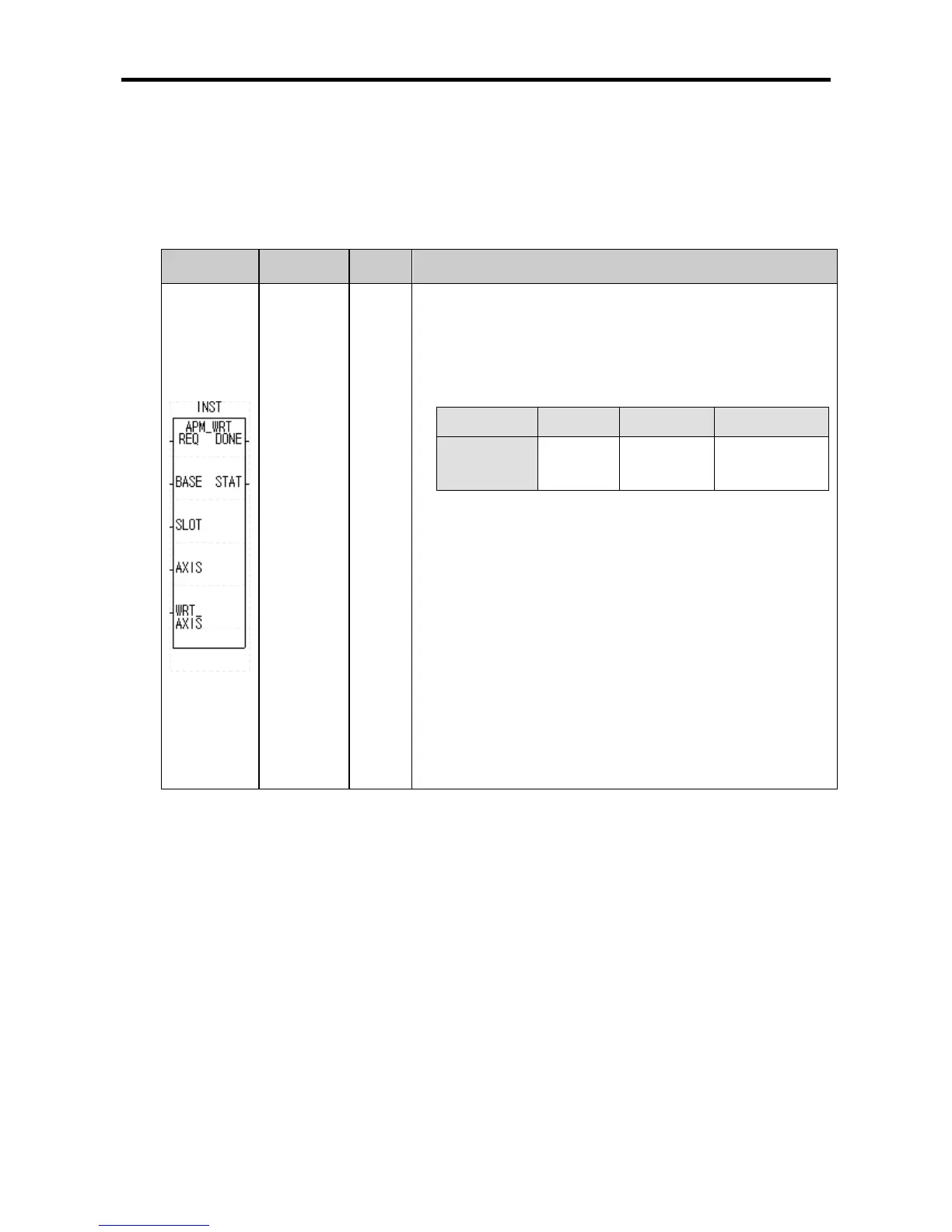
(1) Parameter Write Instruction (APM_WRT)
Form Variable
Data
Type
Description
WRT_AXIS
USINT
•This instruction
provides reference to the XGB internal
positioning for permanent preservation of the operation data
of the exclusive K area.
•At the rising edge of the input condition, as shown below,
saves the operation data of the exclusive K area respective
of the n1 setting in the flash memory device of the XGB,
permanently.
Setting Value 0 1 2
K area to be
preserved
Positioning
Data
High Speed
Counter
Data
PID Control
Data
•If WRT_AXIS is set to 0, the present operation data in the
exclusive K area of the positioning functions X-axis and Y-
axis are permanently stored as the positioning parameters.
If it is set to 1, the setting data in the exclusive K area of all
the high speed counter channels are stored permanently as
the high speed counter parameters.
If it is set to 2, the setting data in the exclusive K area in the
internal PID’s 16 loop are stored permanently as the PID
parameters.
•At this time, although the value set up with AXIS is the
operand which does not have influence on the execution of
the APM_WRT instruction, however, be careful that, if it
exceeds the setting range (0 ~ 1), 11 is outputted to STAT
and the instruction is not executed.

Table of Contents

Related product manuals