EasyManua.ls Logo

LST BC06 Series - Smoke Aspiration System FAAST LT - Model FL0122

Default Icon
200 pages
Print Icon
To Next Page IconTo Next Page
To Next Page IconTo Next Page
To Previous Page IconTo Previous Page
To Previous Page IconTo Previous Page
Loading...
(07 &'J:# &
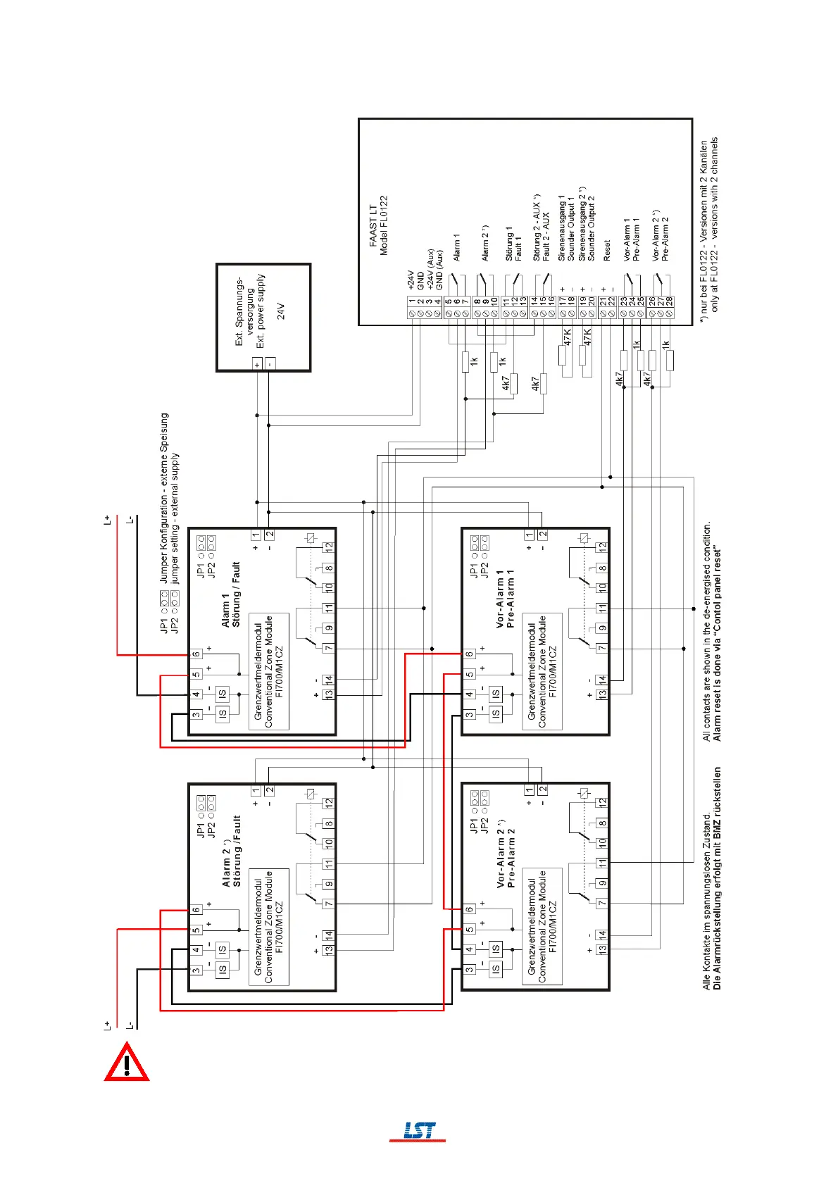
3.8.28 Smoke Aspiration System FAAST LT – Model FL0122
.$&4;&)(3;&377
$()/)7('*$
L
&"/)779/%9(3()91
)77/(07
150

Table of Contents

Related product manuals