EasyManua.ls Logo

LST BC06 Series - Address Setting; Combi Module with Six (6) Supervised Inputs and Two (2) Relay Outputs; Connection of Combi Module FI700;M6 IN2 REL; Function of the Leds

Default Icon
200 pages
Print Icon
To Next Page IconTo Next Page
To Next Page IconTo Next Page
To Previous Page IconTo Previous Page
To Previous Page IconTo Previous Page
Loading...
& &'J:# (39
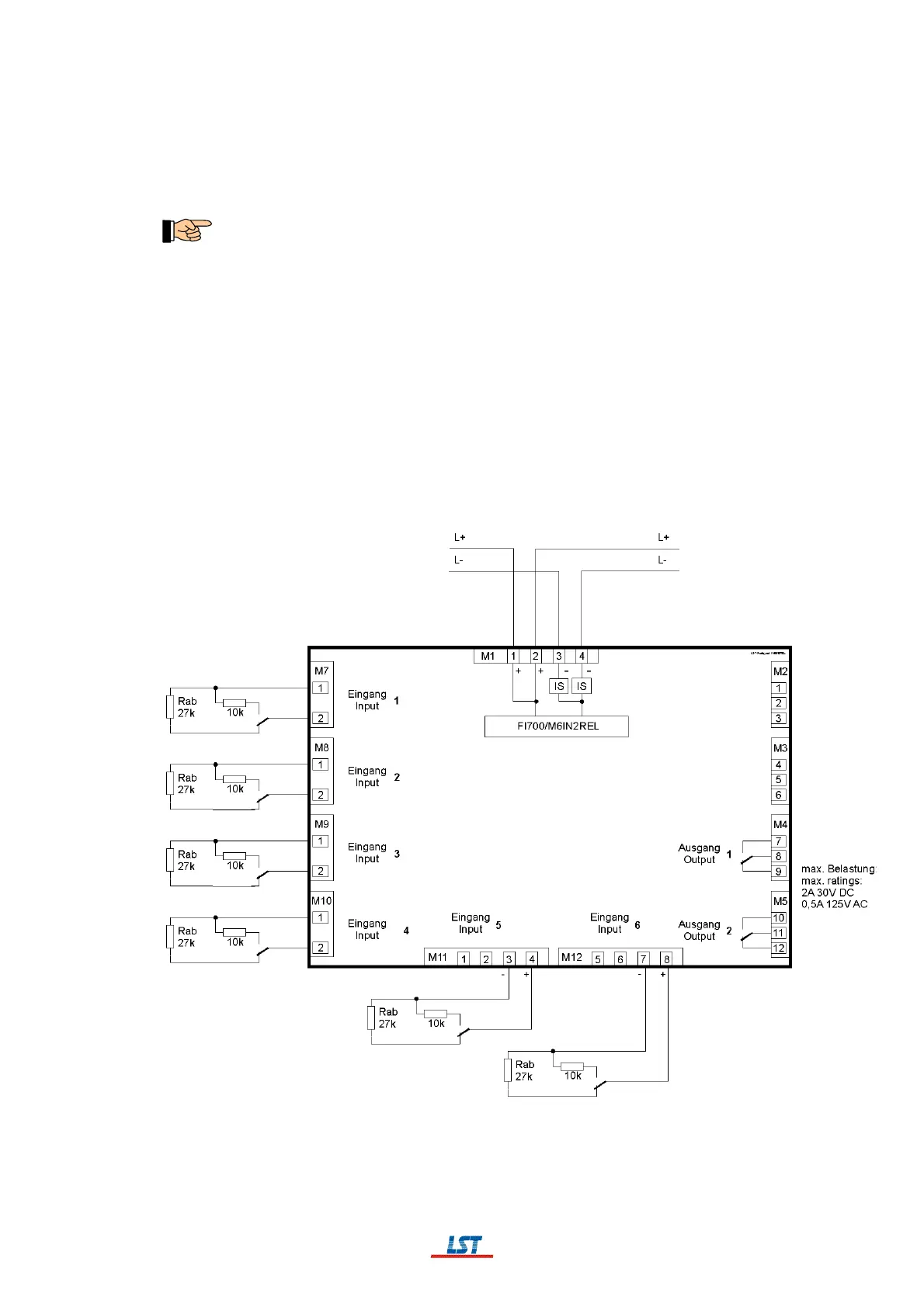
3.11.5 Combi module with six (6) supervised inputs and two (2) relay outputs
'((0( 
:90&''IQ
S5
"CAD"

*(NAX*)NAR(X*'NAR)X*,NAR'X*0NAR,X*3NAR0
<(NAR3X<)NAR6
'((0) .5:
5:
.I
*5:$
"5:$
*5:
.I
"5:
'((0' &&#.*677/#3*%)<5
&"/)779/%9(3()91
)77/(39
169

Table of Contents

Related product manuals