EasyManua.ls Logo

LST BC06 Series - Flame Detector Series 800;24-VST-K-N

Default Icon
200 pages
Print Icon
To Next Page IconTo Next Page
To Next Page IconTo Next Page
To Previous Page IconTo Previous Page
To Previous Page IconTo Previous Page
Loading...
& &)J& ,'
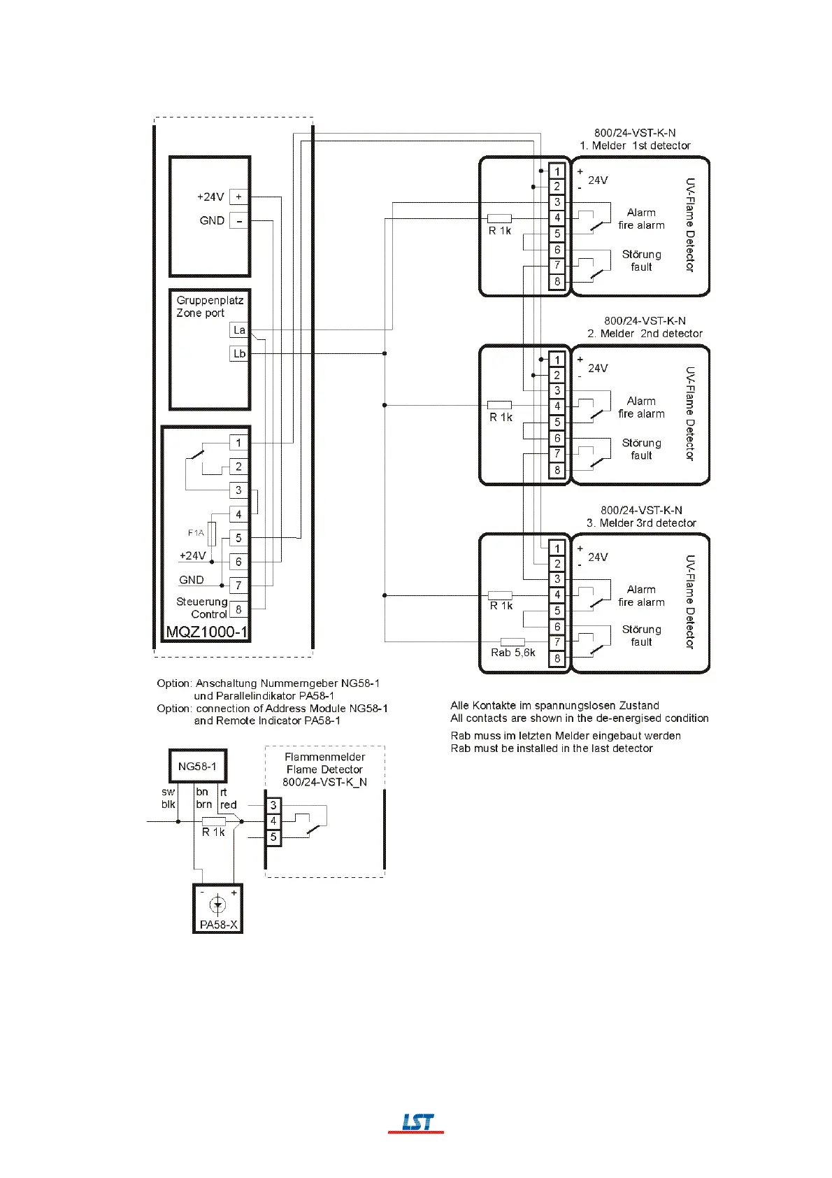
2.9.2 Flame Detector Series 800/24-VST-K-N
&"/)779/%9(3()91
)77/,'
43

Table of Contents

Related product manuals