EasyManua.ls Logo

LST BC06 Series - Smoke Aspiration System FAAST 8100 E

Default Icon
200 pages
Print Icon
To Next Page IconTo Next Page
To Next Page IconTo Next Page
To Previous Page IconTo Previous Page
To Previous Page IconTo Previous Page
Loading...
& &'J:# (0(
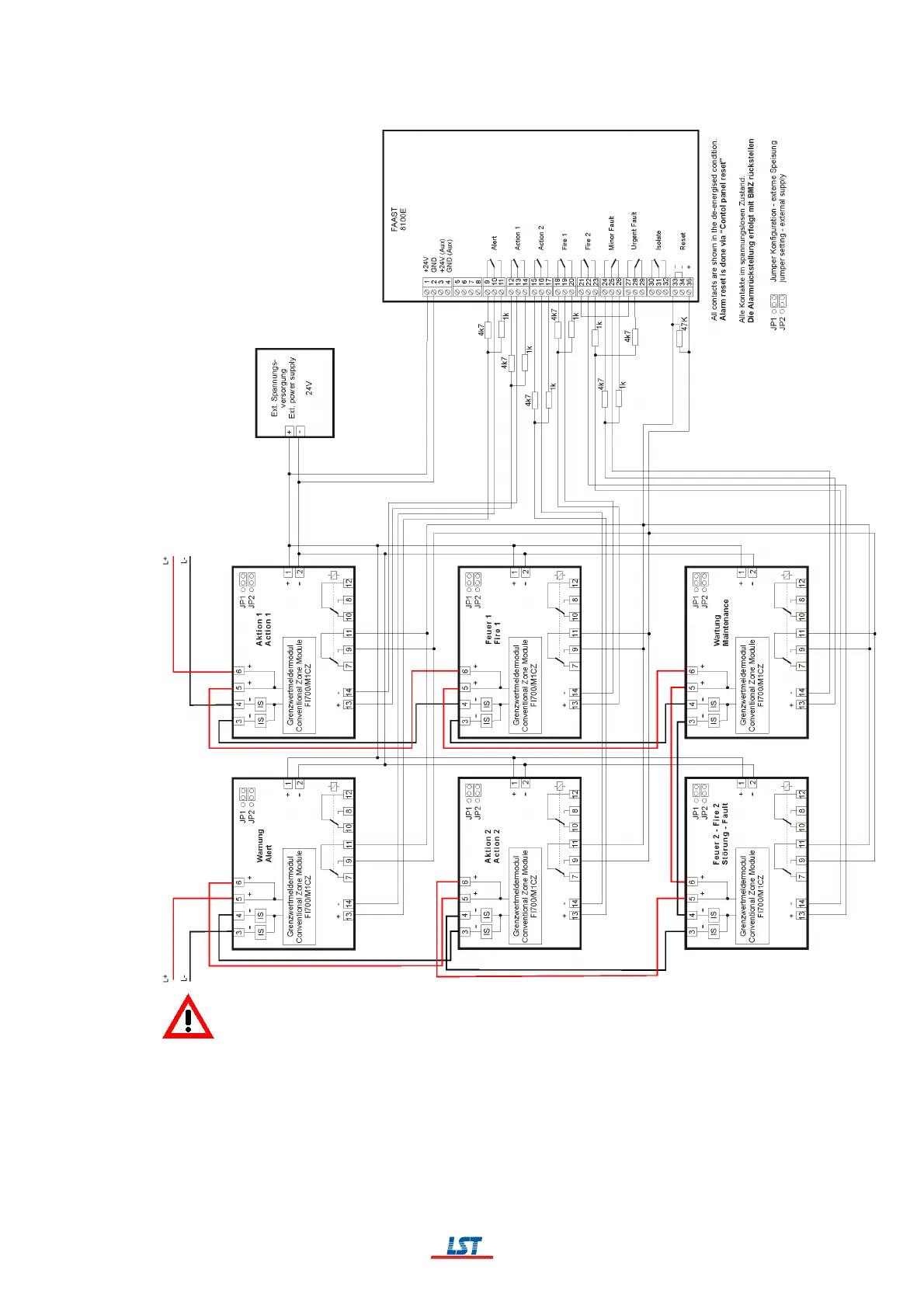
3.8.29 Smoke Aspiration System FAAST 8100E
.$&4;&)(3;&377
$()/)7('*$
L
&"/)779/%9(3()91
)77/(0(
151

Table of Contents

Related product manuals