EasyManua.ls Logo

LST BC06 Series - Linear Heat Detector Unit ADW511 A

Default Icon
200 pages
Print Icon
To Next Page IconTo Next Page
To Next Page IconTo Next Page
To Previous Page IconTo Previous Page
To Previous Page IconTo Previous Page
Loading...
0) &)J& &
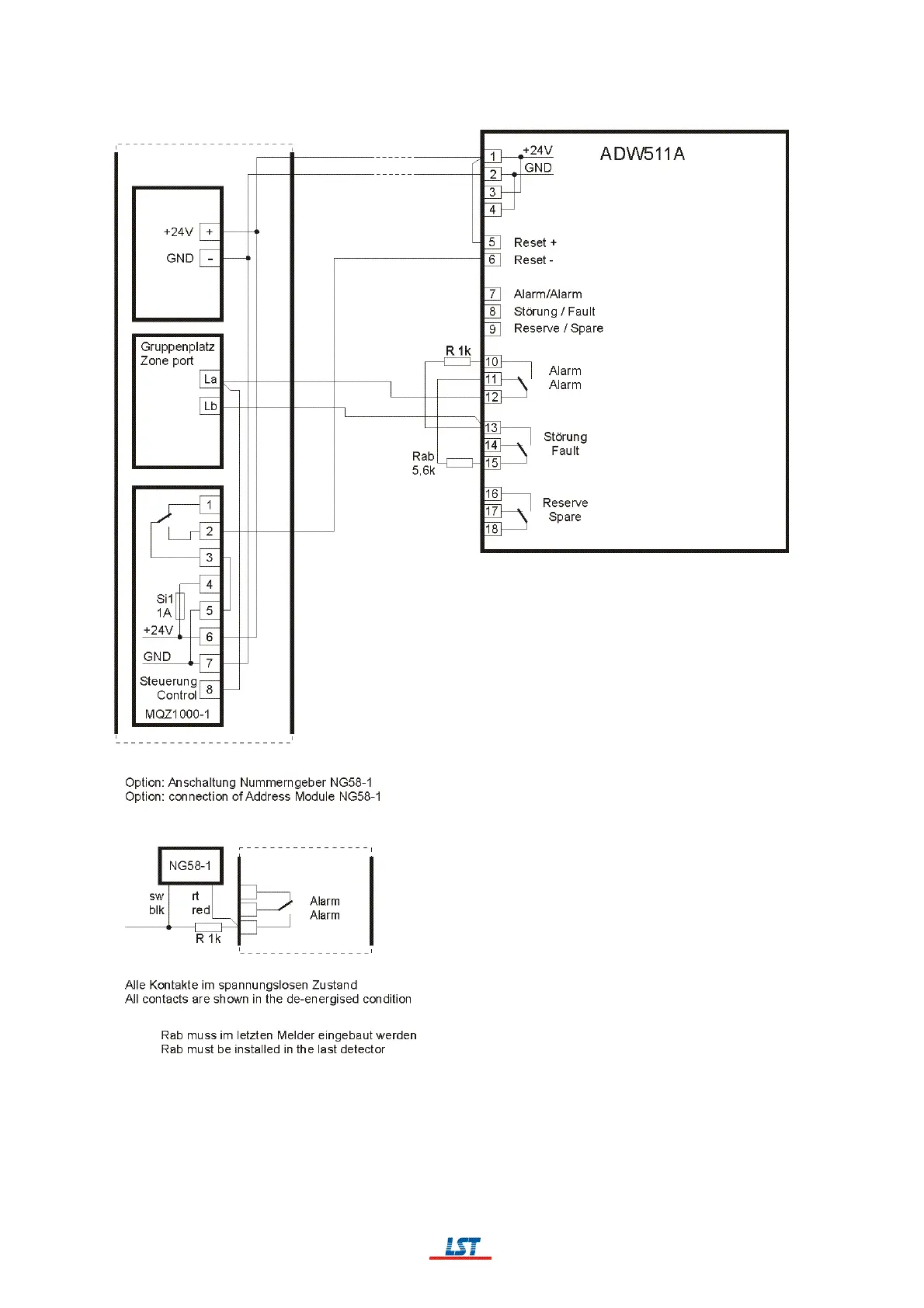
2.10.4 Linear Heat Detector Unit ADW511A
&"/)779/%9(3()91
)77/0)
52

Table of Contents

Related product manuals