EasyManua.ls Logo

Magnetic MHTM FlowMotion mWing - Page 38

Default Icon
80 pages
Print Icon
To Next Page IconTo Next Page
To Next Page IconTo Next Page
To Previous Page IconTo Previous Page
To Previous Page IconTo Previous Page
Loading...
38
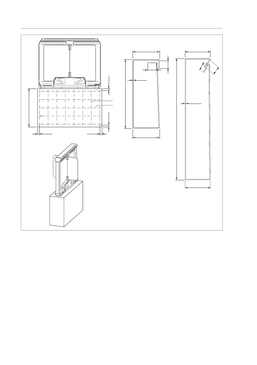
mWing
Installation and assembly
A
B
AB
Mag01012
4040
4040
8
280
720
80
90
280
264
1270
264
90
90
800
8
Fig. 12: Reinforcement plan (dimensions in mm)

Table of Contents