EasyManua.ls Logo

Mark-10 ESM301 - Specifications; Dimensions

Mark-10 ESM301
30 pages
Print Icon
To Next Page IconTo Next Page
To Next Page IconTo Next Page
To Previous Page IconTo Previous Page
To Previous Page IconTo Previous Page
Loading...
Model ESM301 / ESM301L Test Stand User’s Guide
29
10 SPECIFICATIONS
Load capacity:
< 24 in [610 mm]/min:
> 24 in [610 mm]/min:
300 lbF [1.5 kN]
200 lbF [1 kN]
Standard speed range: 0.5 – 13 in/min [13 – 330 mm/min]
Optional speed range: 0.02 – 45 in/min [0.5 – 1,100 mm/min]
Maximum travel:
ESM301:
ESM301L:
11.5 in [292 mm]
18.0 in [457 mm]
Speed setting accuracy: ±0.2%
Speed variation with load: ±0% [Stepper motor driven]
Travel accuracy: ±0.002 in [0.05 mm]
Travel resolution: 0.001 in / 0.02 mm
Limit switch repeatability: 0.001 in [0.03 mm]
Power: Universal input 80-240 VAC, 50/60 Hz
Fuse type: 1.2 A, 250V, 3AG, SLO BLO
Weight (without options):
ESM301: 34 lb [15.4 kg]
ESM301L: 39.5 lb [23.7 kg]
Environmental Conditions:
40 - 100°F [5 - 40°C], max. 96% humidity, non-condensating
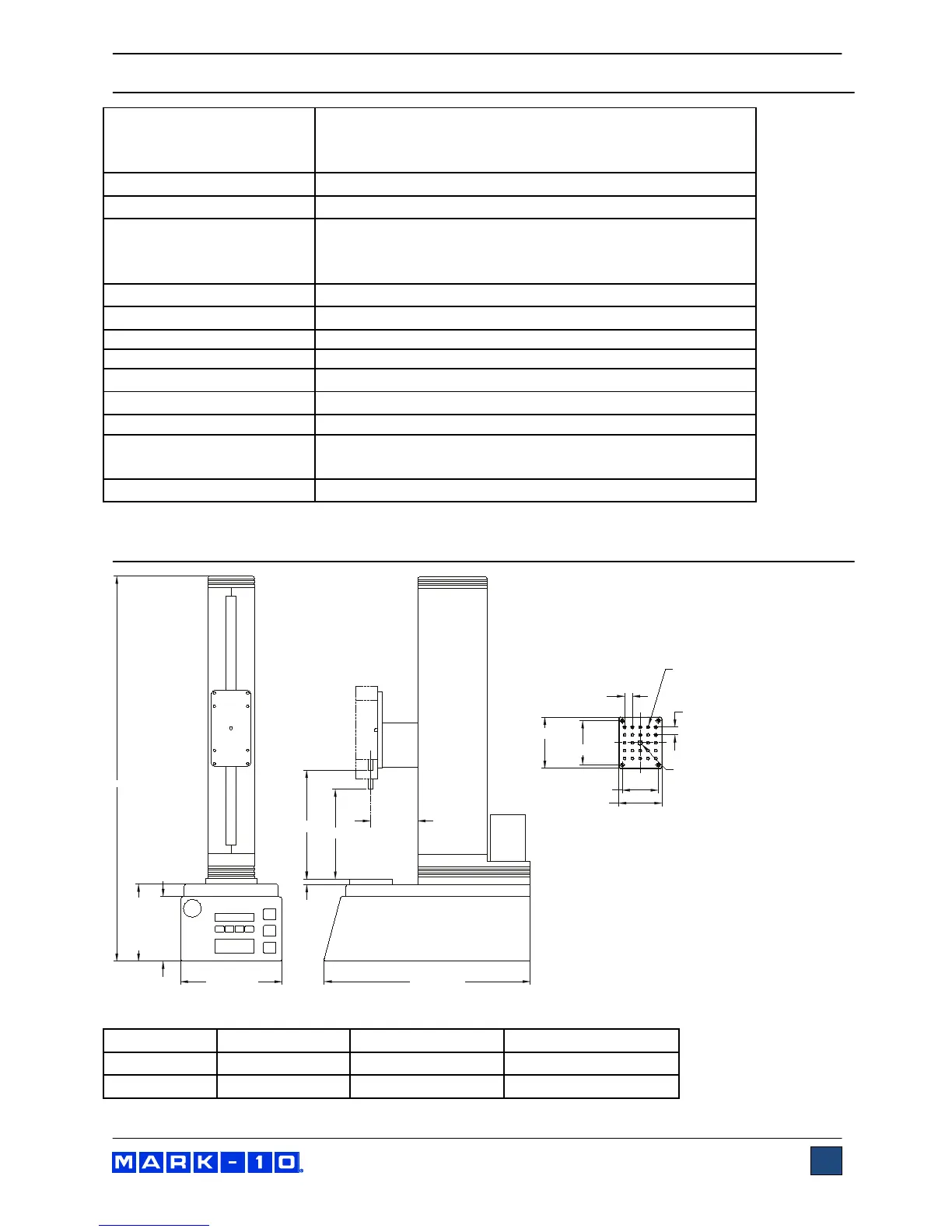
11 DIMENSIONS
2.800 [71.1]
2.300 [58.4]
0.500 [12.7]
TYP
0.500 [12.7]
TYP
MOUNTING PLATE
TOP VIEW
2.76 [70.1]
3.26 [82.8]
6.50 [165.0]
4.20 [106.7]
4.90 [124.5]
3.00 [76.2]
#10-32 UNF-2B
X 0.350 DEEP
X24
B
C
13.20 [335.3]
0.35 [8.9]
A
5/16-18 UNC-2B
X 0.350 DEEP
Model A
B (Series 3/2) C (Series 7/5/4)
ESM301 24.5 [622]
3.5 - 15.0 [89 - 381] 2.3 - 13.8 [58 - 351]
ESM301L 31.5 [800] 3.5 - 21.5 [89 - 546] 2.3 - 20.3 [58 - 516]

Related product manuals