EasyManua.ls Logo

Masterbuilt 20078715 - Page 23

Masterbuilt 20078715
24 pages
Print Icon
To Next Page IconTo Next Page
To Next Page IconTo Next Page
To Previous Page IconTo Previous Page
To Previous Page IconTo Previous Page
Loading...
9
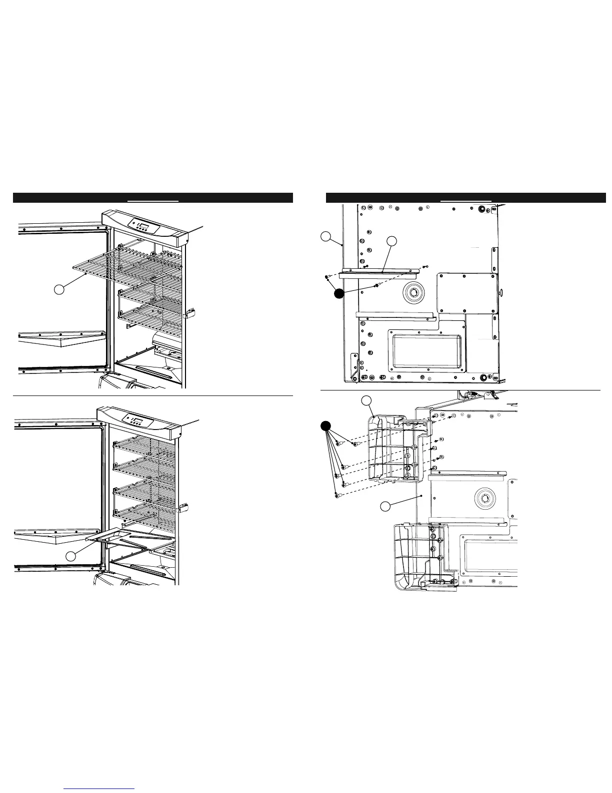
ASSEMBLAGE
3
ÉTAPE 8
Alignez les ouvertures en
forme de trous de serrure
sur le dé ecteur à gouttes
(4) avec les goujons qui se
trouvent à l’intérieur du bâti
du fumoir, de la façon illus-
trée. Enfoncez le dé ecteur à
gouttes pour le xer en place.
4
ÉTAPE 7
Mettez les grilles de fumage
(3) dans le fumoir, de la façon
illustrée.
18
19
1
1
A
B
6
ASSEMBLAGE
ÉTAPE 1
Enlevez tous les
composants de l’intérieur
du fumoir avant de
commencer l’assemblage.
Positionnez
soigneusement le fumoir
sur le côté, de la façon
illustrée. Vous pouvez
également mettre le
fumoir à l’envers pour
l’assemblage. Assurez-
vous toutefois que
l’emballage en mousse
reste sur le dessus pour
éviter de causer des
dommages au panneau de
commande.
Fixez le support du bac à
graisse (19) au fond du bâti
du fumoir (1) au moyen des
vis (B).
Recommencez l’étape pour
l’autre support du bac à
graisse.
ÉTAPE 2
Fixez le pied avant (18) au
fond du bâti du fumoir (1)
au moyen des vis (A).
Recommencez ces étapes
sur le côté opposé, pour
l’autre pied avant.
(R)
(L)

Related product manuals