EasyManua.ls Logo

MAXA MI26A - Schema Elettrico; Wiring Diagram

MAXA MI26A
Print Icon
To Next Page IconTo Next Page
To Next Page IconTo Next Page
To Previous Page IconTo Previous Page
To Previous Page IconTo Previous Page
Loading...
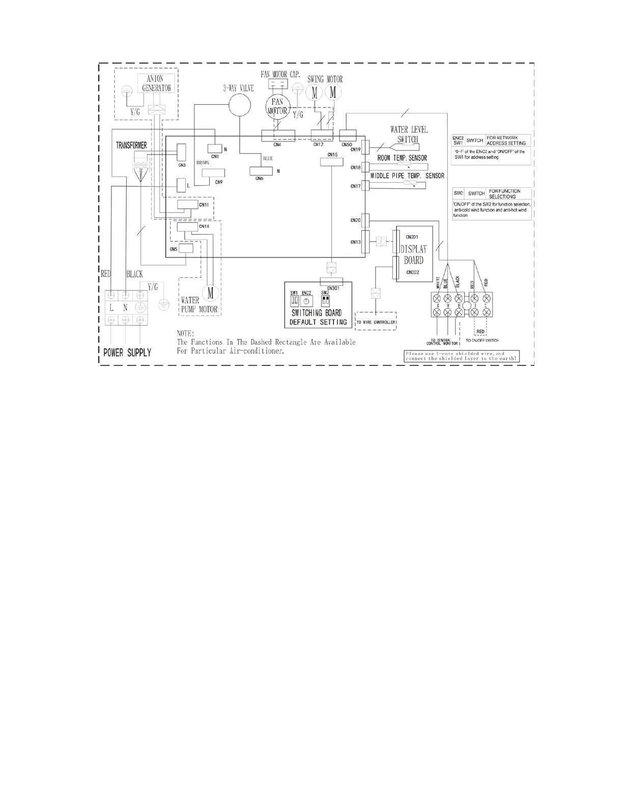
2. Schema elettrico / Wiring diagram
M
od.: MI26A, MI35A, MI42A
KEY / LEGENDA
- ROOM TEMP. SENSOR
- MIDDLE PIPE TEMP. SENSOR
- POWER SUPPLY
- SWING MOTOR
- FAN MOTOR
- RT: TEMPERATURE SENSOR
- WATER LIVEL SWITCH
- FAN MOTOR CAP.
- 3-WAY VALVE
- TRANSFORMER
- DISPLAY BOARD
- TO WIRE CONTROLLER
- TO ON/OFF SWITCH
- TO CENTRAL CONTROL MONITOR
- SWITCHING BOARD
- DEFAULT SETTING
- WATER PUMP MOTOR
- ANION GENERATOR
- RED
- BLACK
- BLUE
- Y/G: YELLOW GREEN
- WHITE
- CN: CONNECTORS ON BOARD
- L: LIVE
- N: NEUTRAL
- FOR NETWORK ADDRESS SETTING
‘0-F’ of the ENC2 and ‘ON/OFF’ of the SW1 for address setting
- FOR FUNCTION SELECTION
ON/OFF’ of the SW2 for function selection: anti-cold wind function and
anti-hot wind function
- Please use 3-core shielded wire, and connect the shielded layer to the
earth
-
NOTE: The functions in the dashed rectangle are available for
particular Air-conditioner
- SENSORE TEMP. INTERNA
- SENSORE TEMP. EVAPORATORE
- ALIMENTAZIONE
- MOTORE ALETTE
- MOTORE VENTILATORE
- SENSORE TEMP. INTERNA
- INTERRUTTORE LIVELLO ACQUA
- CONDENSATORE MOTORE VENTILATORE
- VALVOLA A 3 VIE
- TRASFORMATORE
- DISPLAY
- AL FILOCOMANDO
- ALL’INTERRUTTORE ON/OFF
- AL MONITOR DI CONTROLLO CENTRALE
- SCHEDA MICROINTERRUTTORI
- IMPOSTAZIONE DI DEFAULT
- MOTORE POMPA ACQUA
- GENERATORE DI ANIONI
- ROSSO
- NERO
- BLU
- GIALLO VERDE
- BIANCO
- CONNETTORI SU SCHEDA
- FASE
- NEUTRO
- PER IMPOSTAZIONE INDIRIZZAMENTO RETE CONDIZIONATORI.
‘0-F’ del mictrointerruttore ENC2 e ‘ON/OFF’ di SW1 per impostazione rete
- PER SELEZIONE FUNZIONE
‘ON/OFF’ di SW2 per selezione la funzione anti-aria fredda e funzione anti-aria calda.
- S
i prega di utilizzare un cavo schermato di 3-fili schermato e collegare la schermatura a
terra.
- NOTA: Le funzioni indicate nelle aree tratteggiate non sono disponibili su alcuni
condizionatori.
41

Table of Contents

Related product manuals