EasyManua.ls Logo

Maytag Washer - Schémas de Câblage

Maytag Washer
56 pages
Print Icon
To Next Page IconTo Next Page
To Next Page IconTo Next Page
To Previous Page IconTo Previous Page
To Previous Page IconTo Previous Page
Loading...
PAGE 55
POUR LE TECHNICIEN SEULEMENT
NE PAS ENLEVER NI DÉTRUIRE
IMPORTANT : Une décharge d’électricité statique peut faire subir des dommages aux circuits électroniques. Pour les détails, voir la page 29.
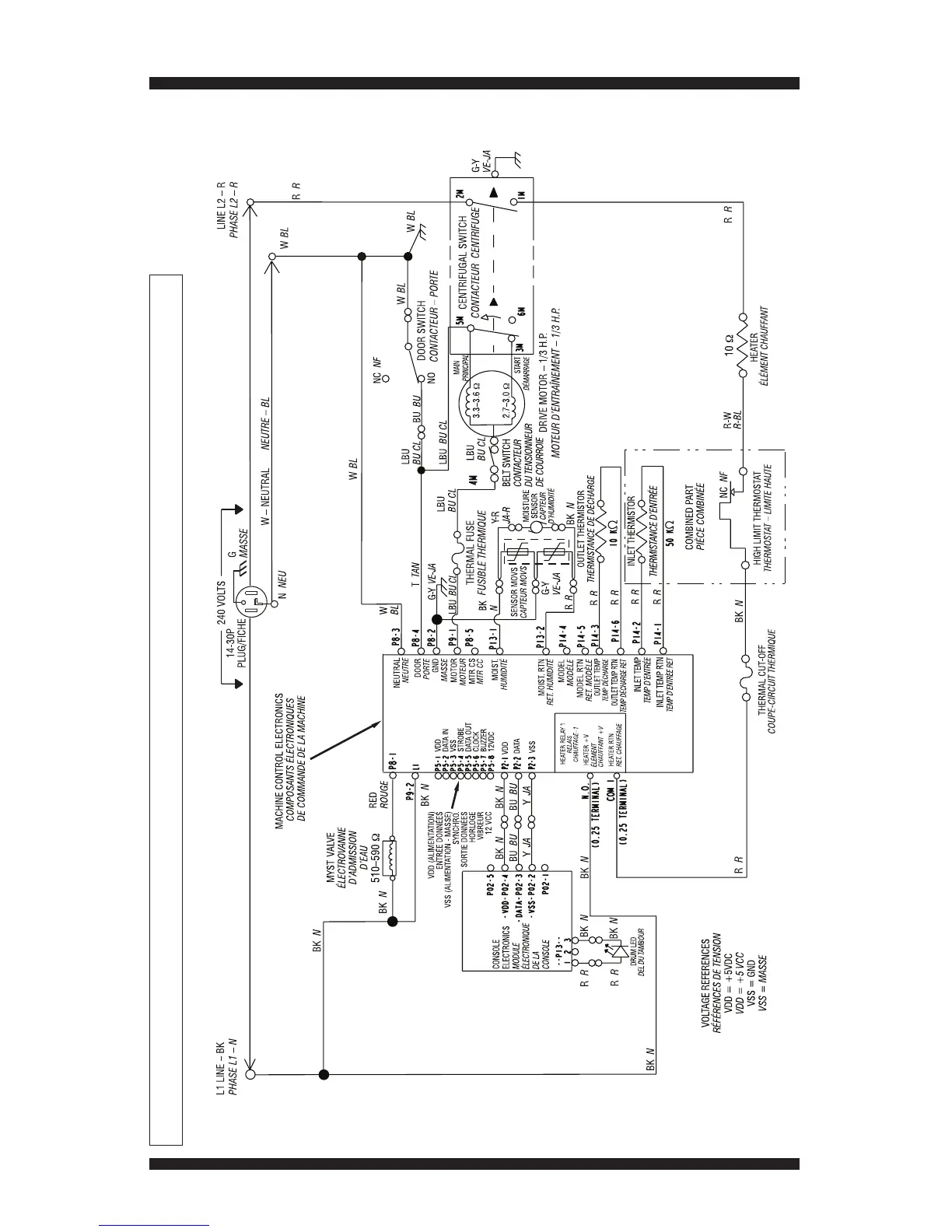
SCHÉMA DE CÂBLAGE DE SÉCHEUSE MAYTAG – ÉLECTRIQUE
Figure 30 - Schéma de câblage électrique (Canada).

Other manuals for Maytag Washer

Related product manuals