EasyManua.ls Logo

Mendota D30 - Page 36

Mendota D30
82 pages
Print Icon
To Next Page IconTo Next Page
To Next Page IconTo Next Page
To Previous Page IconTo Previous Page
To Previous Page IconTo Previous Page
Loading...
85-03-01071 D30 DEEP TIMBER Page 36
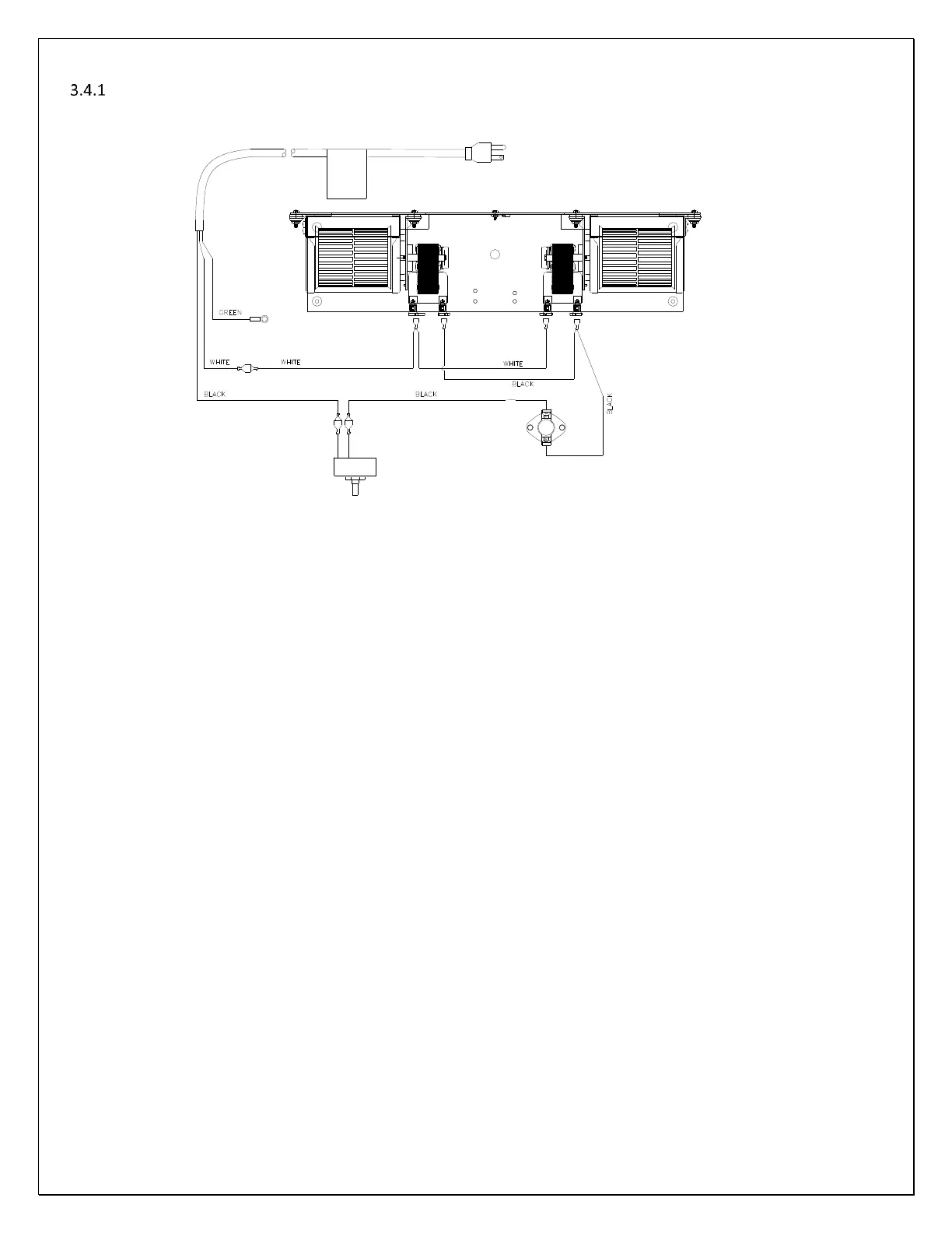
Blower System Wiring Diagram
Figure 3-38 BLOWER SYSTEM WIRING DIAGRAM

Related product manuals