EasyManua.ls Logo

Midea MHC-V9W/D2N1 - 8.2 Application 2: Heating & DHW

Midea MHC-V9W/D2N1
96 pages
Print Icon
To Next Page IconTo Next Page
To Next Page IconTo Next Page
To Previous Page IconTo Previous Page
To Previous Page IconTo Previous Page
Loading...
8
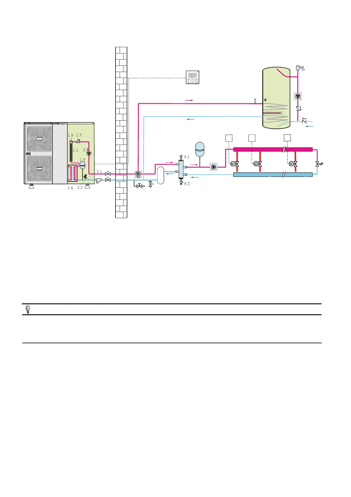
8.2 Application 2
Space heating only application without room thermostat connected to the unit. The temperature in each room is controlled by a valve on each water
circuit. Domestic hot water is provided through the domestic hot water tank that is connected to the unit.
■ Circulation pump operation
With no room thermostat connected to the unit (1) the circulation pump (1.8) and (11) will operate as long as the unit is on for space heating.
The circulation pump (1.8) will operate as long as the unit is on for heating domestic hot water (DHW).
■ Space heating
1) The unit (1) will operate to achieve the target water flow temperature set on the user interface.
■ Domestic water heating
1) When the domestic water heating mode is enabled (either manually by the user, or automatically through scheduling) the target domestic
hot water temperature will be achieved by a combination of the heat exchanger coil and the electrical booster heater (when the booster heater
in the tank is set to YES).
2) When the domestic hot water temperature is below the user configured set point, the 3-way valve will be activated to heat the domestic
water by means of the heat pump. If there is a huge demand for hot water or a high hot water temperature setting, the booster heater (13.1)
can provide auxiliary heating.
1 outdoor unit
1.1 manometer
1.2 pressure relief valve
1.3 expansion vessel
1.4 plate heat exchanger
1.5 backup heater
1.6 air purge valve
1.7 flow switch
1.8 P_i: circulation pump inside the unit
2 y-shape filter
3 stop valve (field supply)
4 user interface
6 drain valve (field supply)
7 fill valve (field supply)
8 buffer tank (field supply)
9 balance tank (field supply)
9.1 air purge valve
9.2 drain valve
10 expansion vessel (field supply)
11 P_o: outside circulation pump (field supply)
12 collector (field supply)
13 domestic hot water tank (field supply)
13.1 booster heater
13.2 heat exchanger coil
13.3 air purge valve
14 T5: temperature sensor
15 hot water tap (field supply)
16 P_d: DHW pump (field supply)
17 non-return valve (field supply)
18 bypass valve (field supply)
19 SV1: 3-way valve (field supply)
FHL 1...n floor heating loop
M1...n motorized valve (field supply)
T1…n room thermostat (field supply)
NOTE
If the volume of balance tank(9) is larger than 30L, the buffer tank(8) is unnecessary, otherwise the buffer tank(8) should be installed and
the total volume of balance tank and buffer tank should larger than 30L. The drain valve (6) should be installed at the lowest positon of
the system. For 5/7/9kW unit, the backup heater (1.5) is not integrated in the outdoor unit. An independent backup heater can be selected
and installed in the door.
2) When the circulation in each space heating loop (FCU1...n) is controlled by remote controlled valves (M1...n), it is important to provide a
bypass valve (18) to ensure that the flow switch safety device is not activated.
The bypass valve should be selected so that at all times the minimum water flow as mentioned in 9.3 Water pipework is guaranteed.
FHL1 FHL2 FHLn
16
14
13.1
13
17
17
15
13.2
T1
Tn
T2
11
10
12
1
4
32
6
7
8
9
18
19
13.3

Table of Contents

Related product manuals