EasyManua.ls Logo

Midea UR-BD240WE-ST - Installation of Handle(Option

Midea UR-BD240WE-ST
54 pages
Print Icon
To Next Page IconTo Next Page
To Next Page IconTo Next Page
To Previous Page IconTo Previous Page
To Previous Page IconTo Previous Page
Loading...
Service Manual_2020-V1.0
12
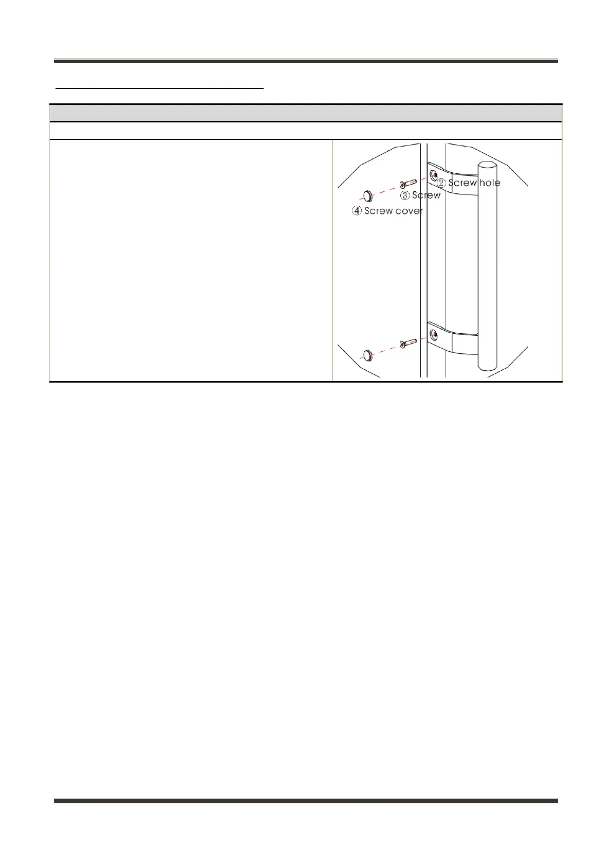
3.6 Installation of handleOption
Installation of handle
Installation of handle
1) Precautions shall be taken to prevent fall of the handle
from causing any personal injury.
2) Assembly steps
aUse allen wrench to fix screws into the screw hole
tightly.
bThe reverse operation is for disassembly.

Table of Contents

Related product manuals