EasyManua.ls Logo

Miele DG7140 - Side View

Miele DG7140
112 pages
Print Icon
To Next Page IconTo Next Page
To Next Page IconTo Next Page
To Previous Page IconTo Previous Page
To Previous Page IconTo Previous Page
Loading...
Installation
-
I
N
-
S
T
A
L
L
-
A
-
T
I
O
N
-
104
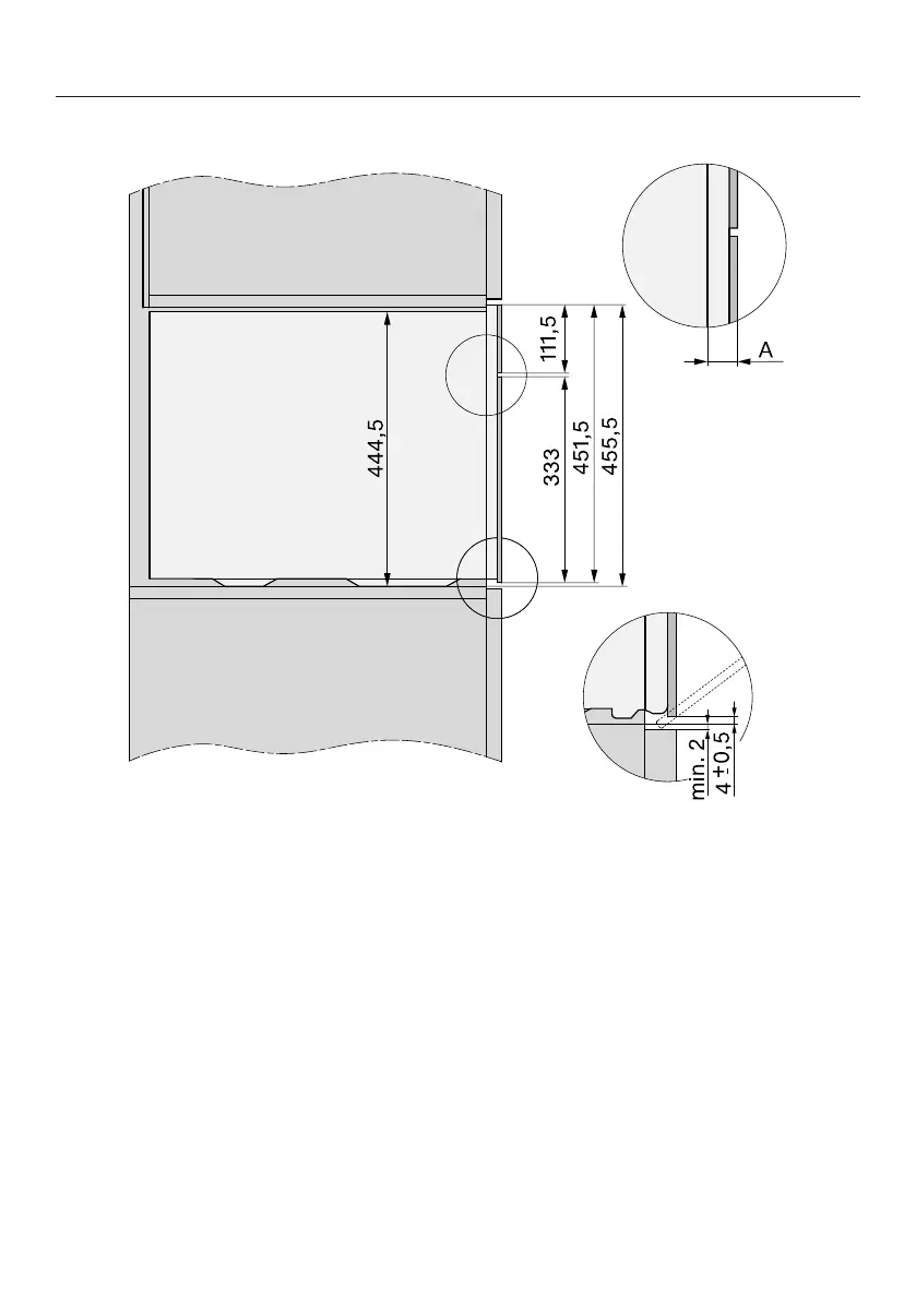
Side view
A Glass front: 22mm
Metal front: 23.3mm

Table of Contents

Related product manuals