EasyManua.ls Logo

Mitsubishi Electric Q172DCPU - Page 85

Mitsubishi Electric Q172DCPU
190 pages
To Next Page IconTo Next Page
To Next Page IconTo Next Page
To Previous Page IconTo Previous Page
To Previous Page IconTo Previous Page
Loading...
2 - 64
2 SYSTEM CONFIGURATION
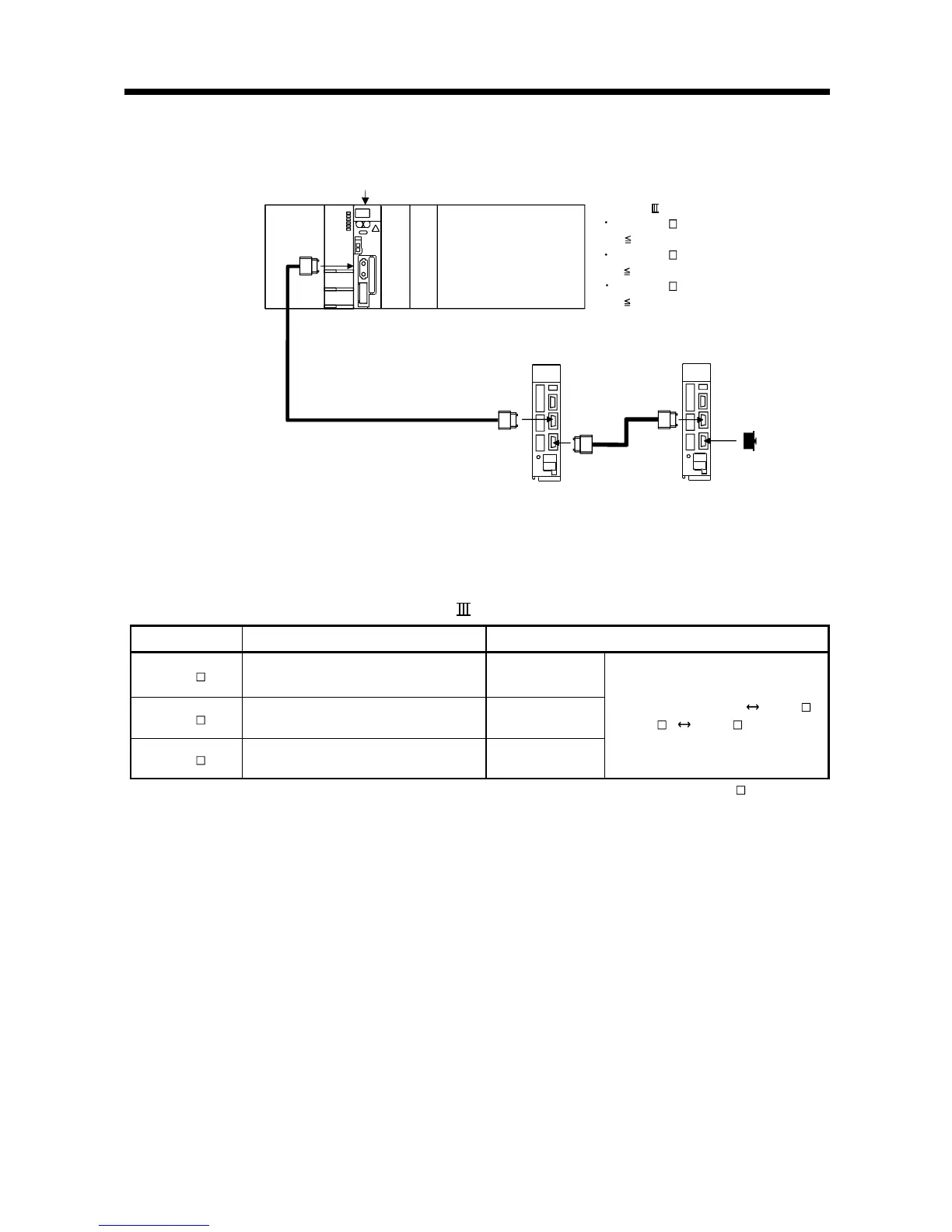
(2) Connection between the Q172DCPU and servo amplifiers
Q172DCPU Motion CPU module
1)
Servo amplifier Servo amplifier
1)
CN1A
CN1B
CN1A
CN1B
Cap
SSCNET cable length
MR-J3BUS M use
1) 3m(9.84ft.)
MR-J3BUS M-A use
1) 20m(65.62ft.)
MR-J3BUS M-B use
1) 50m(164.04ft.)
(Note): It cannot communicate with that the connection of
CN1A and CN1B is mistaken.
CN1
List of SSCNET cable model name
Model name
(Note)
Cable length
Description
MR-J3BUS M
0.15m(0.49ft.), 0.3m(0.98ft.), 0.5m(1.64ft.),
1m(3.28ft.), 3m(9.84ft.)
Standard code for
inside panel
MR-J3BUS M-A 5m(16.4ft.), 10m(32.81ft.), 20m(65.62ft.)
Standard cable for
outside panel
MR-J3BUS M-B 30m(98.43ft.), 40m(131.23ft.), 50m(164.04ft.) Long distance cable
• Q173DCPU/Q172DCPU
MR-J3- B
• MR-J3-
B
MR-J3- B
(Note) : =cable length

Table of Contents

Other manuals for Mitsubishi Electric Q172DCPU

Related product manuals