EasyManua.ls Logo

Mitsubishi Electric Q172DCPU - External Circuit Design

Mitsubishi Electric Q172DCPU
190 pages
To Next Page IconTo Next Page
To Next Page IconTo Next Page
To Previous Page IconTo Previous Page
To Previous Page IconTo Previous Page
Loading...
3 - 4
3 DESIGN
Servo normal output
(Servo normal:ON
Alarm:OFF)
QnUD(H)CPU Q173DCPU/
Q172DCPU
Ra1
MC
SK
3-phase
200/220VAC
CP1
NFB1
RST
200VAC
200VAC
FG
LG
CP2
CP3
+24V
24G
24VDC
Power
supply
Ra1
MC
Ready
ON
Operation
OFF
Emergency Stop
EMG
FLS1
EMG
Number of inputs:
8 axes/module
COM
COM
FLS1
DOG8/
CHANGE8
DOG8/
CHANGE8
Power Supply
Q61P-A2
PLC CPU Motion CPU
Input module
Output module Servo external
signals interface
module
QX40
QY10
Q172DX
EMI
EMI.COM
Forced stop
(Note-1)
SSCNET
(Note-2)
PYm
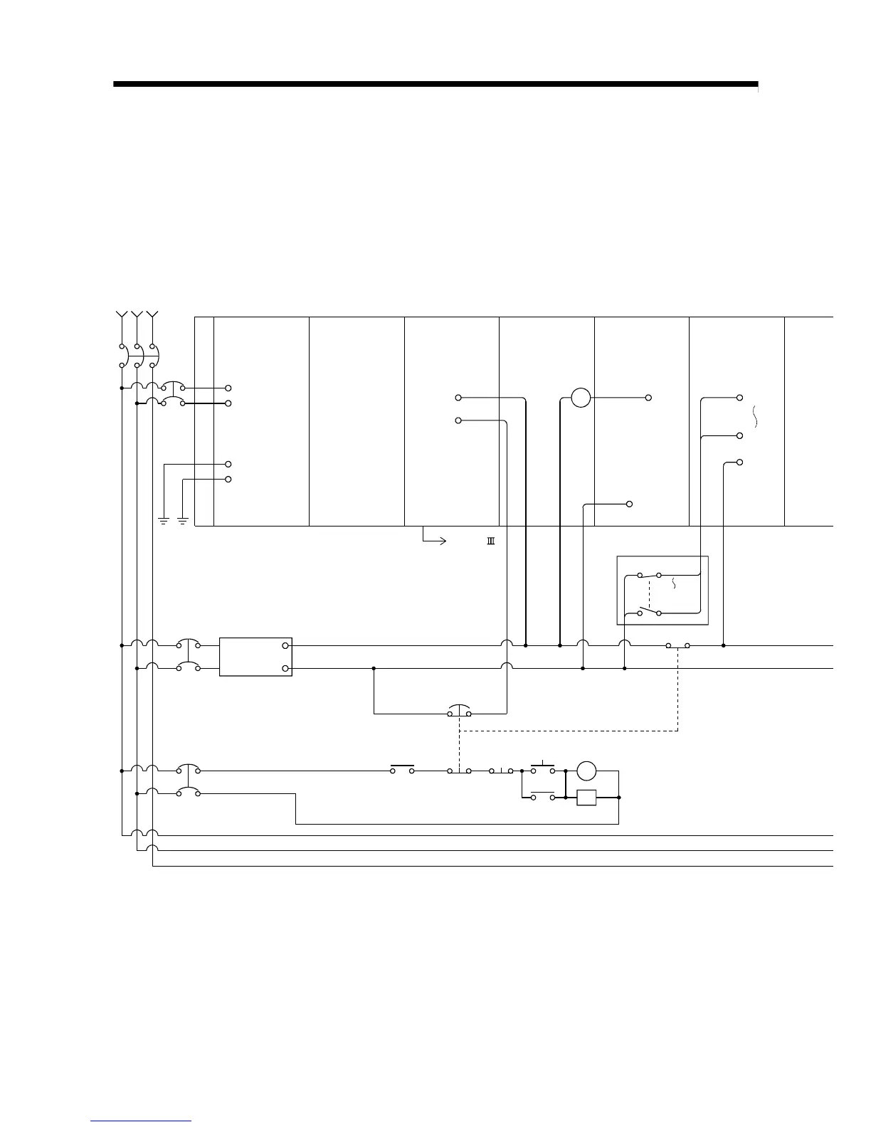
3.2 External Circuit Design
As to the ways to design the external circuits of the Motion system, this section
explains the method and instructions for designing the power supply circuits and
safety circuits, etc.
(1) Sample system circuit design for motion control 1

Table of Contents

Other manuals for Mitsubishi Electric Q172DCPU

Related product manuals