EasyManua.ls Logo

Mitsubishi S6R Series

Mitsubishi S6R Series
318 pages
To Next Page IconTo Next Page
To Next Page IconTo Next Page
To Previous Page IconTo Previous Page
To Previous Page IconTo Previous Page
Loading...
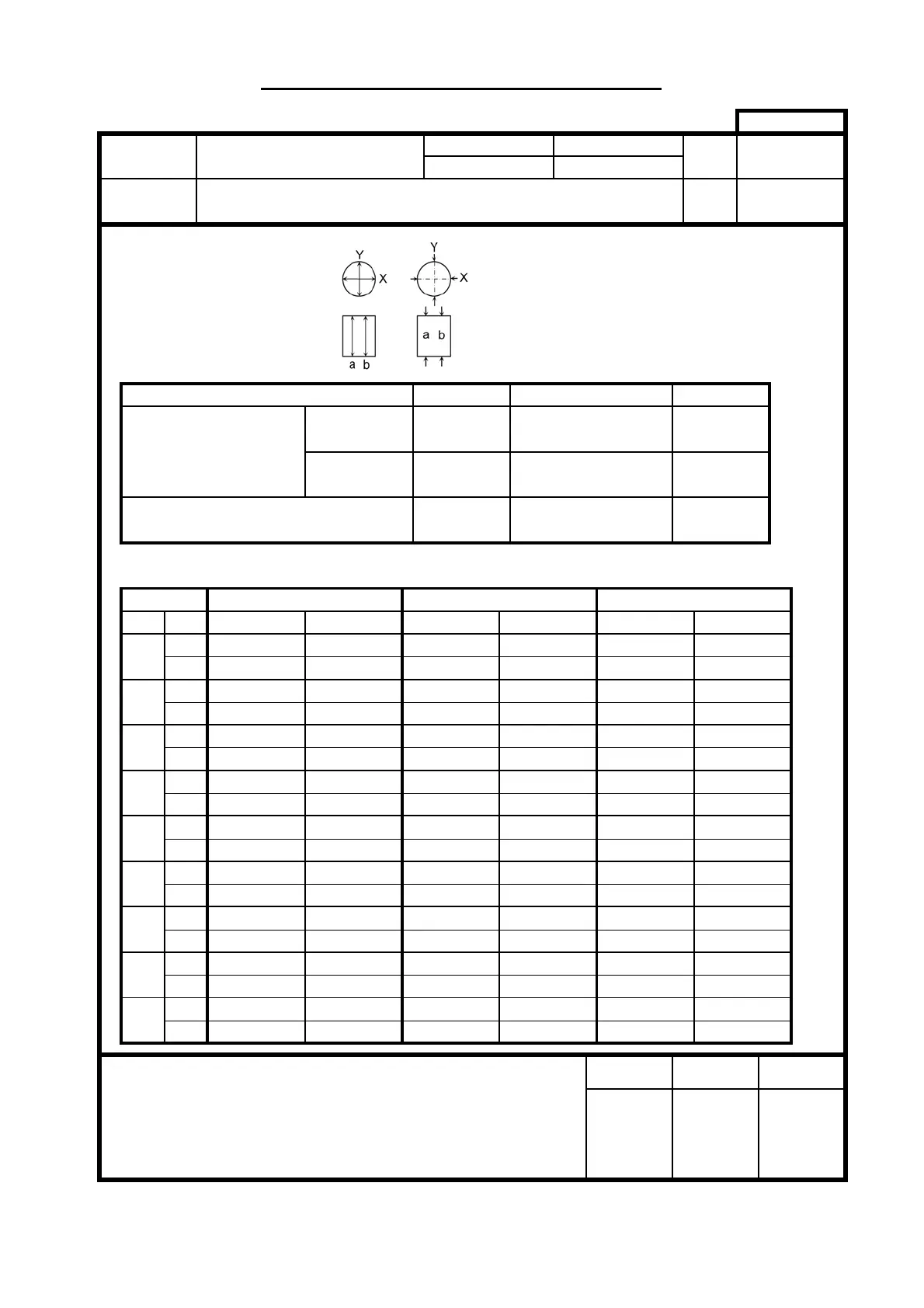
INSPECTION RECORD SHEET
No. 11
84.100
[3.3110]
Camshaft bushing
inside diameter
Camshaft journal bore outside diameter φ84[3.31]
83.920 to 83.940
[3.3039 to 3.3047]
83.870
[3.3020]
Measured value
S6R,S6R2 φ84[3.31]
84.020 to 84.095
[3.3079 to 3.3108]
S12R,S16R φ84[3.31]
84.000 to 84.035
[3.3071 to 3.3085]
Limit
Approved by Checked by Measured by
Remark
b
9
a
a
a
b
Clearance
Minimum Maximum
Item
Location
84.100
[3.3110]
Customer
Item
Engine Model
Serial No.
Measuring location
Standard
Nominal StandardItem to be measured
mm[in.]
Camshaft bushing inside diameter and camshaft journal
outside diameter (right side) - measure
Unit
SR
Date
Camshaft bushing inside diameter Camshaft journal outside diameter
YXYX
2
3
4
No.
1
5
6
7
8
a
b
a
b
b
a
b
a
b
a
b
a
b

Table of Contents

Related product manuals