EasyManua.ls Logo

Motorola CDM Series - Page 129

Motorola CDM Series
686 pages
To Next Page IconTo Next Page
To Next Page IconTo Next Page
To Previous Page IconTo Previous Page
To Previous Page IconTo Previous Page
Loading...
Controller T12 Schematics and Parts Lists (8471224L04) Section 3: 3-49
6881091C63-F
470pF
C0560
NU
R0542
NU
470pF
C0576
C0442
470pF
NU
C0559
470pF
NU
J0451-14
J0551-3
NU
C0558
NU
470pF
J0401-2
NU
390nH
NU
L0482
NU
C0554
0.1uF
NU
INTERNAL OPTION BOARD
39
38
9
4
VS_CS
NC
GROUND
GROUND
FAST_SQ
DISCAUDIO
4
DB7
FLAT_TX_AUDIO
DIG_IN_OUT_4
DATA
EXP1_CS
11
DB2
DIG_IN1
3
EXP1_CS
5
9V3
5VD
EXT_BD_PTT
EXT_MIC_AUDIO
EXP_BD_PTT
DATA
36
21
NC
BOOT_CNTRL
Rx_Aud_Snd
ON
VS_INT
VS_RAC
16
DB3
23
6
1
RST*
7
8
14
INT_EXT_Vdd
GROUND
DB111
7
17
12
18
RSSI
BUS+
J0552
SPI_MISO
RESET
FLT_A+
26
FLAT_TX_RTN
6
CSX
29
12-PIN CONNECTOR
13
CLK
MISO
PCB
16
20
SCI_TX
INT_MIC
DIG_IN_3
Tx_Aud_Snd
VS_AUDSEL
17
GROUND
SrD_Rtn
5
DIG_IN_5 WITH WAKEUP (EMERGENCY)
13
37
DIG_IN_OUT_7
2
GM300
SPEAKER-
CLK
DISCAUDIO
CH_ACT
NC
NC
BUS+
6
NC
DB6
ACCESSORY
7
4
19
9
R/W*
Opt_Bd_En
NC
13
10
33
NC
7
9
A0
EXT_BD_REQ
EXT_BD_CS
GP4_IN_OUT
SPI_CLK
SPI_MOSI
DATA
VS_GAINSEL
Gnd
8
EXP2_CS
BUS+
EXT_BD_PTT
GND
5VD
EXP_BD_PTT
GND
RDY
OPT_PTT
GND
DB4
CLK
SPEAKER+
14
3
2
8
NC
10
11
Key_Row
Key_Intrp
DIG_IN_OUT_4
9V3
VS_MIC
5VD
DIG_OUT2 (EXTERNAL_ALARM)
NC
HANSET_AUDIO
30
13
J0501
J0451
DIG_IN_6 WITH WAKEUP (IGNITION)
FLAT/FILTERED_RX_AUDIO
19
9
VS_CS
SWB+
20
11
Flat_Tx_Rtn
NC
1
2
SrD_Snd
EXT_BD_PTT
27
OPT_CS
22
18
40-PIN CONNECTOR
DB5
12
SCK_Snd
35
NC
NC
7
8
LED_EN
ON_OFF_CONTROL
20-PIN CONNECTOR
18
17
20
NC
15
14
16
DIG_IN_6 WITH WAKEUP
Tx_Aud_Rtn
34
18
Vddd
25
32
31
SPEAKER+
1
WARIS
TO/FROM R
F
7
24
CS*
3
1
NC
NC
3
5
15
CLK
9
J0551
28
FLT_A+
6
SPEAKER-
DIG_IN_OUT_8
16
3
OFF_BATT_DATA_OUT
3
4
EXP_BD_REQ
EXT_BD_PTT
EXT_BD_PTT
19
Det_Aud_Snd
12
Rx_Aud_Rtn
NC
1
MISO
2
5
6
10
11
12
EXP2_CS
8
DB0
DATA
11
CONTROL HEAD
NC
10
OPT_CS
EXPANSION BOARD
10
PTT
Rdy/Req
2
GROUND
10 12 14
REAR VIEW
BUS+
4
12
18-PIN CONNECTOR
NC
GND
1
2
11
12
13
17
15
6
40
18-PIN CONNECTOR
RS232 INTERFACE BOARD
Key_Col
TO/FROM RF
8
5
6
7
8
9
10
5
15
16
17
18
4
1
2
3
9
14
13
14
15
16
17
18
J0401
5
4
15
GND
BUS+
0
R0482
0
R0481
J0501-8
470pF
C0443
100K
R0468
J0552-20
J0552-2
J0552-5
J0552-4
R0539
4.7K
J0551-39
J0551-33
TP0492
J0551-34
82pF
C0428
DATA_CNTLR_2
J0451-7
J0552-1
C0422
J0551-18
7
470pF
100K
R0511
CSX_CNTLR_1
J0501-15
J0552-3
VR0510
33V
8
TEMPSENSE
9
J0451-12
5V_CNTLR_1
470pF
C0506
0.1uF
J0451-1
C0592
470pF
C0478
15K
R0512
C0487
470pF
R0510
10
4.7K
NOISE_BLNKR_CNTLR_1
R0409
5.6V
VR0537
C0473
82pF
8
470pF
J0451-18
C0502
J0401-5
J0551-31
J0451-15
220
R0537
J0551-38
RESET
14V
VR0541
R0407
10
470pF
J0551-5
J0501-19
C0496
VR0504
33V
J0551-9
J0551-27
470pF
C0474
470pF
J0551-20
C0429
.01uF
C0501
470pF
J0451-16
C0426
470pF
C0445
J0501-10
J0451-8
RSSI_CNTLR_1
470pF
C0497
R0531
560
DATA
C0421
82pF
R0525
470pF
100K
MOSBIAS_3_CNTLR_1
C0492
CLK_CNTLR_2
RSSI
C0446
470pF
IN_5V_RF_REG_CNTLR_1
J0501-5
IN_5V_RF_REG
C0472
DISCAUDIO
82pF
470pF
C0484
100K
R0543
100K
R0593
R0442
1K
DISCAUDIO_CNTLR_1
LOCK_CNTLR_1
C0591
0.1uF
TEMPSENSE_CNTLR_1
C0510
470pF
J0501-16
J0451-3
J0401-6
9V3
CLK
INT_SWB
INT_SWB_CNTLR_1
J0551-32
CLK_CNTLR_1
J0551-7
470pF
C0476
470pF
C0491
J0551-13
470pF
C0483
J0451-11
J0401-1
C0505
C0504
470pF
470pF
470pF
C0503
J0551-24
C0593
0.1uF
470pF
C0430
PASUPVLTG_CNTRL_1
470pF
J0451-10
C0509
0
R0412
C0514
470pF
J0501-3
VR0505
20V
J0552-8
J0552-10
J0552-9
J0552-11
J0401-10
J0551-40
CSX
16_8MHZ_CNTLR_1
R0529
C0495
47K
470pF
J0551-41
J0401-4
J0401-7
10
R0592
R0401
220
J0551-12
16_8MHZ
J0451-9
J0551-1
VR0503
J0501-7
20V
J0551-21
RESET_CNTLR_1
1
J0451-6
J0501-18
C0485
470pF
R0408
C0477
2
100
J0401-9
470pF
470pF
C0447
J0551-22
3
J0551-26
J0501-13
TP0530
DATA_CNTLR_1
J0552-17
J0552-16
J0401-8
J0501-6
MOSBIAS_2_CNTLR_1
10
R0467
C0441
J0501-1
4
J0551-15
C0493
J0401-11
470pF
J0451-5
470pF
C0431
VR0501
20V
J0551-14
J0551-4
J0501-12
J0551-25
J0501-2
470pF
C0515
J0451-13
J0552-12
J0552-14
J0552-13
J0552-15
R0538
220
MOSBIAS_2
J0501-20
R0530
J0401-12
J0451-2
0
C0488
J0551-23
PASUPVLTG
470pF
C0513
9V3_CNTLR_1
470pF
8
9
TP0497
470pF
J0552-18
J0551-28
CNTLVLTG
J0552-19
C0471
82pF
5V
J0551-10
J0551-19
1K
R0535
470pF
C0511
470pF
C0512
J0551-42
CLK
J0501-11
J0551-16
J0551-2
J0551-30
J0551-35
390nH
L0481
470pF
NOISE_BLNKR
C0508
C0448
470pF
LOCK
J0552-6
CSX
470pF
C0482
J0552-7
VR0509
33V
C0490
470pF
C0427
470pF
J0551-36
J0501-9
470pF
J0451-17
C0518
10
C0575
470pF
CSX_CNTLR_2
470pF
C0470
27K
R0541
MOSBIAS_3
J0551-37
C0494
470pF
47K
0.47uF
C0541
J0551-8
J0501-14
MODIN
PA_PWR_SET_1_CNTLR_1
0
R0441
J0501-4
9
J0551-6
.01uF
C0516
J0501-17
MODIN_CNTLR_1
C0517
82pF
C0486
470pF
DATA
C0499
470pF
J0551-29
C0542
C0423
470pF
47uF
PA_PWR_SET
R0533
0
J0451-4
24K
R0591
CNTLVLTG_CNTLR_1
J0551-17
470pF
C0449
J0551-11
J0401-3
EXP_BD_REQ
5VD
SPKR-
SPKR+
ON_OFF_CONTROL
SPKR-
GP6_IN_ACC10
FLAT_TX_RTN
GP6_IN_ACC10GP6_IN_ACC10
GP6_IN_ACC10
FLAT_TX_RTN
SPI_DATA
EXT_MIC
GP1_IN_ACC3
GP2_OUT_ACC4
GP5_IN_ACC9
GP7_IN_OUT_ACC12
GP8_IN_OUT_ACC14
SPKR+
GP3_IN_ACC6
GP4_IN_OUT_ACC8
EXP2_CS
EXP1_CS
GP4_IN_OUT_ACC8
OPT_CS
RDY
OPT_PTT
EXP2_CS
CH_ACT
GP1_IN_ACC3
SPI_DATA
SPI_MISO
SPI_CLK
9V3
SPI_MISO
DISCAUDIO
MODIN
CH_ACT
5VD
9V3
5VD
SPI_MISO
RESET
FLT_A+
DISCAUDIO
GP4_IN_OUT_ACC8
EXP1_CS
EXP_BD_REQ
GP1_IN_ACC3
SPI_CLK
OPT_PTTOPT_PTT
OPT_PTT
INT_MIC INT_MIC
INT_MIC
SPKR+SPKR+
DISCAUDIO DISCAUDIO
HANDSET_AUDIOHANDSET_AUDIO
HANDSET_AUDIO
RSSI RSSI
BOOT_CNTRL
5VD
IN_5V_RF_REG
BUS+
GP1_IN_ACC3
GP1_IN_ACC3 GP1_IN_ACC3
INT_SWB+
5VD
G
P4_IN_OUT_ACC8
EXP1_CS
EXP_BD_REQEXP_BD_REQ
EXP_BD_REQ
GP1_IN_ACC3
CH_ACT CH_ACT
CH_ACT
DISCAUDIO
FLT_A+
SCI_TX
RX_FLAT_FILTERED_AUDIO
EMERGENCY_CONTROL
FLT_A+
RSSI
EXT_SWB+
RDYRDY
RDY 5V_RF
NOISE_BLNKR
MOSBIAS_2
PA_PWR_SETEXP1_CS
9V3
FLAT_TX_RTN FLAT_TX_RTN
GP4_IN_OUT_ACC8 GP4_IN_OUT_ACC
8
DISCAUDIO
SPI(0:10)
MOSBIAS_3
VS_MIC VS_MIC
FLAT_TX_RTN
FLT_A+
BUS+ BUS+
RESETRESET
ON_OFF_CONTROL ON_OFF_CONTRO
L
16_8MHZ
5VD5VD
FLT_A+FLT_A+
SPI_DATA
SPI_CLK
SPI_MISO
VS_CS
OPT_CS
RESET
EXT_MICEXT_MIC
SPKR-SPKR-
RESET
PASUPVLTG
BUS+
TEMPSENSE
CNTLVLTG
RSSI
LOCK
OPT_CS
SPI_DATA
TX_AUD_RTN
VS_CS
VS_MIC
SPI_CLK
FLAT_RX_SND
RX_AUD_RTN
URX_SND
TX_AUD_SND
VS_INT
5VD
VS_AUDSEL
VS_GAINSEL
SPI_MISO
VS_RAC
IGNITION_CONTROL
FLT_A+
ZWG0130586-O
F0401
3A
Fuse P/N
6580542Z01
100
R0556
100
R0556
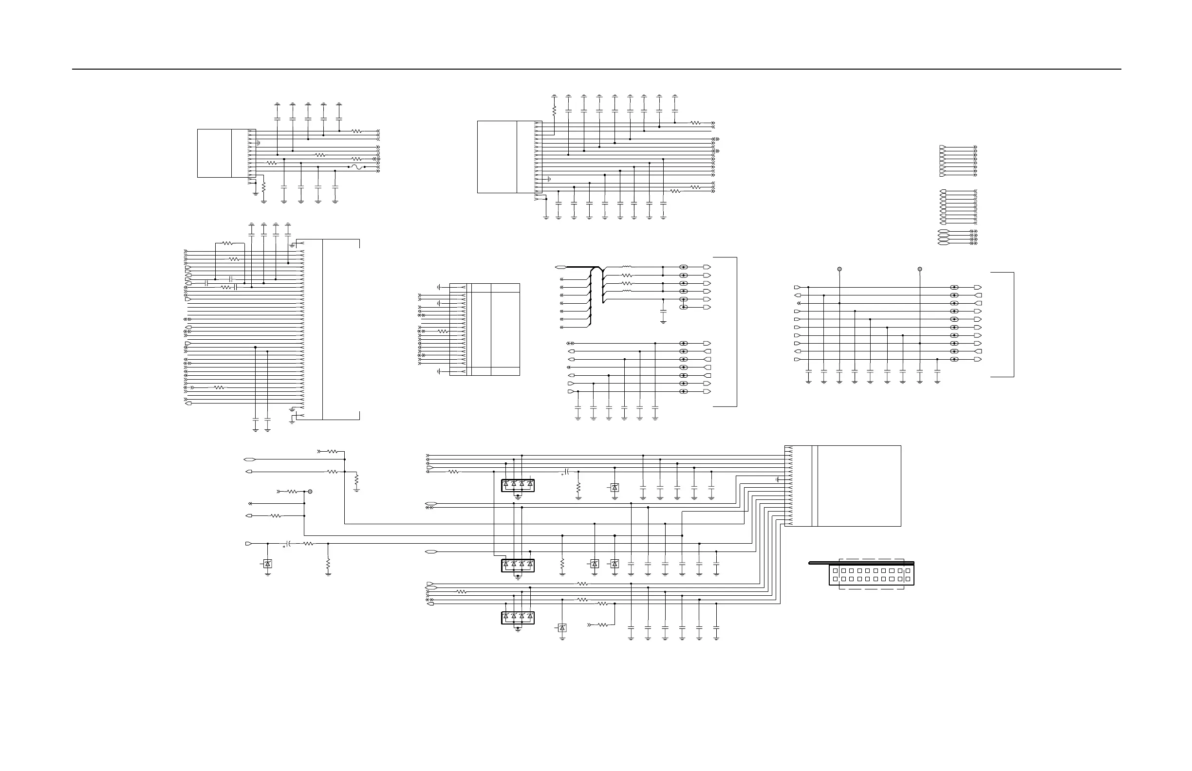
Controller T12 Schematic Diagram - IO

Table of Contents

Other manuals for Motorola CDM Series

Related product manuals