EasyManua.ls Logo

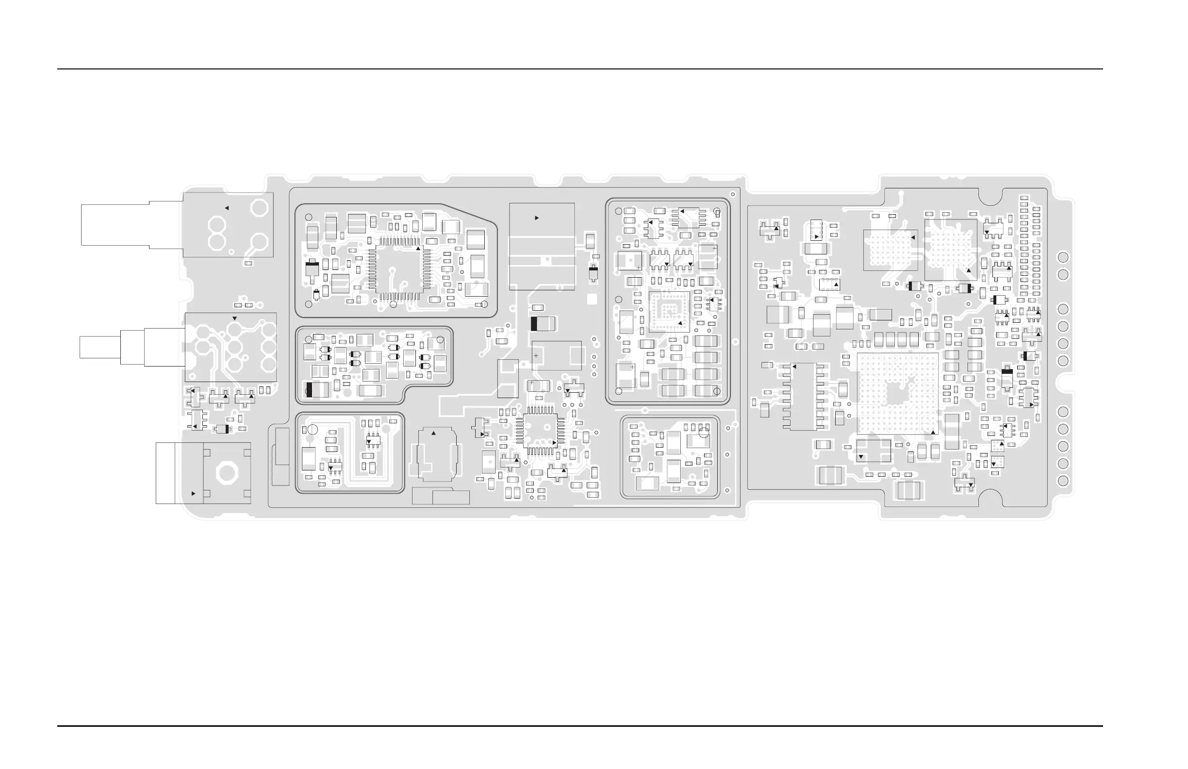
Motorola XTS 2000 - Figure 9.1-27. PMLD4303 A; PMLD4303 D; PMLD4264 B; PMLD4264 E Main Circuit Board Component Location Detail - Side 2

Motorola XTS 2000
914 pages
To Next Page IconTo Next Page
To Next Page IconTo Next Page
To Previous Page IconTo Previous Page
To Previous Page IconTo Previous Page
Loading...
9.1-28 VHF Schematics, Board Overlays, and Parts Lists
February 14, 2012 6816985H01-F
Figure 9.1-27. PMLD4303A/ PMLD4303D/ PMLD4264B/ PMLD4264E Main Circuit Board Component Location Detail – Side 2
AB_CS
AUX3_TP
BSY_IN_RTS
BSY_OUT_CTS
LK_TP
SF_TP
SPI_CK
SSI_D
TP23
TP52
TP55
TP207
TP208
TP209
TP296
TP297
TP298
TP299
TP_146
TP_160
TP_DAC3
TP_RSET
TP_TEMP
TP_VLIM
UCTS_USB_SPEED
USB_TXENAB
USB_VMI
USB_VMO
USB_VPI
UTXD1_USB_VPO
VC_TP
23
B500
BUS
BUSY
CTS1
EXTMIC
EXTSP+
EXT_SP
GND
RTS1
USB_D
USB_D+
VPP
C1
C16
C41
C47
C2
C9
C43
C48
C15
C44
C186
C226
C228
C229
C620
C638
C734
C737
C61
C140
C188
C189
C212
C217
C221
C223
C234
C258
C261
C262
C277
C279
C286
C292
C293
C519
C614
C46
C700
C58
C59
C60
C475
C728
C130
C131
C149
C185
C220
C422
C428
C551
C111
C112
C179
C182
C257
C147
C143
C144
C145
C411
C146
C206
C207
C208
C209
C211
C218
C230
C232
C233
C401
C412
C416
C429
C430
C431
C432
C461
C465
C470
C472
C473
C607
C621
C725
C817
C818
C830
C850
C148
C235
C400
C405
C417
C424
C727
C176
C191
C178
C190
C504
C610
C611
C612
C613
C615
C617
C619
C629
C630
C631
C632
C633
C634
C635
C636
C653
C654
C656
C657
C200
C201
C236
C237
C238
C239
C240
C202
C203
C434
C463
C478
C204
C210
C219
C222
C227
C231
C263
C267
C276
C266
C278
C421
C425
C423
C433
C448
C449
C476
C726
C524
C525
C637
C701
C702
C703
C762
C770
C771
C704
C705
C716
C718
C706
C714
C708
C709
C710
C729
C736
C750
C751
C711
C712
C717
C719
C721
C722
C723
C724
C735
C758
C759
C720
C731
C730
C732
C756
C757
C760
C763
C766
C767
C768
C769
C851
C742
C743
C764
C765
C791
C792
C790
C858
C859
C860
C861
C862
C863
C864
C865
C866
CR800
CR801
D603
D662
D3
D4
D5
D6
D10
D11
D12
D13
D104
D171
5
43
D172
5
43
D173
D201
D202
D401
D500
D513
D700
E141
E140
E402
E406
FL200
J101
43
2
5
L5
L12
L42
L49
L6
L8
L45
L48
L7
L47
L55
L56
L60
L106
L128
L257
L259
L413
L120
L121
L200
L201
L203
L258
L266
L274
L403
L411
L412
L500
L703
L704
L705
L708
L710
R718
M501
P4
P100
3
4
2
Q101
Q197
Q200
Q301
Q501
Q698
Q804
Q700
8
5
4
Q703
8
5
4
Q701
Q702
9
8
1
16
Q709
R13
R14
R33
R34
R127
R162
R215
R257
R277
R295
R406
R407
R499
R511
R518
R633
R636
R647
R654
R656
R672
R673
R168
R169
R611
R616
R617
R620
R621
R622
R625
R626
R697
R158
R704
R712
R772
R774
R102
R103
R214
R255
R637
R638
R639
R640
R641
R642
R643
R644
R104
R125
R150
R151
R209
R709
R109
R159
R160
R161
R436
R610
R634
R635
R743
R813
R814
R815
R142
R143
R144
R254
R146
R149
R153
R156
R154
R702
R717
R725
R744
R767
R796
R155
R157
R201
R202
R203
R204
R708
R205
R266
R294
R213
R722
R291
R293
R272
R273
R275
R274
R408
R419
R615
R812
R503
R740
R504
R512
R519
R613
R614
R658
R668
R700
R701
R703R705
R741
R742
R710
R714
R729
R745
R746
R747
R750 R751R752 R753
R790
R781
R782
R783
R799
R797
R798
R844
2
S500 C3
8
C2
4
A
C1
B
M2
M1
2
S501
3
5
4
SH1
SH103
SH201
SH252
SH401
U102
17
9
25
U103
U201
U202
K1
A1
K10
A10
13
25
37
1
U401
U601
U602
P14
A14
A1
P1
U701
U712
U713
A3
C3
C1
U714
A3
C3
C1
G8A8
A1 G1
U803
H6
H1
A6
A1
U804
VR500
VR514
VR511
VR512 VR513
VR650
VR658
VR663
Y701
2
Y702
34

Table of Contents

Related product manuals