EasyManua.ls Logo

Napoleon BL36NTE - Dégagements Minimaux de Lenceinte

Napoleon BL36NTE
116 pages
Print Icon
To Next Page IconTo Next Page
To Next Page IconTo Next Page
To Previous Page IconTo Previous Page
To Previous Page IconTo Previous Page
Loading...
91
W415-1442 / B / 06.06.16
FR
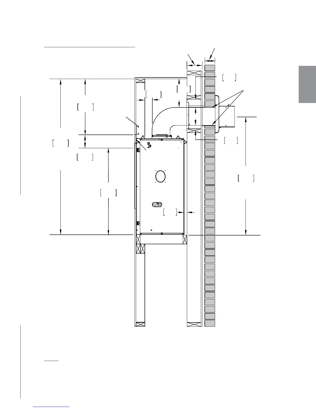
5.3 DÉGAGEMENTS MINIMAUX DE L'ENCEINTE
ÉVACUATION SUR LE DESSUS
COMBUSTIBLE
1"
25mm
3"
76mm
5"
127mm
1"
25mm
7"
178mm
MIN
41 1/8"
53 "
1346mm
CEILING
(MIN)
17 ”
432mm
4 1/2"
114mm
31 1/2"
800mm
OSSATURE
EN ACIER
DESSUS DE
L’OUVERTURE DE
L’APPAREIL
INCOMBUSTIBLE
INCOMBUSTIBLE
0” (0mm) SI LES
MATÉRIAUX SONT
INCOMBUSTIBLES,
COMME DE LA
BRIQUE ER DE LA
PIERRE.
1045mm
MINIMUM
PLUS LA PENTE*
NOTE: L'écran protection est télescopique et doivent être ajusté à protection toute la profondeur de la
pénétration de la paroi combustible.
ENCEINTE AVEC ÉVACUATION SUR LE DESSUS
L'enceinte de l'appareil doit avoir une hauteur minimale de 53" (1346mm). Afi n de respecter les contraintes de
température, l’espace à l’intérieur de l’enceinte, autour de l'appareil et au-dessus, doit demeurer sans ob-
struction.
* Voir la section « DIMENSIONS MINIMALE DE L'OSSATURE » pour plus d'informations sur la réduction
d'évacuation tuyau supérieur dégagements.
Ces peramètres s'appliquent également aux illustrations trouvées dans la section « DÉGAGEMENTS
MINIMAUX DE L'ENCEINTE ».

Table of Contents

Related product manuals