EasyManua.ls Logo

Napoleon Condo Pack - Page 84

Napoleon Condo Pack
128 pages
Print Icon
To Next Page IconTo Next Page
To Next Page IconTo Next Page
To Previous Page IconTo Previous Page
To Previous Page IconTo Previous Page
Loading...
20
IOM
IOM
W415-2288 / 08.29.19
H68.3.4
PRENEZ SOIN DE NE PAS OBSTRUER LES ORIFICES
DE DRAINAGE DU PANNEAU DE BASE.
IMPORTANT
!
!
LE MANCHON DOIT ÊTRE FIXÉ AU MUR PORTEUR
ET NON AU MUR FINI.
LES MURS DE MAÇONNERIE DOIVENT AVOIR UN
LINTEAU POUR SOUTENIR LE MUR,
CONFORMÉMENT AUX CODES DU BÂTIMENT
NATIONAL ET LOCAL.
IMPORTANT
!
!
Calfeutrage autour
du manchon et du
mur EXTÉRIEUR
Manchon mural
Espace de 1/4 po
où sera insérée la
mousse isolante
à faible expansion
Espace de 1/4 po
où sera insérée la
mousse isolante
à faible expansion
mousse isolante
à faible expansion
Calfeutrage autour
du manchon et du
mur INTÉRIEUR
EXTÉRIEUR
INTÉRIEUR
14
ESPACE DE 1/4po
entre le mur et le
manchon mural
ESPACE de 1/4po
manchon mural
montant
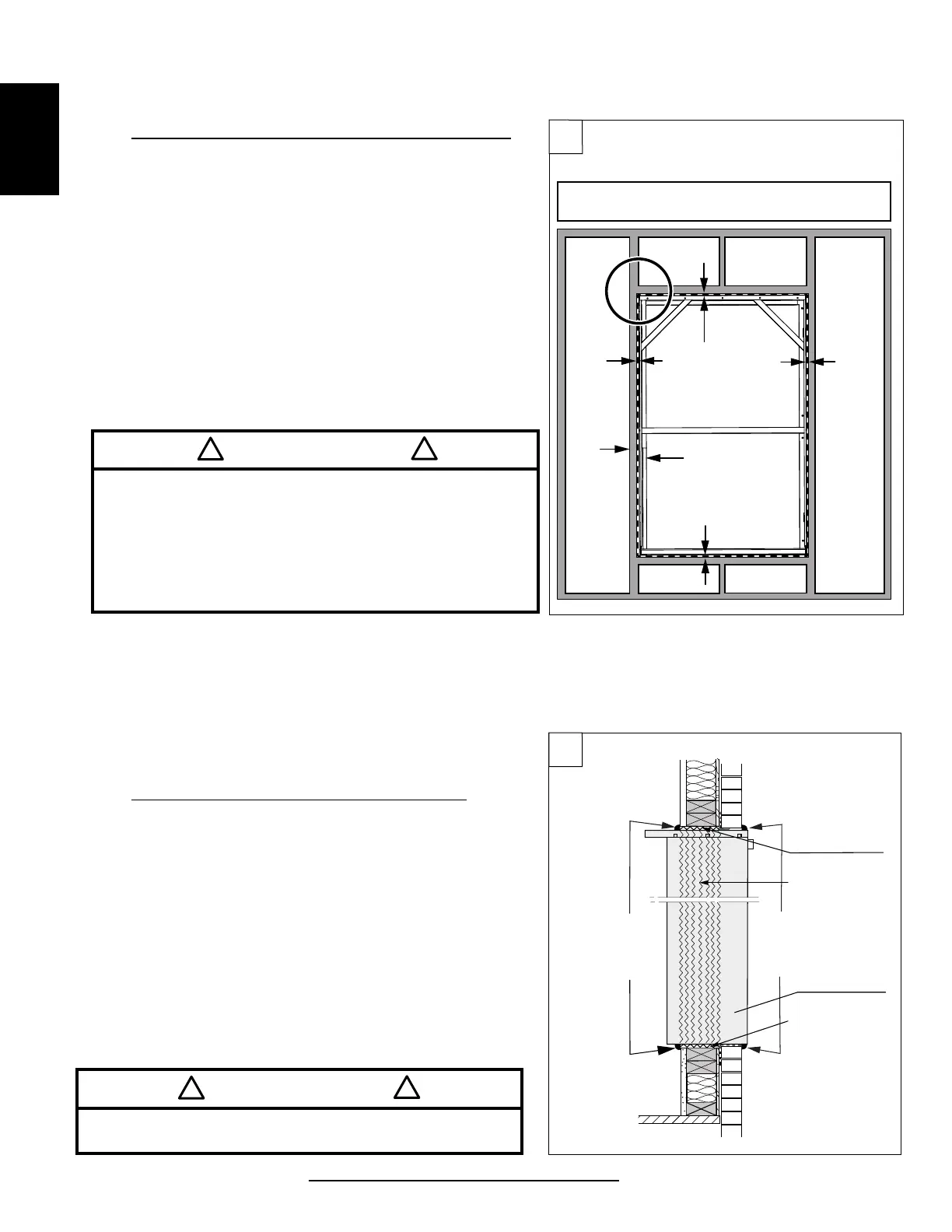
Laissez un espace de ¼po entre le mur et le manchon mural
an d’y insérer de la mousse isolante à faible expansion.
13
12. Installation du manchon mural dans l’ouverture du mur :
En gardant les trous de drainage face vers l’extérieur, tirez le
manchon vers le mur, jusqu’à ce que les supports soient insérés
dans les parois du mur
a. Laissez un espace de ¼ po entre le mur et le manchon mural
a n d’y insérer de la mousse isolante à faible expansion
(FIG. 13).
Veillez à ce que le manchon soit parallèle à l’ouverture
du mur. Le manchon mural doit être bien aligné pour que le
Condo Pack puisse y être inséré.
b. Fixez le manchon mural au bâtiment :
Fixez les supports au mur en vissant les vis dans les cinq
trous de chaque côté.
Fixez les panneaux latéraux dans le mur porteur à l’aide des
attaches.
13. Une fois la  nition du mur terminée, veillez à remplir l’espace
entre le manchon mural et le mur de mousse isolante à faible
expansion (FIG. 13 et FIG. 14).
Laissez la mousse durcir pendant au moins 8 heures.
a. Calfeutrez et scellez tous les joints et toutes les ouvertures
qui se trouvent entre le manchon mural et les murs
extérieurs et intérieurs  nis (FIG. 14). Scellez les espaces en
utilisant un produit de calfeutrage non durcissant. Tous les
joints doivent être imperméables pour empêcher l’in ltration
d’air, d’humidité et d’eau dans le bâtiment.
b. L’ouverture du mur allant du haut au bas du manchon mural
peut être protégée par un solin si nécessaire (FIG. 8).
c. Tous les trous non utilisés doivent être scellés.
d. Préparez le Condo Pack en vue de son
installation. Pour obtenir plus de renseignements
sur le support de l’appareil, consultez la section
« Support de l’appareil ».
4.4.3 Scellage : Manchon mural et construction du mur

Table of Contents