EasyManua.ls Logo

NTI GF 200 - Physical Dimensions and Connection Layout

NTI GF 200
40 pages
Print Icon
To Next Page IconTo Next Page
To Next Page IconTo Next Page
To Previous Page IconTo Previous Page
To Previous Page IconTo Previous Page
Loading...
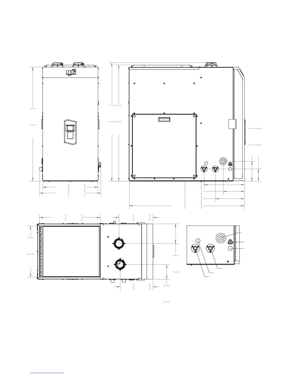
2.6 Dimensions
The following diagrams show the dimensions of the appliance and the connections.
19.5in
495mm
16.4in
416mm
10.9in
276mm
10.5in
266mm
6.3in
160mm
4.7in
120mm
36.5in
927mm
19.6in
498mm
17.7in
450mm
37.2in
944mm
39.7in
1008mm
9.3in
236mm
12.9in
328mm
3.9in
100mm
6.4in
162mm
6.8in
173mm
38.0in
964mm
Inlet Conn. (3/4" Socket)
Outlet Conn. (3/4" Socket)
Line Voltage
Field Wiring
Gas Conn.
Condensate Conn.
**Inlet Connection is furthest to the back from the front of the appliance. Plumbing connections are possible from left or
right side of cabinet. See Plumbing Section for details.
Front
Top
Left Side
8

Related product manuals