EasyManua.ls Logo

Oki ES8473 - Page 259

Oki ES8473
271 pages
Print Icon
To Next Page IconTo Next Page
To Next Page IconTo Next Page
To Previous Page IconTo Previous Page
To Previous Page IconTo Previous Page
Loading...
Oki Data CONFIDENTIAL
45850101TH Rev.1
6-8
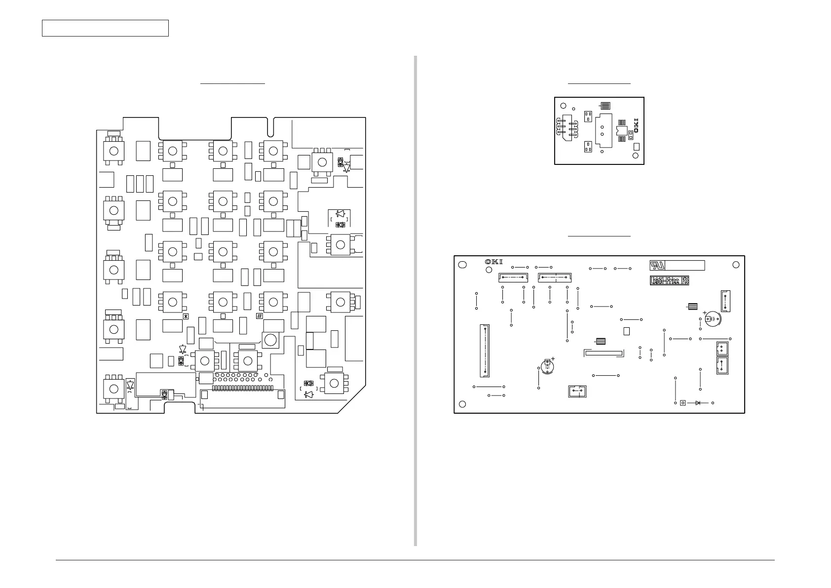
6. CONNECTION DIAGRAMS
(10) Switch board (Board-THS)
Component side
(12) Duplex unit board(Board-GOH) , 2nd(3rd/4th) unit board (Board-GOH-2)
Component side
(11) Environment sensor board (Board-8TH)
Component side
3
3
44993499
R503
1
2
3
4
5
6
7
8
9
0
STATUS
CLEAR
FAX
PRINT
SCAN
COPY
HOME
START
STOP
POWER
SAVE
POWER
BLUE
GREEN
GREEN
RED
GREEN
SW500
SW501
SW502
SW504SW505
SW506
SW507SW510 SW511
SW512SW513
SW514
SW515
SW516
SW530
SW531
SW532
SW533
SW534
SW540
SW541
DLED501
DLED504
DLED505
RJ521
RJ525
RJ520
RJ524
RJ512
RJ523
RJ511
RJ506
RJ518
1
22
12
3
4
5
6
7
8
9
10 12 14 16 18
20
21
22
11 13 15 17
KEY501
RJ509
RJ510
RJ508
RJ507
RJ522
RJ519
R504
RJ530
RJ531
RJ529
RJ532
RJ533
RJ535
8TH
1
1
45361799
6
1
HUM
IC1
TMP
SNS12
SNS03
MOTOR
MAIN1
JP32
JP31
JP30
JP29JP28
JP26
JP25
JP24
JP23
JP21
JP20
JP19
JP18
JP17
JP16
JP15
JP14
JP13
JP12
JP11
JP10
JP9
JP8
JP7
JP5
JP4
JP3
JP2
FAN
D1
CP2
CP1
CL2
CL1
4
1
3
1
6
1
33
44605899
GOH
1
12
1
7
1
2
Board-GOH
1
3

Table of Contents

Related product manuals