EasyManua.ls Logo

Omron B7A - Page 105

Omron B7A
121 pages
Print Icon
To Next Page IconTo Next Page
To Next Page IconTo Next Page
To Previous Page IconTo Previous Page
To Previous Page IconTo Previous Page
Loading...
B7A
B7A
103
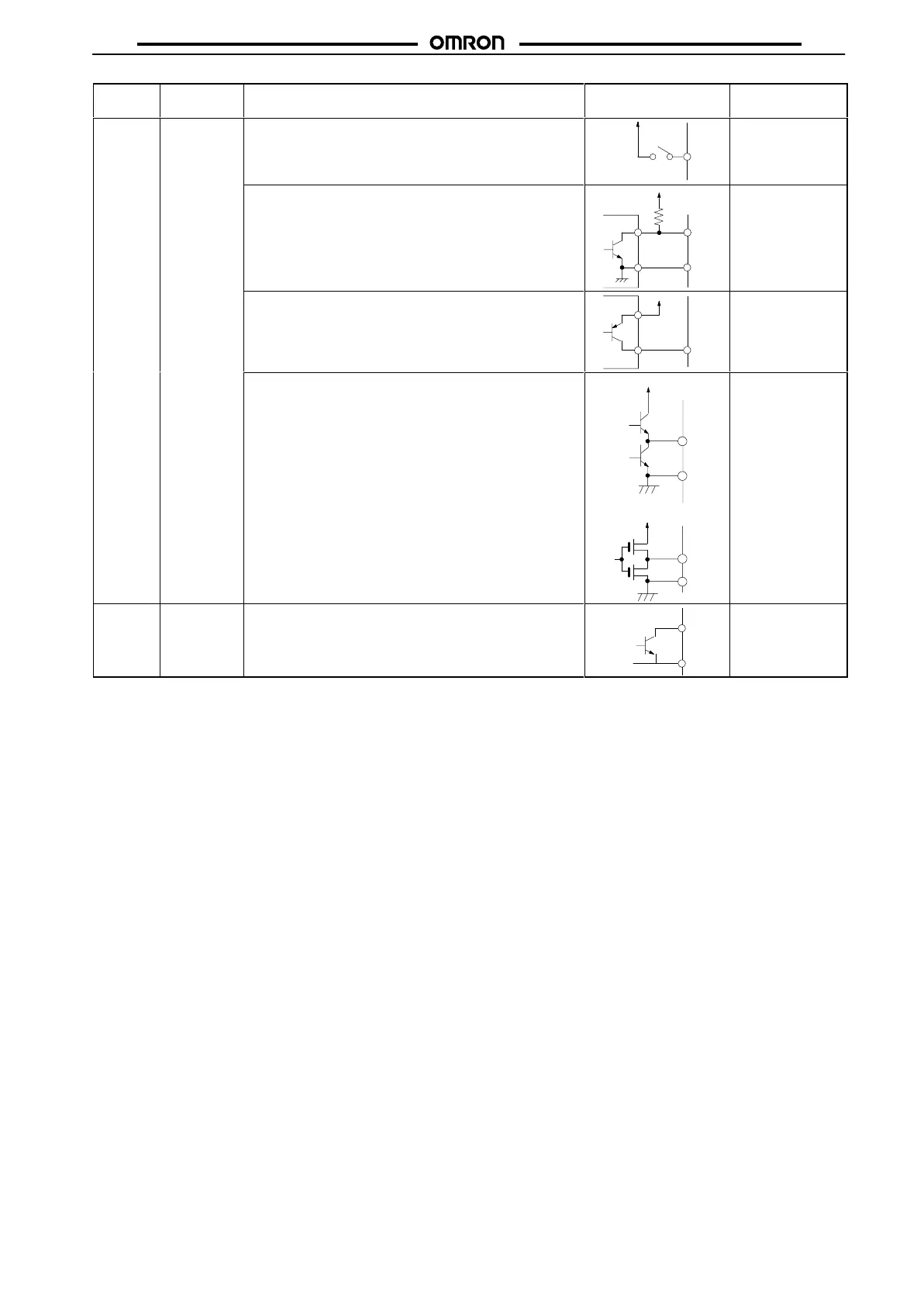
Type
Suitable input
example
CircuitON/OFFApplicable
model
Module
(see
note)
B7A-T6D2
B7A-T6D7
B7A-T10M2
For switches
ON: Switch is closed.
OFF:
Switch is open.
+V
IN
SW
A3G Pushbutton
Switch (microload)
WL01j
Limit
Switch
For NPN open-collector inputs
ON: Transistor is OFF.
OFF: T
ransistor is ON. (residual voltage is 0.8 V max.)
+V
OUT
IN
_
_
3G2A5-OD213
C200H-OD215
PLC Transistor
Output Unit
For PNP open-collector inputs
ON: Transistor is ON.
OFF: Transistor is OFF.
+V
IN
OUT
+
C200H-OD216
C200H-OD217
PLC PNP Output
Unit
For IC (TTL, CMOS) inputs
ON:
Output is 2.2 V min.
OFF:
Output is 0.8 V max.
+5 V
+5 V
IN
IN
_
_
TTL
CMOS
3G2A5-OD501CN
C200H-OD501
PLC
TTL Output
Unit
PLC
connector
B7A-T6E3
B7A-T6E8
B7A-T3E3
B7A-T3E8
For PLC output unit, NPN open collector
ON: Transistor ON
OFF: Transistor OFF
IN
OUT
COM
B7A
---
Note:
The positive
input voltage range of the B7A-T6D
j
modular model is 0 to 24 VDC and the positive input voltage of the B7A-T10M2
modular model is 5 VDC.

Related product manuals