EasyManua.ls Logo

Omron CJ1W-PRT21 - Page 77

Omron CJ1W-PRT21
127 pages
Print Icon
To Next Page IconTo Next Page
To Next Page IconTo Next Page
To Previous Page IconTo Previous Page
To Previous Page IconTo Previous Page
Loading...
3-9
3 Data Exchange with the CPU Unit
CJ-series PROFIBUS Slave Unit Operation Manual for NJ-series CPU Unit (W510)
3-5 Data Exchange with the CPU Unit
3
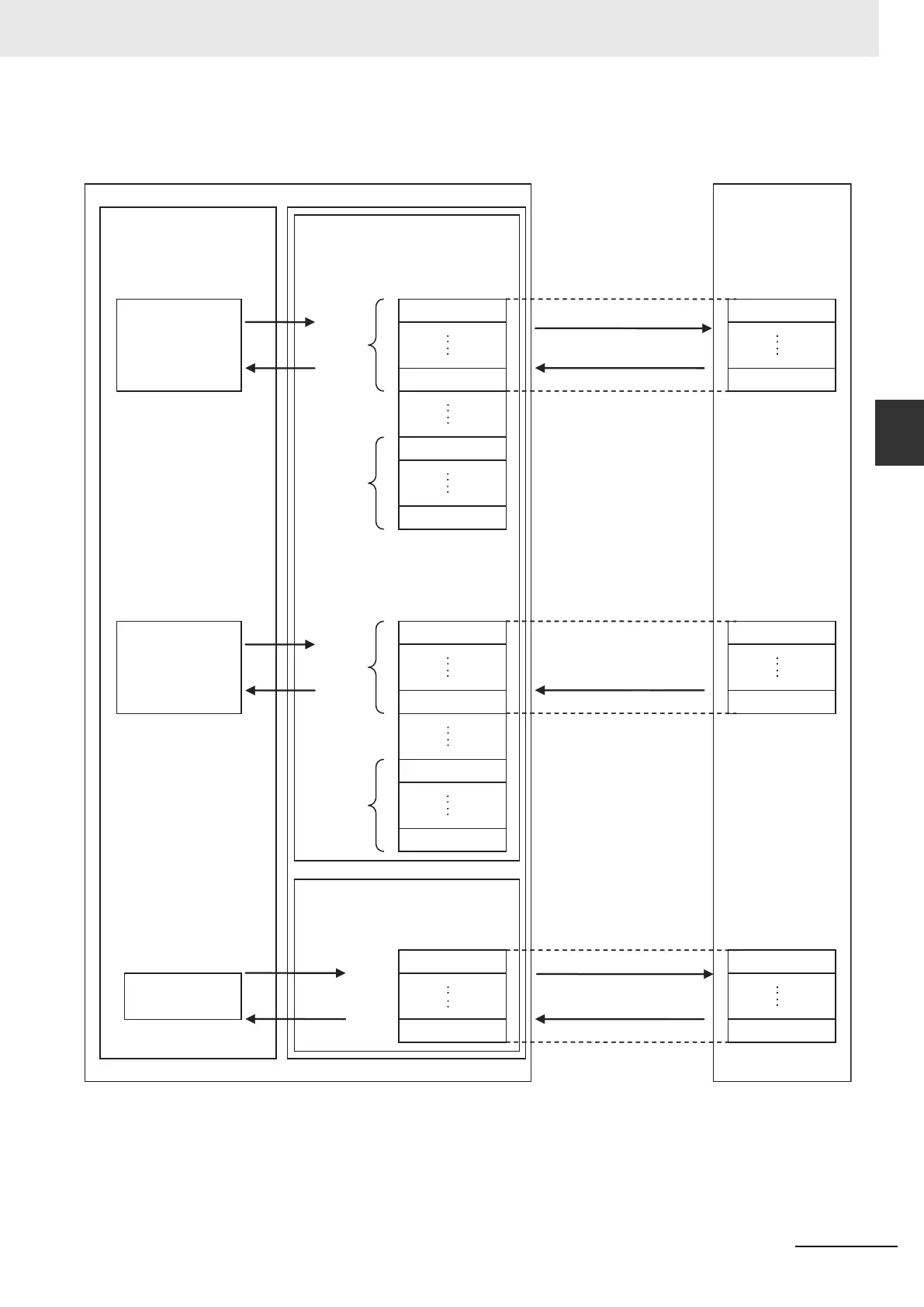
3-5-1 Data Flow
I/O Port
Mach No #0
(10 wds)
CPU Special Unit Words
Allocated in CIO Area
CPU Unit
User program
Mach No #15
(10 wds)
PROFIBUS Slave Unit
(I/O refresh) Status
Mach No #0
(8 wds)
Mach No #15
(8 wds)
Conguration Information
(When Data Changes)
Allocated DM Area
Words for Special I/O Units
Memory areas such as
CIO, DM, WR, HR and EM
User-dened
variable
User Specied Variables
(I/O refresh)
Corresponding
device variable
for CJ-series Unit
Corresponding
device variable
for CJ-series Unit
Software Switches (I/O refresh)
CJ Unit Memory

Table of Contents

Related product manuals