EasyManua.ls Logo

Onkyo TX-SR876 - Microprocessor Section

Onkyo TX-SR876
285 pages
Print Icon
To Next Page IconTo Next Page
To Next Page IconTo Next Page
To Previous Page IconTo Previous Page
To Previous Page IconTo Previous Page
Loading...
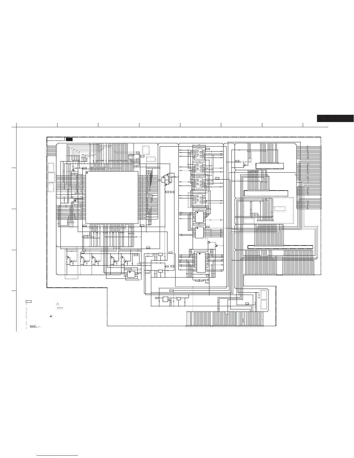
SCHEMATIC DIAGRAMS-8 (SD-8)
MICROPROCESSOR SECTION
TX-SR876/SA876
A
1
2
3
4
5
BCDEFGH
FCLK
FBUSY
VSPTXD/VSPSDA
NETRXD
SPRLZ2
SPRLCS
SPRLF
PROTECT
VOLSDO
VOLCLK
DSP3INT
DSP2RST
DSP1INT
VOLCS
DSP3RST
DIRRST
DIRINT
SYSOUT
SYSIN
MICMUTE
VOLH
REMIN
INT3
INT1
SPRLSB
DSP2INT
DSP1RST
HPRL
FTXD
FRXD
SPRLFB
KEY2
KEY1
KEY0
VOLB
VOLA
LEDSTBY
LEDSTBY2
HDMICLK
HDMIRST
FLDRST
KEY3
HDMISDO
HDMISTB
HDMISDI
CNVSS
BAND
INT2
Z3MUTE_M
Z2MUTE_M
SIOCSC
SIOCSOE2
SIOCSOE1
SIOCSB
SIOCSA
SIOCLK
SIOSDO
SELCLK
SELSDO
SBZ2MUTE_M
DIGSDI
DIGSDO
DIGCLK
APOWER1
APOWER2
TUMUTE_M
ASWSDO
ASWCLK
VSWCLK
SPCLK
VSWCS
SPCS
SELCS
ASWCS
LEDLATCH
SELSTB
ASWSTB
SIOSTB
SPSTB
RI
SIOCSOE2
SIOCSA
SIOCSB
SIOCSC
CECOUT
CECTRG
DSP1NIC
THERMAL2
THERMAL1
MPOWER
DACRST
DSP1DEC
+5VMPU
SRTXD
HPDET
+15VA
-15VA
GNDXM
GNDDG
CEC_IO
GNDHD
Z3MUTE
VSWSTB
SPSDO
VSWSDO
+5.3VXM
TUN/VSEL/VC_SDA
TUN/VSEL/VC_SCL
+9VTU
GNDDG
SPRLSB
SPRLCS
SPRLFB
SPRLF
DAC2CS
DAC1CS
DIGSDO
DIGCLK
DIGSDI
POFF2
DSP1INT
DSP1CS
DSP2CS
DSP3CS
DSP1NIC
DSP1DEC
VPOWER
MEQMUTE
GNDVD
AUX2CV_IN
AUX2SY_IN
VSWSTB
VSWCLK
VPOWER
TRGA
TRGC
TRGB
AUX2SC_IN
VSWSDO
IRINA2
IRINB1
IRINB2
IRINA1
MPOWER
+SUB
GNDDG
POFF
+9V
APOWER2
APOWER1
CEC_IO
TXMUTE
HDMISDO
HDMICLK
HDMIRST
VSPRST
HDMISDI
RXMUTE
HDMISTB
VSPRXD/VSPSCL
VSPTXD/VSPSDA
VSPREQ/BOOT
VSPRDY/VDLOCK
+3.3VMPU
+3.3VMPU
+3.3VMPU
+9VDG
Z2MUTE
TUN/VSEL/VC_SDA
TUN/VSEL/VC_SCL
GNDDG
RESET
CNVSS
FTXD
FRXD
FCLK
FBUSY
MPOWER
NETSTATUS
RESET
Z2VOLCLK
Z2VOLSDO
XMRSV2
VSPRST
VSPREQ/BOOT
VSPRXD/VSPSCL
POFF2
XMRST
STEREO
SD
SRRXD
SPRLZ2
+5.3VXM
ROMCS
ROMSDI
ROMSDO
ROMCLK
AMUTE
SBZ2MUTE
SRRST_5V
SRRST
MICDET
KEYINT1
CECOUT
CECTRG
XMTXD
FANCTRL
SRTXD
SRRST
CECIN
XMRXD
XMRSV1
VOLRST
SIOSDO
SIOCLK
VOLMUTE
STEREO
+9VTUN
SD
DACRST
DACCR
DACSBL
DACSWR
NETSPDIF
OPTF
FTXD
DIRCS
DIRINT
DIRRST
DSP3INT
DSP2INT
DSP2RST
DSP1RST
DSP3RST
FRXD
HDRDRST
RDSCLK
RDSSDI
Z2VOLCLK
Z2VOLSDO
Z3MUTE
Z2MUTE
TU_R
TU_L
RECMUTE
TUMUTE
GNDXM
SELSTB
SELSDO
SELCLK
ADL
ADR
GNDAUX2
AUX2_L
MIC
AUX2_R
-15VA
+15VA
HPDET
HPRL
VOLRST
VOLCLK
VOLSDO
VOLCS
AMUTE
SBZ2MUTE
ASWSDO
ASWCLK
GNDDG
VOLMUTE
DACCR
DACSL
DACSW
DACC
DACFR
DACFL
DACSBR
DACSBL
DACSWR
ASWSTB
DACSR
GNDA
SPRLF
SPRLSB
GNDA
GNDA
SR_L
SR_R
XM_L
XM_R
POFF
SIOSTB
FSWPOWER
SPCLK
DIRSW
DSDRCSW
TRGC
TRGB
TRGA
SPSTB
SEC1M
SEC1H
LEDPURE
LEDZ2
LEDZ3
RECMUTE_M
SPSDO
+5VST
+5VST
+3.3VMPU
FLD1CS
DAC2CS
DAC1CS
DSP3CS
DSP2CS
SIOCSOE1
DIRCS
DSP1CS
FSWPOWER
SPDIFSW
HDPCMSW
DSDDISW
+15VA
-15VA
+3.3VST
+3.3VST
+3.3VST
FLD2CS
RXMUTE
TXMUTE
VSPRDY/VDLOCK
XMRXD
XMTXD
XMRSV2
XMRST
TUNDACRST
AMUTE_M
RDSCLK
RDSSDI
TUN/VSEL/VC_SDA
TUN/VSEL/VC_SCL
+5VMPU
XM_L
XM_R
SR_R
SR_L
SRTXD_5V
SRRST_5V
SRRXD
SRTXD_5V
XMRSV1
SPFOUT
GNDTU
TU_L
TU_R
GNDTU
GNDA
GNDA
SPDIFSW
ADR
ADL
DACSR
DACSL
DACSW
DACC
DACFR
DACFL
DACSBR
RI
MEQMUTE
DSDDISW
DIRSW
DSDRCSW
HDPCMSW
FANCTRL
PROTECT
VOLH
GNDDG
SEC1H
SEC1M
THERMAL2
THERMAL1
+3.3VMPU
GNDAUX2
+15VA
-15VA
AUX2_R
MICMUTE
MIC
AUX2_L
MICDET
+5VMPU
REMIN
AUX2SY_IN
AUX2CV_IN
GNDVD
AUX2SC_IN
IRINA1
IRINA2
IRINB2
GNDDG
VOLB
VOLA
LEDSTBY
LEDSTBY2
LEDZ2
LEDPURE
OPTF
LEDZ3
KEY1
KEY2
KEY3
LEDLATCH
+3.3VMPU
KEYINT1
+3.3VST
DIGSDO
DIGCLK
FLD2CS
FLD1CS
FLDRST
KEY0
CECIN
IRINB1
TO FLASH WRITER
DC,DD Type Only
HDRADIO
TUNER
2.7(1/2W)
2.7(1/2W)
2.7(1/2W)
2.7(1/2W)
+5.6V
+9V
NAAR-9075
TO NAETC-9056
SD-7:D5
TO NAETC-9056
SD-7:D4
TO NAETC-9056
SD-7:D3
TO NAASP-9050(2/2)
SD-2:C5
TO NAASP-9050(2/2)
SD-2:B5
TO NAVD-9052 SD-6:F1
DC,DD Only
TO NARF-9077(XM BOARD)
SD-12:H2
TO NAAF-9039
SD-5:A4
TO NADIS-9085
SD-13:B2
TO NAHDM-9114(5/5)
SD-19:H4
R7003
47
R7005
47
R7006
220
R7007
47
R7018
220
R7016
10K
R7024
10K
R7030
47
R7031
47
R7032
220
R7033
220
R7034
47
R7035
47
R7036
47
R705410K
C7005
104Z
R7037
47
R7038
47
R7042
47
R7043
47
R7040
47
R7045
220
R7048
47
R7050
47
R7051
47
R7053
47
R7055
47
C7009
104Z
R7062
47
R7063
47
R7070 47
R7071 47
R7072 47
R7075
47
C7011
104Z
R7077
47
R7078
47
R7079
220
R7080
47
R7081
220
R7082
47
R7083
220
R7084
47
R7085
47
R7086
220
R7088
220
R7089
47
R7087
47
R7092
220
R7094
47
R7095
47
R7097
47
R7098
47
R7099
220
R7100
220
R7101
220
R7102
220
R7103
220
R7104
220
R7105
47
R7106
47
R7011
1K
R7012
1K
TUNDACRST
R7013
47
HDRDRST
R7014
47
R7278
10K
R7279
10K
R7280
10K
R7282
10K
R7090
47
C7012
104Z
R7281
10K
C7010
104Z
R7109
220
R7139
47
R7138
47
R7141
47
R7144
220
R7137
220
R7136
4.7K
R7135
4.7K
R7134
4.7K
R7133
4.7K
C7017
104Z
R7122
47
R7121
47
R7119
1K
R7120
1K
R7123
47
R7124
220
R7125
47
R7126
47
R7127
220
R7128
220
R7129
47
R7131
47
R7025
220K
R7289
10K
R7212
10K
10K
10K
10K
R7211
R7210
R7213
R7213
DC,DD,SA876
Type only
R7285
220K
R7283
10K
R7272
10K
Q7005
DTC114YKA
Q7006
DTA114YKA
R7001
47
R7002
47
C7003
104Z
R7286
100
R7113
R7113
33K: DC,DD
10K: MP,MB,MT,
DT,SA876
LIST
R7112
10K
R7111
10K
R7110
33K
D7001
1SS352
R7290
10K
C7022
101J
R7298
2.2K
C7023
101J
R7267
47K
R7107
220
R7273
10K
R7064
47
R7065
10K
R7153
47
Q7151
TC74VHCT08AFT
1
2
3
4
5
6
7
GND
8
9
10
11
12
13
14
VCC
C7151 104Z
C7155 104Z
R7154
47
R7351
10K
Q7356
RN2402
R7365 10K
Q7155
TC74VHCT08AFT
1
2
3
4
5
6
7
GND
8
9
10
11
12
13
14
VCC
R7156
47
R7151
47
R7152
47
R7155
47
C7161 104Z
Q7007
DTC114YKA
R7161
47
R7162
47
C7172
104Z
C7171104Z
C7166
100/16
C7152
100/16
C7165 104Z
R7027
4.7K
R7073
47
Q7001
MAIN MICROPROCESSOR
M3087BFKBGP
1
P96
2
2:P95/ANEX0/CLK4/CAN1IN/CAN1WU
3
3:P94/DA1/TB4IN/CTS4/RTS4/SS4
4
4:P93/DA0/TB3IN/CTS3/RTS3/SS3
5
P92
6
P91
7
P90/TB0IN/CLK3
8
P146/INT8
9
P145/INT7
10
P144/INT6
11
P143/INPC17/OUTC17
12
P142/INPC16/OUTC16
13
P141/INPC15/OUTC15
14
P140/INPC14/OUTC14
15
BYTE
16
CNVSS
17
P87/XCIN
18
P86/XCOUT
19
RESET
20
XOUT
21
VSS
22
XIN
23
VCC1
24
P85/NMI
25
P84/INT2
26
26:P83/INT1/CAN1IN/CAN0IN
27
27:P82/INT0/CAN1OUT/CAN0OUT
28
P81
29
29:P80/TA4OUT/U/ISRXD0/RXD5
30
P77
31
P76
32
P75
33
P74
34
P73
35
35:P72/TA1OUT/V/CLK2
36
P71
37
P70
38
P67/TXD1/SDA1/SRXD1
39
VCC1
40
P66/RXD1/SCL1/STXD1
41
VSS
42
P65/CLK1
43
P64/CTS1/RTS1/SS1/OUTC21/ISCLK2
44
P63/TXD0/SDA0/SRXD0/IRDAOUT
45
P62/RXD0/SCL0/STXD0/IRDAIN
46
P61/CLK0/RTP01
47
P60/CTS0/RTS0/SS0/RTP00
48
P137/OUTC27
49
P136/OUTC21/ISCLK2
50
P135/OUTC22/ISRXD2/IEIN
51
P134/OUTC20/ISTXD2/IEOUT
52
P57/RDY
53
P56/ALE
54
P55/HOLD
55
P54/HLDA/ALE
56
P133/OUTC23
57
VSS
58
P132/OUTC26
59
VCC2
60
P131/OUTC25
61
P130/OUTC24
62
P53/CLKOUT/BCLK/ALE
63
P52/RD
64
P51/WRH/BHE
65
P50/WRL/WR
66
P127
67
P126
68
P125
69
P47/CS0/A23
70
P46/CS1/A22
71
P45/CS2/A21
72
72:P44/CS3/A20
73
P43/A19
74
VCC2
75
P42/A18
76
VSS
77
P41/A17
78
P40/A16
79
P37/A15/(/D15)
80
P36/A14/(/D14)
81
P35/A13/(/D13)
82
P34/A12/(/D12)
83
P33/A11/(/D11)
84
P32/A10/(/D10)
85
P31/A9/(/D9)
86
P124
87
P123/CTS6/RTS6
88
P122/RXD6
89
P121/CLK6
90
P120/TXD6
91
VCC2
92
P30/A8/(D8)
93
VSS
94
P27/A7(/D7)/AN27
95
P26/A6(/D6)/AN26
96
P25/A5(/D5)/AN25
97
P24/A4(/D4)/AN24
98
P23/A3(/D3)/AN23
99
P22/A2(/D2)/AN22
100
P21/A1(/D1)/AN21
101
P20/A0(/D0)/AN20
102
P17/D15/INT5
103
P16/D14/INT4
104
P15/D13/INT3
105
P14/D12
106
P13/D11
107
P12/D10
108
P11/D9
109
P10/D8
110
P07/D7/AN07
111
P06/D6/AN06
112
P05/D5/AN05
113
P04/D4/AN04
114
P114
115
P113/INPC13/OUT13
116
P112
117
P111/INPC11/OUTC11/ISCLK1
118
P110
119
P03/D3/AN03
120
P02/D2/AN02
121
P01/D1/AN01
122
P00/D0/AN00
123
P157/AN157/CTS6/RTS6
124
P156/AN156/CLK6
125
P155/AN155/RXD6
126
P154/AN154/TXD6
127
P153/AN153/CTS5/RTS5
128
P152/AN152/ISRXD0/RXD5
129
P151/AN151/ISCLK0/CLK5
130
VSS
131
P150/AN150/ISTXD0/TXD5
132
VCC1
133
P107/AN7/KI3/RTP33
134
P106/AN6/KI2/RTP32
135
P105/AN5/KI1/RTP31
136
P104/AN4/KI0/RTP30
137
P103/AN3/RTP13
138
P102/AN2/RTP12
139
P101/AN1/RTP11
140
AVS S
141
P100/AN0/RTP10
142
VREF
143
AVC C
144
144:P97/ADTRG/RXD4/SCL4/STXD4
C7352
105K
Q7352
RN2402
R7296
2.7K
R7294
2.7K
R7293
2.7K
R7402
220
R7401
220
R7158
47
R7157
47
R7163
47
R7008
220
R7164
47
R7167
47
P7001
1
2
3
4
5
6
7
8
9
R7108
47
C7014
104Z
R7288
10K
R7299
2.2K
R7300
10K
R7292
10K
R7291
10K
R7287
10K
X7001
8.00MHz
R7266
10K
R7264
27K
R7265
27K
D7002
1SS352
D7003
1SS352
C7013
104Z
Q7161
TC74VHCT08AFT
1
2
3
4
5
6
7
GND
8
9
10
11
12
13
14
VCC
Q7165
TC74VHCT08AFT
1
2
3
4
5
6
7
GND
8
9
10
11
12
13
14
VCC
R7303
10K
R7403
0
C7002
4.7/50
Q7351
RN1404
Q7355
RN1404
R7302
10K
P2010B
1
2
3
4
5
6
7
8
9
10
11
12
13
14
15
16
17
18
19
20
21
22
23
24
R7301
10K
L7165
LBC2518T4R7M
C7027 NC
R7362
2.2K
R7356
2.2K
R7352
2.2K
R7357
1K
R7353
1K
C7006
104Z
C7007
104Z
C7008
102K
C7391 104Z
C7392 100/16
R7275
10K
R7049
47
R7391
10K
C7383
100/16
+
C7382
104Z
C7381
470/16
+
D7381
1SS352
D7382
1SS352
R7355
10K
R7366
2.2K
R7367 1K
C7371
470/16
Q7362
RN2402
C7362
105K
Q7361
RN1404
R7363
1K
C7366
105K
C7365
105K
C7361
105K
C7351
105K
Q7385
S812C33AUA-C3G-T2
2
I
1
G
3
O
C7266
100/16
+
C7015
102K
C7016
102K
R7026
220K
Q7002
RN1404
R7096
220
C7018
102K
C7019
102K
C7020
102K
R7295
2.7K
C7021
102K
R7069 47
R7361 10K
R7392
10K
C7265
105K
R7425
0
R7230
0
R7421
0
P101B
13
12
11
10
9
8
7
6
5
4
3
2
1
P6853A
1
2
3
4
5
6
7
8
9
10
11
12
13
14
15
16
17
18
19
20
P6851A
20
19
18
17
16
15
14
13
12
11
10
9
8
7
6
5
4
3
2
1
P4021B
1
2
3
4
5
6
7
8
9
10
11
12
13
14
15
16
17
18
19
20
21
22
23
24
25
26
P4020B
1
2
3
4
5
6
7
8
9
10
11
12
13
14
15
16
17
18
19
20
21
22
23
24
25
26
C7356
105K
C7355
105K
R725610K
R725510K
Q7365
RN1404
Q7366
RN2402
R7190
220
R7182
100K
R7181
100K
R7197
100K
R7196
100K
R7195
100K
R7189
220
R7188
100K
R7187
100K
R7186
100K
R7185
100K
R7183
100K
R7192
100K
R7184
100K
R7194
100K
R7193
100K
C7181
104Z
R7191
220
C7386
104Z
D7371
1SS352
D7383
1SS352
D7384
1SS352
C7385
470/16
+
C7387
100/16
+
Q7381
S812C56AUA-C3G-T2
2
I
1
G
3
O
D7372
1SS352
R7171
47
Q7172
TC74VHC138FT
1
A
2
B
3
C
3-8 LINE DECODER
4
G2A
5
G2B
6
G1
7
Y7
8
GND
9
Y6
10
Y5
11
Y4
12
Y3
13
Y2
14
Y1
15
Y0
16
VCC
R7172
47
R7173
47
R7174
47
R7175
47
R7176
47
R7178
47
R7177
47
Q7184
RN2402
Q7183
RN1404
Q7171
TC74VHC238FT
1
A
2
B
3
C
4
G2A
5
G2B
6
G1
7
Y7
8
GND
9
Y6
10
Y5
11
Y4
12
Y3
13
Y2
14
Y1
15
Y0
16
VCC
Q7181
NJU7312AM
1
VEE
ANALOG SW
2
L1
3
L2
4
L3
5
L-COM1
6
L4
7
L5
8
L6
9
L-COM2
10
L7
11
L8
12
L-COM3
13
NC
14
ST
15
VSS
16
CK
17
DATA
18
NC
19
R-COM3
20
R8
21
R7
22
R-COM2
23
R6
24
R5
25
R4
26
R-COM1
27
R3
28
R2
29
R1
30
VDD
R7241
220(1/2W)
Q7262
XC6213B332MR
5
VOUT
4
NC
3
CE
2
VSS
1
VIN
Q7261
XC6202P502FR
1
O
2
G
3
I
Q7003
DTA114YKA
Q7401
RN1402
C7025
104Z
C7024
104Z
R7268
10K
R7269
10K
R7371
47
R7404
2.2K
C7263
100/16
+
C7262
100/16
+
R7284
100
Q7391
R1EX25064ASA00A
1
CS
2
SO
3
WP
4
GND
5
SI
6
SCK
7
HOLD
8
VCC
C7401
C7401
MP,MB,MT,DT
Type Only
R7230
DC, DD, SA876
Type Only
100/16
R7198
560
C7183
100/16
D7181 UDZS9.1
Q7182
2SC2712
R7418
3.9K
R7417
3.9K
R7415
R7415-R7418
TX-SR876 DT, MP,
MB, MT
Only
2.2K
R7416
2.2K
R7414
0
R7413
0
R7246
R7248
R7245
R7247
R7411
0
C7004
C7004
MP,MB,MT,DT
Type Only
104Z
R7261
10K
R7251 10K
R7263
10K
R7262
10K
R7270
2.2K
R7271
2.2K
P6852A
1
2
3
4
5
6
7
8
9
10
11
12
13
14
15
16
17
18
19
20
P102B
18
17
16
15
14
13
12
11
10
9
8
7
6
5
4
3
2
1
P7210B
9
8
7
6
5
4
3
2
1
P7501A
1
2
3
4
5
6
7
8
9
10
11
12
13
14
15
16
17
18
19
20
21
22
23
24
25
26
27
28
29
30
31
32
33
34
35
36
37
38
39
40
P8002A
1
2
3
4
5
6
7
8
9
10
11
12
13
14
15
U28
MICROPROCESSOR PC BOARD
<Note>
SD-x:XY is short for Shcematic Diagram-x and
each socket's location, X=A to H, Y=1 to 5.
THE COMPONENTS IDENTIFIED BY MARK ARE CRITICAL FOR SAFETY.
REPLACE ONLY WITH PART NUMBER SPECIFIED.
VOLTAGE (MEASURED WITH VOLTMETER) IS DC VOLTAGE.(NO INPUT SIGNAL).
ALL PNP TRANSISTORS ARE EQUIVALENT TO 2SA1015-GR UNLESS OTHERWISE NOTED.
ALL NPN TRANSISTORS ARE EQUIVALENT TO 2SC1815-GR UNLESS OTHERWISE NOTED.
ALL DIODES ARE EQUIVALENT TO 1SS133 UNLESS OTHERWISE NOTED.
ELECTROLYTIC CAPACITORS ( ) ARE IN uF/WV.
ALL CAPACITORS ARE IN pF/50WV UNLESS OTHERWISE NOTED.
EX) 030- 3pF, 330- 33pF, 331- 330pF, 333- 0.033uF
ALL RESISTORS ARE IN OHMS 1/4WATTS UNLESS OTHERWISE NOTED.
THE THICK LINES ON PC BOARD ARE THE PRINTING SIDE OF THE PARTS.
EX) PRINTING SIDE
CIRCUIT IS SUBJECT TO CHANGE FOR IMPROVEMENT.
!
NOTE
R7001, R7002
R7005, R7007
R7013, R7014
DC,DD Type Only
R7262, R7263
DC,DD,SA876
Type Only
+5.0V
+3.3V
+3.3V
+3.3V
+3.3V
+3.3V
+3.3V
+3.3V
+3.3V
+3.3V
+3.3V
+3.3V
+5.0V
+5.0V
+5.0V
+5.0V
+5.0V
+5.0V
+9V
64 kbit EEPROM
TO TUNER UNIT
(DT,MP,MB,MT Type)
TO NARF-9118
SD-20:H3
(DC,DD Type)
OR
R7413, R7414
TX-SR876 Only
TUMUTE_M
TUMUTE
For HD-RADIO Model
Q7342
RN2402
Q7341
RN1404
C7342
DC,DD Type Only
105K
R7297
10K
R7342
2.2K
C7341
105K
R7343
220

Table of Contents

Other manuals for Onkyo TX-SR876

Related product manuals