EasyManua.ls Logo

Onkyo TX-SR876 - Hd Radio Section

Onkyo TX-SR876
285 pages
Print Icon
To Next Page IconTo Next Page
To Next Page IconTo Next Page
To Previous Page IconTo Previous Page
To Previous Page IconTo Previous Page
Loading...
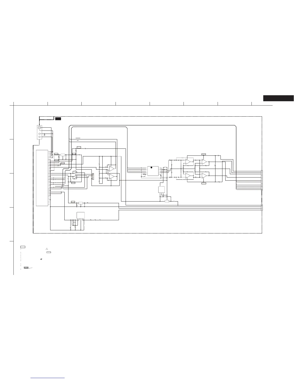
SCHEMATIC DIAGRAMS-20(SD-20)
HD RADIO SECTION
TX-SR876/SA876
A
1
2
3
4
5
BCDEFGH
<Note>
SD-x:XY is short for Shcematic Diagram-x and
each socket's location, X=A to H, Y=1 to 5.
THE COMPONENTS IDENTIFIED BY MARK ARE CRITICAL FOR SAFETY.
REPLACE ONLY WITH PART NUMBER SPECIFIED.
VOLTAGE (MEASURED WITH VOLTMETER) IS DC VOLTAGE.(NO INPUT SIGNAL).
ALL PNP TRANSISTORS ARE EQUIVALENT TO 2SA1015-GR UNLESS OTHERWISE NOTED.
ALL NPN TRANSISTORS ARE EQUIVALENT TO 2SC1815-GR UNLESS OTHERWISE NOTED.
ALL DIODES ARE EQUIVALENT TO 1SS133 UNLESS OTHERWISE NOTED.
ELECTROLYTIC CAPACITORS ( ) ARE IN uF/WV.
ALL CAPACITORS ARE IN pF/50WV UNLESS OTHERWISE NOTED.
EX) 030- 3pF, 330- 33pF, 331- 330pF, 333- 0.033uF
ALL RESISTORS ARE IN OHMS 1/4WATTS UNLESS OTHERWISE NOTED.
THE THICK LINES ON PC BOARD ARE THE PRINTING SIDE OF THE PARTS.
EX) PRINTING SIDE
CIRCUIT IS SUBJECT TO CHANGE FOR IMPROVEMENT.
!
NOTE
HDIDMRST
HD_OCLK
HD_SDO
HD_SCLK
HD_LRCLK
+1.8V
+3.3V
STEREO
5V
DGND
DGND
DGND
+5V
I2S_SCK
I2S_SDA
STEREO
SD
+15V
+14.9V
-15V
-14.9V
HDIDMRST
R_OUT
L_OUT
I2S_SDA
I2S_SCK
SD
+3.3V
DGND
+4V_B
+4V_B
+4V_A
+4V_A
+1.2VHD
+1.2VHD
+8.5V
+3.3V
+5.0V
VLEVEL
AG
+8.3V
+9V
HD_OCLK
HD_LRCLK
HD_SCLK
HD_SDO
TO NATRM-9055
SD-7:C3
TO NAAR-9075
SD-8:G3
R23
47
R24
47
R19
47
R15
47
L3
BK1608LM182
L2
BK1608LM182
R22
470
Q1
TA48018AF
1
I
2
G
3
O
C14
470/10
R5
2KB
R11
2.2K
R13
2KB
R12
2.2K
R3
1M
R20
1M
S1
S2
R18 0
R10
0
R16 4.7K
R17
4.7K
C3
104Z
C2
470/10
C27
10/50
R43
100K
R42
100K
C26
10/50
ANTENNA
FM
AM
R8
100
R4
100
R7
100
C4
10/50
R31
22
Q9:B
NE5532APSR
6
5
4
7
Q10:B
NE5532APSR
6
5
4
7
C9
10/50
C12
10/50
R2
100
R30
22
P2
1
2
3
4
C18
100/16
+
Q9:A
NE5532APSR
3
2
1
8
Q3:B
6
5
4
7
Q3:A
NJM2903V
3
2
1
8
Q8
BD7820
5
ADJ
4
OUTPUT
3
GND
2
INPUT
1
_SHUT
C11
104Z
C17
104Z
C15
104Z
R25
0
R26
0
R53
1(1W)
1(1W)
R54
C16
104Z
C19
10/50
C10
224Z
U1
HD RADIO MODULE
30
Audio GND
29
R_OUT
28
L_OUT
27
GND
26
Reserved
25
AXR1_5
24
GND
23
1.2Vdc
22
1.2Vdc
21
GND
20
3.3Vdc
19
RESET
18
GND
17
AXR0_2 (IIS_DATA)
16
AHCLKX0(IIS_MCLK)
15
GND
14
ACLKX0(IIS_SCLK)
13
AFSX0(IIS_LRCK)
12
GND
11
HPPI_SDA
10
HPPI_SCL
9
GND
8
1.8Vdc
7
GND
6
V-LEVEL
5
GND
4
5Vdc
3
GND
2
8.5Vdc
1
RF GND
RF5
RF GND
RF4
FM input
RF3
RF GND
RF2
AM input
RF1
RF GND
P1
P5
1
2
3
4
Q7
TA48033AF
3
O
2
G
1
I
C13
104Z
L4
022K
Q6
TA4805
3
O
1
I
2
G
Q11
XC6213B332MR
1
VIN
2
VSS
3
CE
4
NC
5
VOUT
C20
105K
P101A
1
2
3
4
5
6
7
8
9
10
11
12
13
C1
470/10
R33
22
Q4
CS4344-CZZR
2 ch DAC
1
SDIN
2
DEM/SCLK
3
LRCK
4
MCLK
5
VQ
6
FILT+
7
AOUTL
8
GND
9
VA
10
AOUTR
R14
10K
R28
39K
R27
27K
R29
27K
Q10:A
NE5532APSR
3
2
1
8
R6
10K
R1
8.2K
R21
6.8K
C8
104Z
C7
470/10
R40
2.2K
R38
2.2K
C24
102J
C22
102J
R36
NC
R34
0
R37
NC
R35
0
R41
2.2K
R39
2.2K
C25
102J
C23
102J
R44
1.2K
R48
8.2K
R49
8.2K
R45
1.2K
R50
6.8K
R46
3.3K
R47
3.3K
R51
6.8K
R52
15
NARF-9118
DC, DD Type Only
U43
HD RADIO PC BOARD
+3.3V
+9V

Table of Contents

Other manuals for Onkyo TX-SR876

Related product manuals